**Standout Features:**
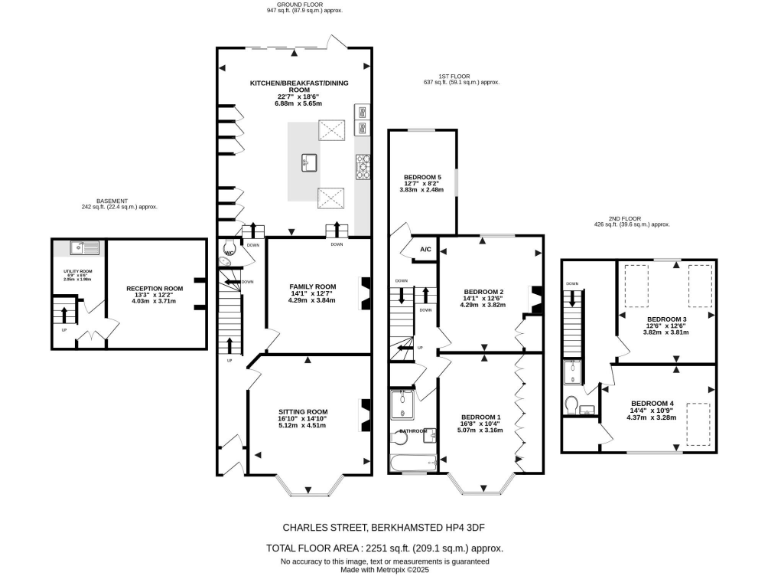
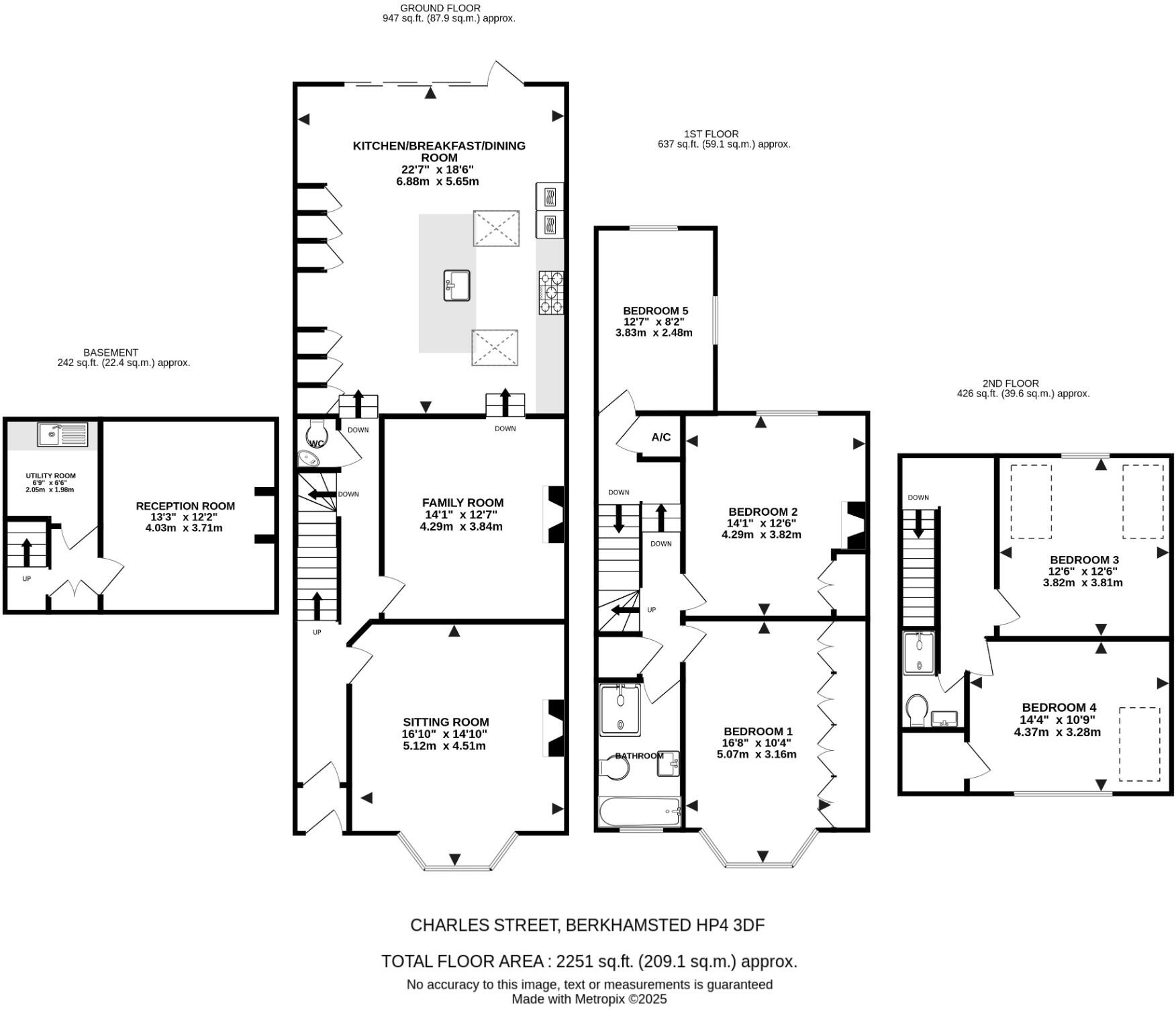
- Spacious end-of-terrace Victorian house, 2,251 sq ft.
- Five bedrooms and two bathrooms—ideal for families.
- Stunning open-plan kitchen/dining with contemporary finishes.
- Generous living spaces spread over four flexible floors.
- Enclosed, landscaped garden with outdoor dining area.
- Located in a desirable Conservation Area near the town center.
- Freehold tenure and chain-free sale.
- Magnificent valley views from upper floors.
**Summary Description:**
This exquisite five-bedroom Victorian home masterfully combines traditional character with modern living, perfectly situated in a sought-after Conservation Area just minutes from the bustling town center of Berkhamsted. With 2,251 sq ft of flexible accommodation across four floors, this property boasts a magnificent open-plan kitchen and dining space that’s an entertainer's dream, complete with high ceilings, ample natural light, and luxurious underfloor heating. Enjoy cozy family time in the spacious living room, or retreat to the versatile basement currently utilized as a gym and TV room.
Upstairs, you will find generous bedrooms, including two on the top floor that provide stunning views of the surrounding valley. Outside, the landscaped garden creates an inviting space for outdoor entertaining and relaxation. Despite its historic charm, the home is in excellent condition and ready for you to move in, without any chain delays.
With a strong sense of community, an affluent neighborhood, and convenient access to local amenities and excellent schools, this property is perfect for families or anyone looking for a cohesive blend of comfort and style in a prime location. Don't miss the opportunity to make this lovely home yours, as properties of this caliber in such a desirable location don’t stay on the market for long!
4 bedroom terraced house for sale in Charles Street, Berkhamsted, Hertfordshire, HP4 — £860,000 • 4 bed • 1 bath • 1378 ft²
5 bedroom end of terrace house for sale in Charles Street, Berkhamsted, Hertfordshire, HP4 — £1,150,000 • 5 bed • 2 bath • 2428 ft²
5 bedroom terraced house for sale in North Road, Berkhamsted, HP4 — £1,250,000 • 5 bed • 3 bath • 1681 ft²
4 bedroom semi-detached house for sale in Berkhamsted, Hertfordshire, HP4 — £1,000,000 • 4 bed • 1 bath • 1478 ft²
3 bedroom end of terrace house for sale in Kitsbury Road, Berkhamsted, Hertfordshire, HP4 — £950,000 • 3 bed • 2 bath • 1323 ft²
4 bedroom terraced house for sale in North Road, Berkhamsted, HP4 — £1,000,000 • 4 bed • 2 bath • 1245 ft²






















































































