Executive self-build plot with planning approval close to coast and town.
- Largest south-facing plot on the development, approx. 1100 m2
- Full planning permission for 3,750 sq ft detached house
- Specified with air source heat pump and underfloor heating
- 28kVA three-phase electricity and gigabit internet included
- Attached double garage and optional outdoor swimming pool
- Private gated community with CCTV and shared wildflower meadow
- Small annual maintenance charge for communal areas and gates
- Build must complete within 18 months; connection charges apply
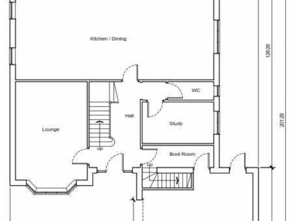
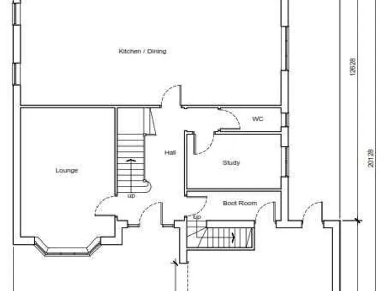
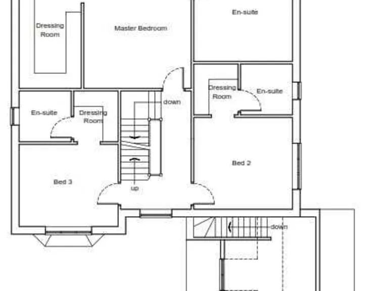
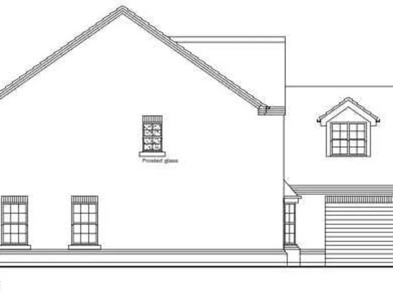
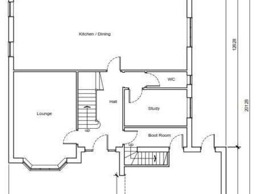
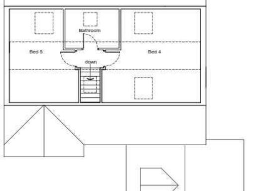
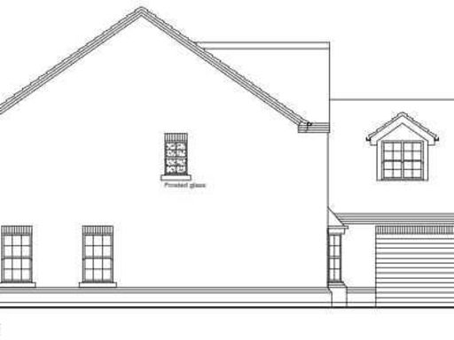
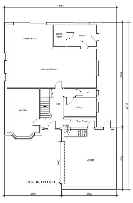
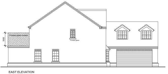
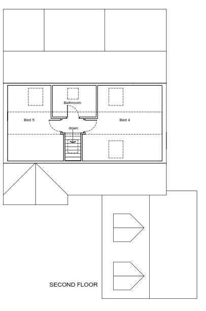
Plot 3 at St James Meadow is the largest, south-facing plot on a private gated development of just ten executive homes. Full planning permission is granted for a 3,750 sq ft detached house with attached double garage and optional outdoor swimming pool — a rare turn-key planning position that shortens the route to construction.
The scheme is specified for low-carbon living, with an air-source heat pump, underfloor heating, high insulation, EV charging, gigabit internet and a 28kVA three-phase electricity supply. The plot is generous (approx. 1100 m2 / 0.27 acre) and deep, giving ample scope for landscaped gardens, patio areas and the planned pool.
This is a self-build opportunity aimed at buyers who want control over design, finishes and internal layouts. There is a small annual management charge for communal areas and gated access; mains services will be to the road but connection charges apply. Build must be completed within 18 months of purchase, so buyers should be prepared to mobilise construction promptly.
In short: a well-specified, well-located plot with planning already in place for an executive family house. The position close to Cleethorpes and Grimsby, good local schools and fast broadband make it practical for family living or a high-quality investment, provided you are ready to commission the build and meet the modest communal running costs.
Plot for sale in Plot 7 - Ellis Avenue, Humberston Avenue, Humberston, DN36 — £200,000 • 1 bed • 1 bath • 474 ft²
Plot for sale in Building plots at rear of 153 Humberston Avenue, Humberston, Grimsby, N.E. Lincolnsire, DN36 4SX, DN36 — £460,000 • 1 bed • 1 bath
Land for sale in Humberston Avenue, Humberston, Grimsby, DN36 — £250,000 • 1 bed • 1 bath
Plot for sale in Fairfield Road, Scartho, Grimsby, DN33 — £180,000 • 1 bed • 1 bath
Plot for sale in Station Road, Stallingborough, Grimsby, DN41 — £79,000 • 1 bed • 1 bath • 15994 ft²
Plot for sale in Development Opportunity, Rear Of Grove Farm House, Station Road, New Waltham, Grimsby, DN36 — £399,999 • 1 bed • 1 bath






























































