Large family garden, flexible living and work-from-home studio close to good schools.
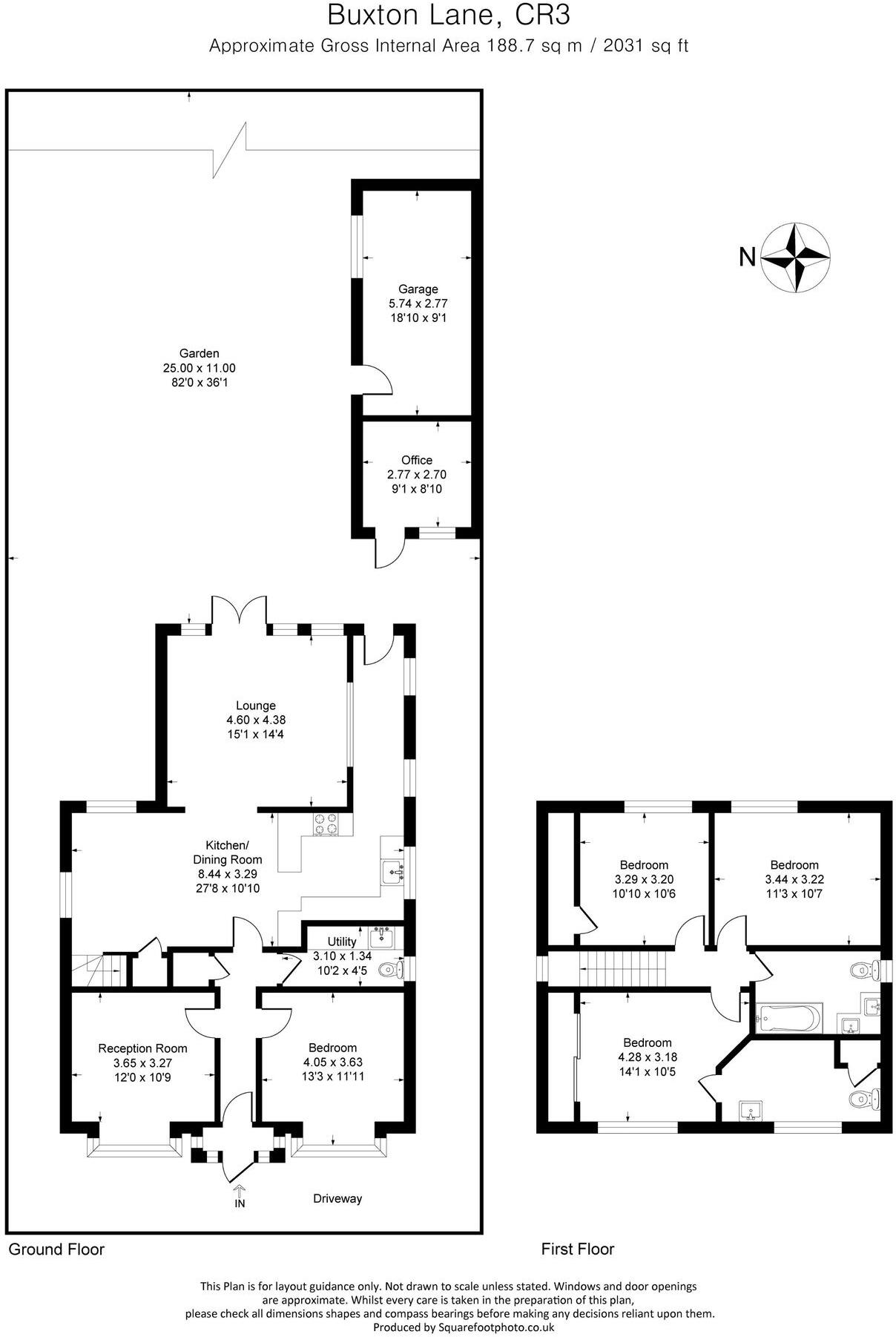
Approximately 2,000 sqft across multiple storeys
Set on a large plot in Caterham on the Hill, this substantial 4/5-bedroom detached home offers about 2,000 sqft of flexible living space and a private garden extending to just over 80ft. Ground floor rooms are generous and arranged for open-plan living; two reception rooms could be repurposed as additional bedrooms if needed. A converted outbuilding provides a ready-made work-from-home studio and there is a garage plus off-street parking for multiple cars.
The house dates from the mid-20th century and retains a mid-century suburban character, but it requires modernization throughout. The fabric is solid brick with double glazing of unknown age and an EPC rating of E; insulation and energy-efficiency improvements are likely needed. Heating is by mains-gas boiler and radiators.
For families, the location is a real strength: several well-regarded primary and secondary schools are nearby, plus local shops, bus routes and easy access to Caterham Valley and the M25. Broadband and mobile signal are strong, making the property practical for modern working patterns. The freehold plot and size offer scope to remodel, extend or improve energy performance to add value.
This property will suit buyers looking for space and location with renovation potential rather than a fully refurbished home. It offers a rare combination of large garden, off-street parking and home working space in a quiet, affluent neighbourhood close to parks and open countryside.
4 bedroom detached house for sale in Salmons Lane West, Caterham on the Hill, CR3 — £855,000 • 4 bed • 2 bath • 2110 ft²
4 bedroom detached house for sale in Banstead Road, Caterham, Surrey, CR3 — £800,000 • 4 bed • 2 bath • 2356 ft²
5 bedroom semi-detached house for sale in Foxon Lane, Caterham, CR3 — £700,000 • 5 bed • 1 bath • 2382 ft²
4 bedroom detached house for sale in Dome Hill, Caterham, CR3 — £975,000 • 4 bed • 2 bath • 1948 ft²
4 bedroom detached house for sale in Portley Lane, Caterham, Surrey, CR3 — £675,000 • 4 bed • 2 bath • 1827 ft²
4 bedroom detached house for sale in Dunedin Drive, Caterham, CR3 — £735,000 • 4 bed • 2 bath • 1682 ft²










































































