Distinctive three-bedroom period home steps from Beccles centre and riverside.
Rooftop entertaining terrace with panoramic river and marsh views
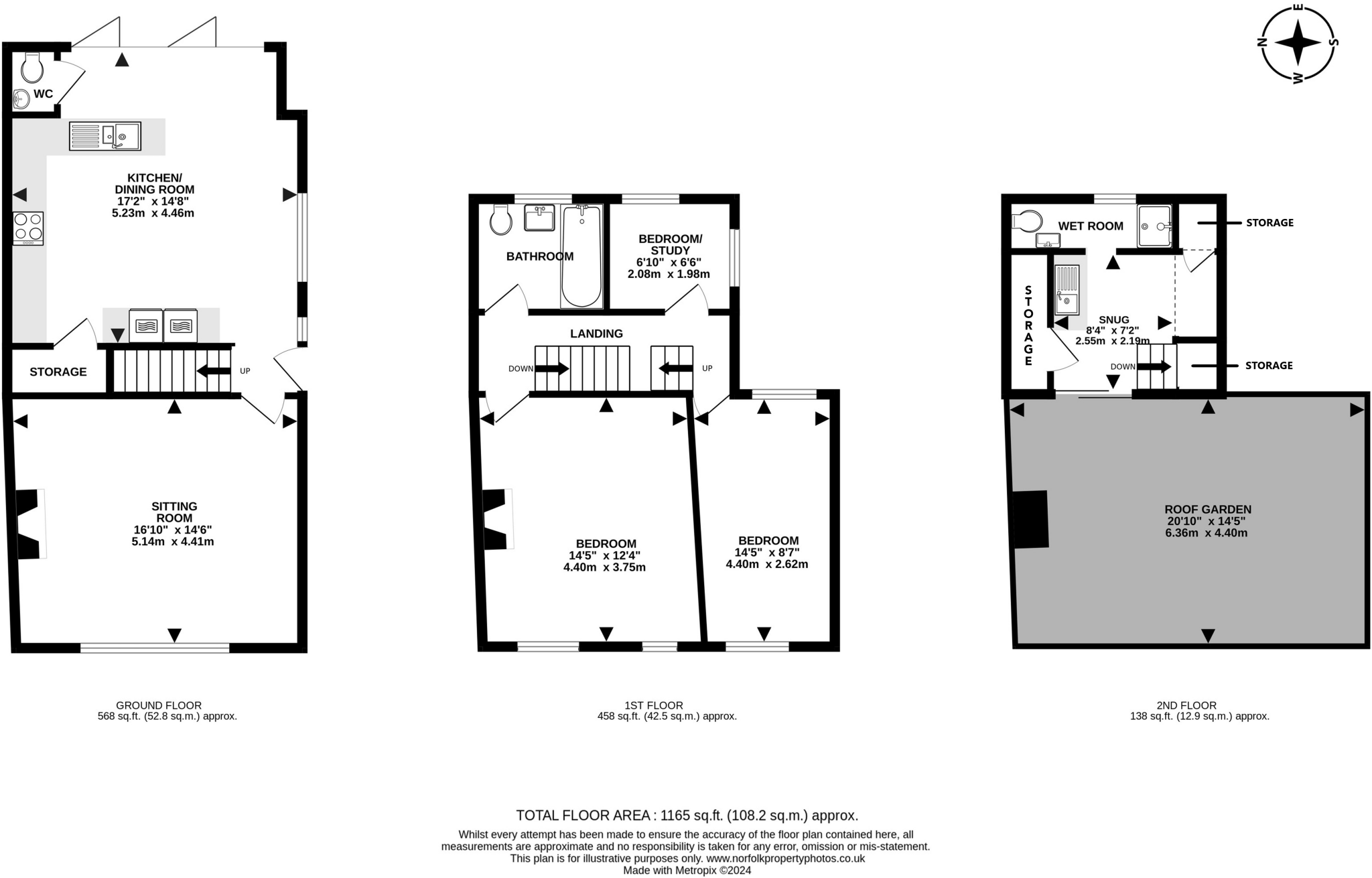
A rare, characterful townhouse in the heart of Beccles, recently renovated to combine period charm with contemporary finishes. The house offers three bedrooms across two storeys, with the principal and second bedrooms enjoying noteworthy river and marsh views. The second-floor roof terrace is a standout entertaining space with panoramic outlooks over the lido, church, river and surrounding countryside.
The ground floor has a light kitchen/dining room with bi-fold doors opening to a private courtyard garden, plus a sitting room with an attractive fireplace. Accommodation includes a family bathroom, separate shower room and a convenient ground-floor WC. The layout and size (about 1,165 sq ft) suit families or couples who want a central, town-centre location with outdoor spaces.
Practical points are plain: parking is available but supplied as two rented spaces rather than included ownership, broadband speeds are reported as slow, and the solid brick construction (pre-1900) likely has limited cavity insulation. Energy rating D reflects the building’s period fabric despite the recent modernisation. Freehold tenure and Council Tax band C make ongoing ownership straightforward.
This home will particularly suit buyers seeking a distinctive, move-in-ready town property with excellent local amenities and strong outdoor entertaining potential. Buyers wanting very fast internet or the highest energy efficiency should factor potential upgrades into their plans.
3 bedroom terraced house for sale in St. Benedicts Road, Beccles, NR34 9DE, NR34 — £210,000 • 3 bed • 1 bath • 808 ft²
2 bedroom house for sale in Ballygate, Beccles, NR34 — £325,000 • 2 bed • 1 bath • 1246 ft²
3 bedroom terraced house for sale in Queens Road, Beccles, NR34 — £220,000 • 3 bed • 1 bath • 987 ft²
3 bedroom end of terrace house for sale in Pound Road, Beccles, Suffolk, NR34 — £335,000 • 3 bed • 1 bath • 1046 ft²
3 bedroom terraced house for sale in Queens Road, Beccles, NR34 9DU, NR34 — £280,000 • 3 bed • 2 bath • 891 ft²
3 bedroom cottage for sale in Fen Lane, Beccles, NR34 — £290,000 • 3 bed • 1 bath • 862 ft²


































































































































