Renovated village home walking distance to Dale Beach and village amenities.
Three bedrooms in a newly renovated mid-terrace home
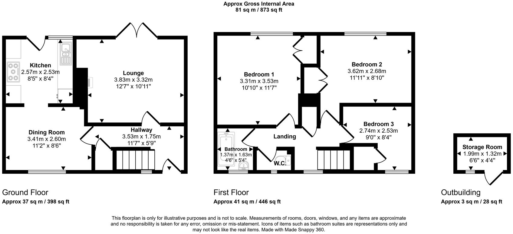
Set in the Pembrokeshire Coast National Park, this recently renovated mid-terrace house offers a genuine coastal lifestyle a short walk from Dale Beach and village amenities. The ground floor has two reception rooms — a bright front lounge with garden access and a dining/breakfast room leading to a modern fitted kitchen — making it practical for family day-to-day living and entertaining. Upstairs are three bedrooms and a modern family bathroom with a separate WC. The rear patio leads to a sloping, terraced garden backing onto woodland, offering privacy and rural outlooks.
Practical features include oil-fired central heating and PVCu double glazing; the property is freehold and of average overall size at about 873 sq ft. Its location in a small village with low crime, excellent mobile signal and fast broadband suits buyers who value coastal life with modern connectivity. The property was constructed in the mid-20th century and has been updated throughout, making it largely move-in ready for most family buyers.
Notable considerations are the single family bathroom, reliance on oil for heating (private supply, not a community system), and an EPC rating of D. The wider area records high levels of deprivation, which may influence local services and long-term demand. There is no flood risk noted, but the sloping garden may require maintenance and careful use of the terraced levels. Viewing will show how the recent renovation balances coastal character with functional modern finishes.
3 bedroom terraced house for sale in Blue Anchor Way, Dale, Haverfordwest, Pembrokeshire, SA62 — £290,000 • 3 bed • 1 bath • 832 ft²
3 bedroom semi-detached house for sale in Marloes, SA62 — £230,000 • 3 bed • 1 bath • 758 ft²
5 bedroom semi-detached house for sale in Dale, SA62 — £695,000 • 5 bed • 3 bath • 2644 ft²
3 bedroom terraced house for sale in Military Road, Pennar, Pembroke Dock, Pembrokeshire, SA72 — £185,000 • 3 bed • 1 bath • 1077 ft²
4 bedroom cottage for sale in Dale, Haverfordwest, SA62 — £750,000 • 4 bed • 2 bath • 1835 ft²
3 bedroom terraced house for sale in St. Annes Head, Dale, Haverfordwest, Pembrokeshire, SA62 — £349,999 • 3 bed • 2 bath • 1421 ft²


























































































