Spacious village family house with large garden and garage close to York.
Double-fronted detached period home on Main Street
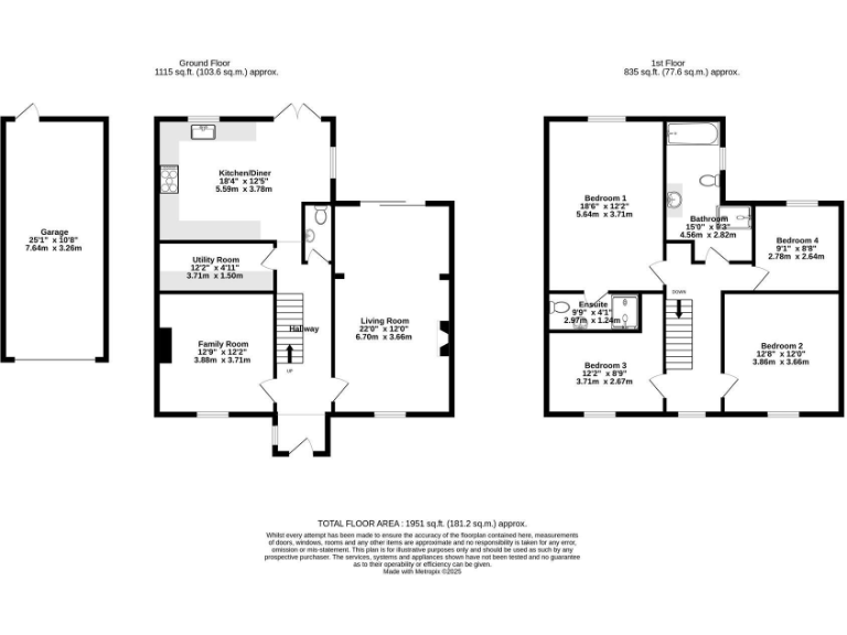
Ash Tree House is a substantial double-fronted period home on Main Street, set in a popular village within Fulford School catchment and with straightforward access to York city centre. The house offers genuinely roomy family living over two floors: an impressively long sitting room, a separate family room, a sizeable kitchen/diner with French doors to the garden, utility room and a large master bedroom with en-suite. A 25' garage and generous lawned front and rear gardens complete the picture.
The property’s traditional brick character and large sash-style windows give a warm, established feel; modern updates in the kitchen provide a practical, rustic touch. This is a family-friendly layout with flexible downstairs space for home working, play or formal entertaining, and upstairs bedrooms that comfortably suit children or guests.
There are some important practical points to note. Heating is oil-fired with a boiler and radiators; mains fuel alternatives are not in place. The house has solid brick walls that are assumed to have no cavity insulation, which—combined with the current EPC E rating (E41)—means energy and heating costs are likely higher than modern-built homes. Council tax is in an elevated band and the property sits in a medium flood-risk zone, both factors buyers should consider.
For families seeking size, village life and strong school options, this house offers immediate living space and longer-term potential. Buyers wanting to improve energy efficiency or reduce running costs will find scope for insulation and heating upgrades; those works would both enhance comfort and value.
4 bedroom detached house for sale in Main Street, Thorganby, York, YO19 6DB, YO19 — £595,000 • 4 bed • 2 bath • 1960 ft²
4 bedroom detached house for sale in Ruffhams Close, Wheldrake, York, YO19 — £465,000 • 4 bed • 1 bath • 1357 ft²
4 bedroom detached house for sale in Main Street, Thorganby, York, YO19 — £725,000 • 4 bed • 2 bath • 2143 ft²
6 bedroom detached house for sale in Thicket Grove, Thorganby, YO19 — £1,100,000 • 6 bed • 4 bath • 2792 ft²
4 bedroom detached house for sale in Skipwith Road, Escrick, YO19 — £500,000 • 4 bed • 1 bath • 1591 ft²
4 bedroom detached house for sale in Broadlands, Wheldrake, York, YO19 — £625,000 • 4 bed • 2 bath • 2074 ft²


















































































































