**Standout Features:**
- 4-bedroom detached modern home with exceptional sea and coastline views
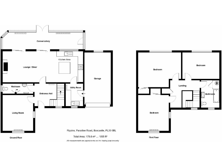
- Spacious 8.8m open plan living area with a high-quality kitchen
- Stunning 9.1m conservatory leading to a raised deck
- Integral garage and ample driveway parking
- Private and mature rear gardens with established landscaping
- No onward chain, making for a smooth transition
**Summary:**
Discover "Pippins," a unique detached home perched on the outskirts of Boscastle, offering breathtaking views of the sea and Forrabury Church. This modern residence features an expansive open plan living room spanning 8.8 meters, seamlessly connecting to a stylish kitchen equipped with built-in appliances. The highlight is the airy conservatory that boasts panoramic coastline views and provides access to a beautiful raised deck, perfect for entertaining.
The ground floor includes a versatile study or fourth bedroom and a contemporary wet room, while the first floor presents three spacious double bedrooms and a family bathroom, catering well to family living. With oil-fired central heating and UPVC double glazing throughout, this home promises comfort and efficiency.
Step outside to a tranquil rear garden replete with fruit trees and established plantings, providing a serene escape. Its position not only ensures wonderful views but also offers convenient access to the village's amenities and beautiful Cornish coastline.
While this property presents an ideal opportunity for coastal living, potential buyers should note the property's average condition. Its appealing features and flexible design make it a must-see for families or those looking for a peaceful retreat. Don’t miss the chance to make this yours; schedule a viewing today!
4 bedroom detached house for sale in Penally Hill, Boscastle, PL35 — £630,000 • 4 bed • 4 bath • 2381 ft²
2 bedroom detached house for sale in Boscastle, Cornwall, PL35 — £475,000 • 2 bed • 2 bath • 1294 ft²
4 bedroom detached house for sale in Paradise Road, Boscastle, Cornwall, PL35 — £425,000 • 4 bed • 1 bath • 1025 ft²
3 bedroom detached bungalow for sale in Penally Hill, Boscastle, PL35 — £429,950 • 3 bed • 1 bath • 881 ft²
3 bedroom bungalow for sale in Green Lane, Boscastle, PL35 — £479,950 • 3 bed • 2 bath • 1302 ft²
5 bedroom detached house for sale in Fore Street, Boscastle, PL35 — £495,000 • 5 bed • 2 bath • 1792 ft²






























































































