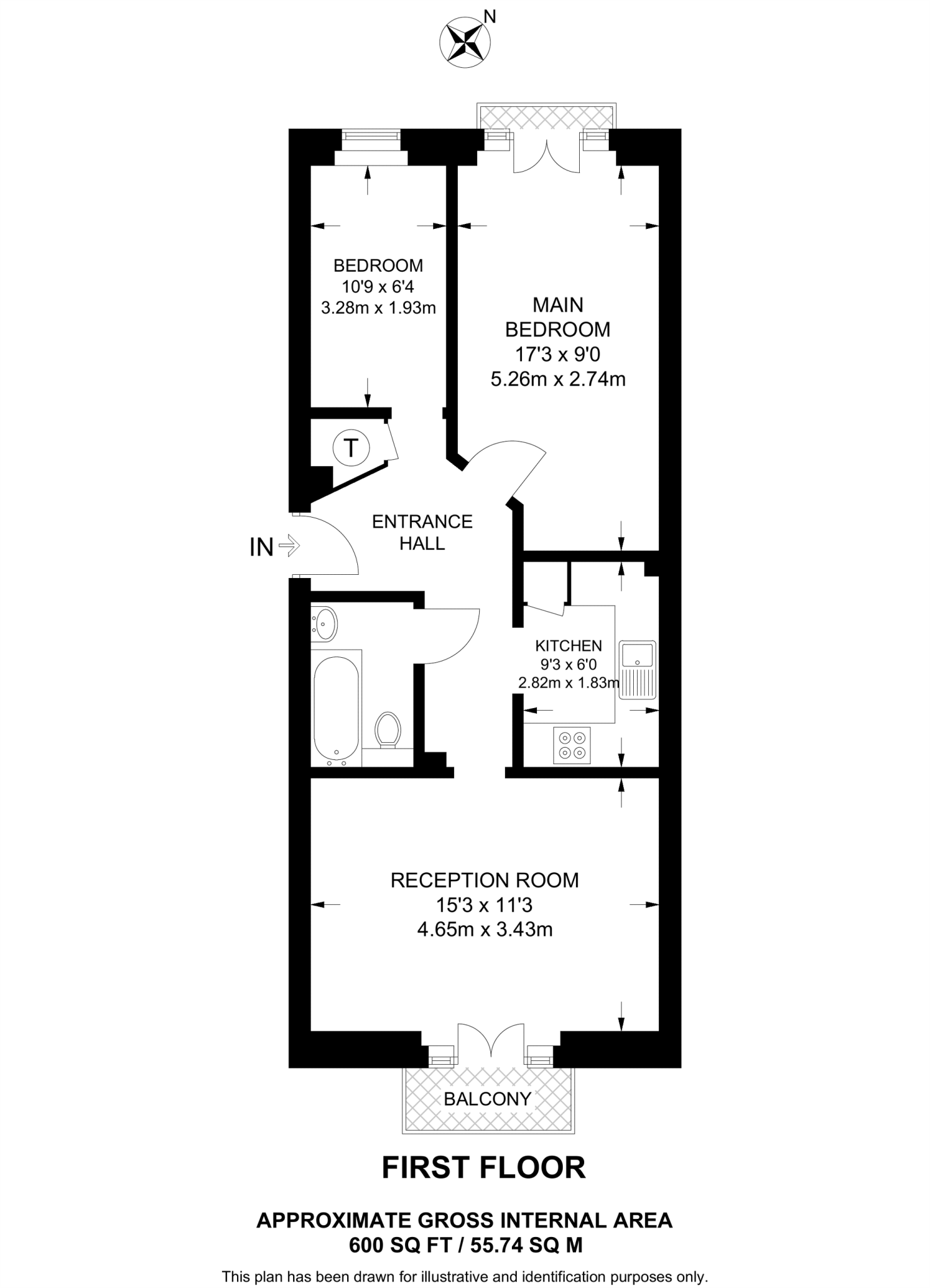
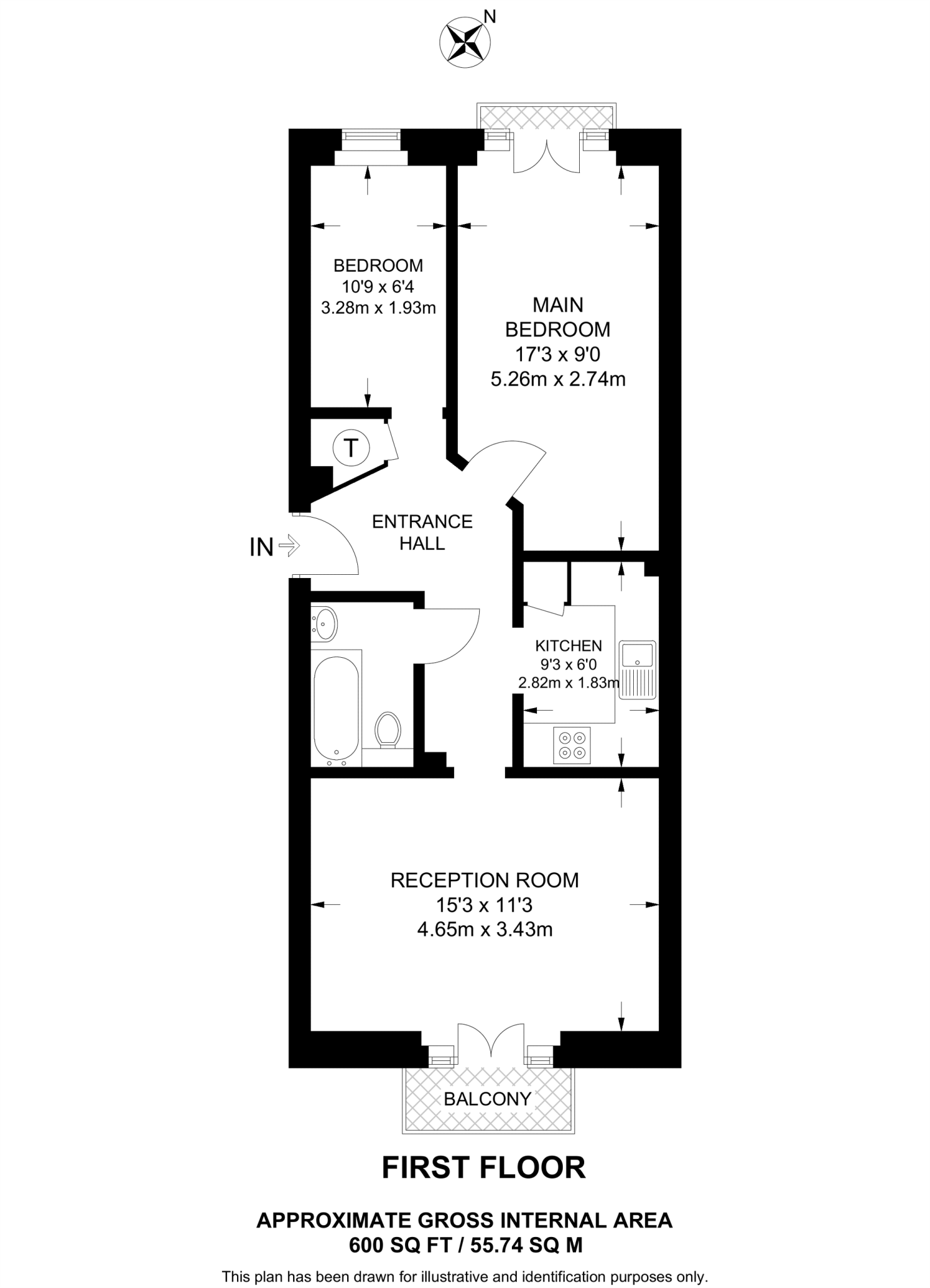
Compact, well-located apartment ideal for first-time buyers or investors near green spaces.
- Private balcony off the reception room
- Separate kitchen and dining space
- Two bedrooms, one family bathroom
- Approx. 600 sq ft — overall size small
- Double glazing fitted after 2002
- Electric storage heating; potentially higher running costs
- Leasehold tenure (check remaining term and charges)
- Close to Mudchute Farm, river access and transport links
Light-filled two-bedroom flat in Brunel House, set within a riverside development close to Mudchute Farm and Greenwich foot tunnel. The reception room opens to a private balcony and offers space for dining, while a separate kitchen and family bathroom complete practical living for a first home or rental. At about 600 sq ft, the layout is compact but well-proportioned for everyday living.
Practical features include double glazing (installed post-2002) and electric storage heating. The building dates from the late 1990s/early 2000s and sits in an inner-city, well-connected area with excellent mobile signal and fast broadband — useful for remote working. Local amenities and frequent public transport links put Canary Wharf’s shops, restaurants and services within easy reach.
Important considerations: the property is leasehold and relies on electric storage heaters rather than gas central heating, which may mean higher running costs and limited heating control. The overall size is small, so buyers seeking more generous living space should view with that in mind. For those wanting to add value, there is scope to modernise finishes and personalise the interior.
This apartment suits a first-time buyer looking for a compact, well-located home or an investor targeting central E14 rental demand. The practical layout, balcony and proximity to green spaces and transport make it a sensible city-base with straightforward improvement potential.
2 bedroom flat for sale in Horseshoe Close, Docklands, London, E14 — £400,000 • 2 bed • 1 bath • 530 ft²
2 bedroom flat for sale in Newport Avenue, E14, Canary Wharf, London, E14 — £500,000 • 2 bed • 2 bath • 873 ft²
2 bedroom flat for sale in Boardwalk Place, Canary Wharf, London, E14 — £635,000 • 2 bed • 2 bath • 872 ft²
2 bedroom flat for sale in 41 Millharbour, Canary Wharf, London, E14 — £500,000 • 2 bed • 2 bath • 869 ft²
2 bedroom flat for sale in Flour Millers House, E14, Docklands, London, E14 — £550,000 • 2 bed • 2 bath • 797 ft²
2 bedroom flat for sale in Orion Point, Crew Street, Isle Of Dogs, London, E14 — £490,000 • 2 bed • 2 bath • 894 ft²


































































































