Period three-bedroom house moments from Ore Village and Hastings seafront.
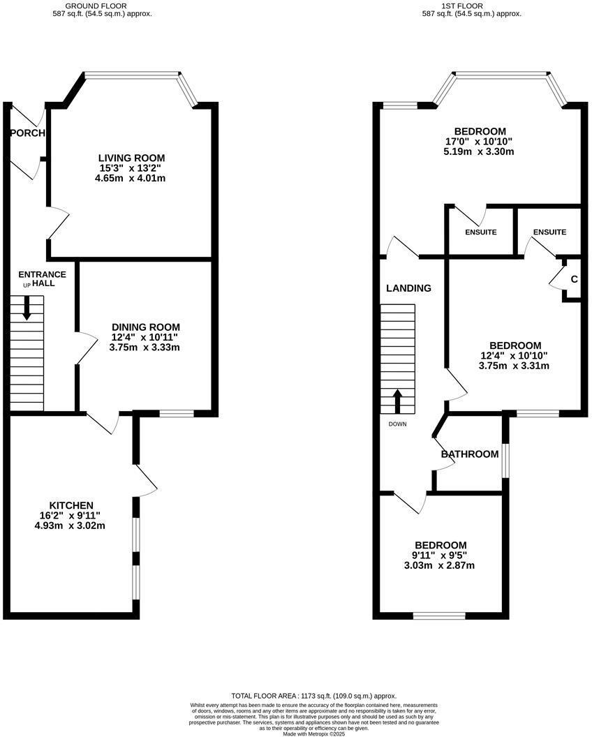
- Three double bedrooms and three bathrooms, two en‑suites
- Far‑reaching sea views from the front of the house
- Wealth of period features: high ceilings, cornicing, bay window
- Two reception rooms; bay-fronted living room with wood stove
- Eat‑in kitchen with feature brickwork and garden access
- Low‑maintenance rear garden arranged over two paved levels
- Small plot size; limited scope for large garden extension
- Freehold, no flood risk and very low local crime
This well‑presented Edwardian semi offers three double bedrooms, three bathrooms and far‑reaching sea views from the front aspect. High ceilings, decorative cornicing, exposed wooden floorboards and original fireplaces preserve strong period character while contemporary bathrooms and an eat‑in kitchen give practical family living.
The ground floor has two reception rooms — a bay‑fronted living room with a wood‑burning stove and a separate dining room with an original tiled fireplace — flowing to a kitchen with space for a range oven and direct garden access. Two of the bedrooms include modern en‑suite shower rooms and the main bathroom serves the floor comfortably.
Externally the rear garden is low maintenance and paved with planted borders, arranged over two levels. The plot is small, designed for easy upkeep rather than extensive landscaping. The house sits in sought‑after Clive Vale close to Ore Village shops, schools and transport, with Hastings Old Town and the seafront within easy reach.
This is a characterful, family‑oriented home with strong curb appeal and practical modern comforts. Buyers seeking a larger plot or significant extension potential should note the modest plot size and average overall internal area.
3 bedroom end of terrace house for sale in Edmund Road, Hastings, TN35 — £425,000 • 3 bed • 1 bath • 1164 ft²
3 bedroom semi-detached house for sale in Old London Road, Hastings, TN35 — £375,000 • 3 bed • 1 bath • 1167 ft²
3 bedroom semi-detached house for sale in Old London Road, Hastings, TN35 — £375,000 • 3 bed • 1 bath • 1167 ft²
4 bedroom terraced house for sale in Mount Road, Hastings, TN35 — £325,000 • 4 bed • 1 bath • 1134 ft²
2 bedroom semi-detached house for sale in Edwin Road, Hastings, TN35 — £425,000 • 2 bed • 1 bath • 1131 ft²
3 bedroom end of terrace house for sale in Athelstan Road, Hastings, TN35 — £400,000 • 3 bed • 1 bath • 1252 ft²














































































































































