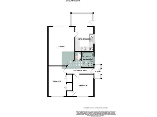
Single storey two bed bungalow with garage, garden and no onward chain ideal for downsizers.
- Two bedrooms and 17'9 lounge — comfortable single-storey living
- 17'9 kitchen with scope for modernisation
- Garage and off-road parking included
- Decent plot and private garden
- Chain free — available for a quicker move
- EPC D; dated elements and maintenance needed
- Slow broadband in the area; check coverage if working remotely
- Built late 1960s–1970s; cavity walls, gas central heating
Set in a quiet cul-de-sac in Kirby le Soken, this single-storey, two-bedroom semi-detached bungalow offers straightforward, practical living on a decent plot. The 17'9 lounge and matching-sized kitchen give generous day-to-day space, while a garage and off-road parking add useful storage and convenience. Being chain free makes this an attractive move for downsizers seeking a quicker purchase.
The property is traditionally laid out and double glazed, with gas central heating via boiler and radiators. Local schools and village amenities are within easy reach, and the low-crime, small-town setting suits those wanting a calmer lifestyle close to Frinton-on-Sea.
Buyers should note the bungalow dates from the late 1960s–1970s and needs some maintenance and updating. The EPC is rated D and broadband speeds are slow in this area — factors to consider if working from home or seeking high energy efficiency. Overall, this is a practical, freehold bungalow with scope to modernise and add value for the right purchaser.
2 bedroom detached bungalow for sale in Walton Road, Kirby-le-soken, CO13 — £199,950 • 2 bed • 1 bath • 517 ft²
2 bedroom semi-detached bungalow for sale in Dugmore Avenue, Kirby-le-Soken, Frinton-on-Sea, CO13 — £244,995 • 2 bed • 1 bath • 700 ft²
2 bedroom semi-detached bungalow for sale in Horsey Road, Kirby-le-Soken, CO13 — £242,995 • 2 bed • 1 bath • 775 ft²
2 bedroom bungalow for sale in Bramhall Cottage, Edith Road, Kirby Le Soken, CO13 — £230,000 • 2 bed • 1 bath • 519 ft²
2 bedroom semi-detached bungalow for sale in Walton Road, Kirby-le-Soken, CO13 — £289,995 • 2 bed • 1 bath • 501 ft²
2 bedroom detached bungalow for sale in Dugmore Avenue, Kirby-Le-Soken, Frinton-On-Sea, CO13 — £279,000 • 2 bed • 1 bath • 627 ft²






























































