Compact modern two-bed with private garden near parks and transport.
Freehold two-bedroom mid-terrace with private garden
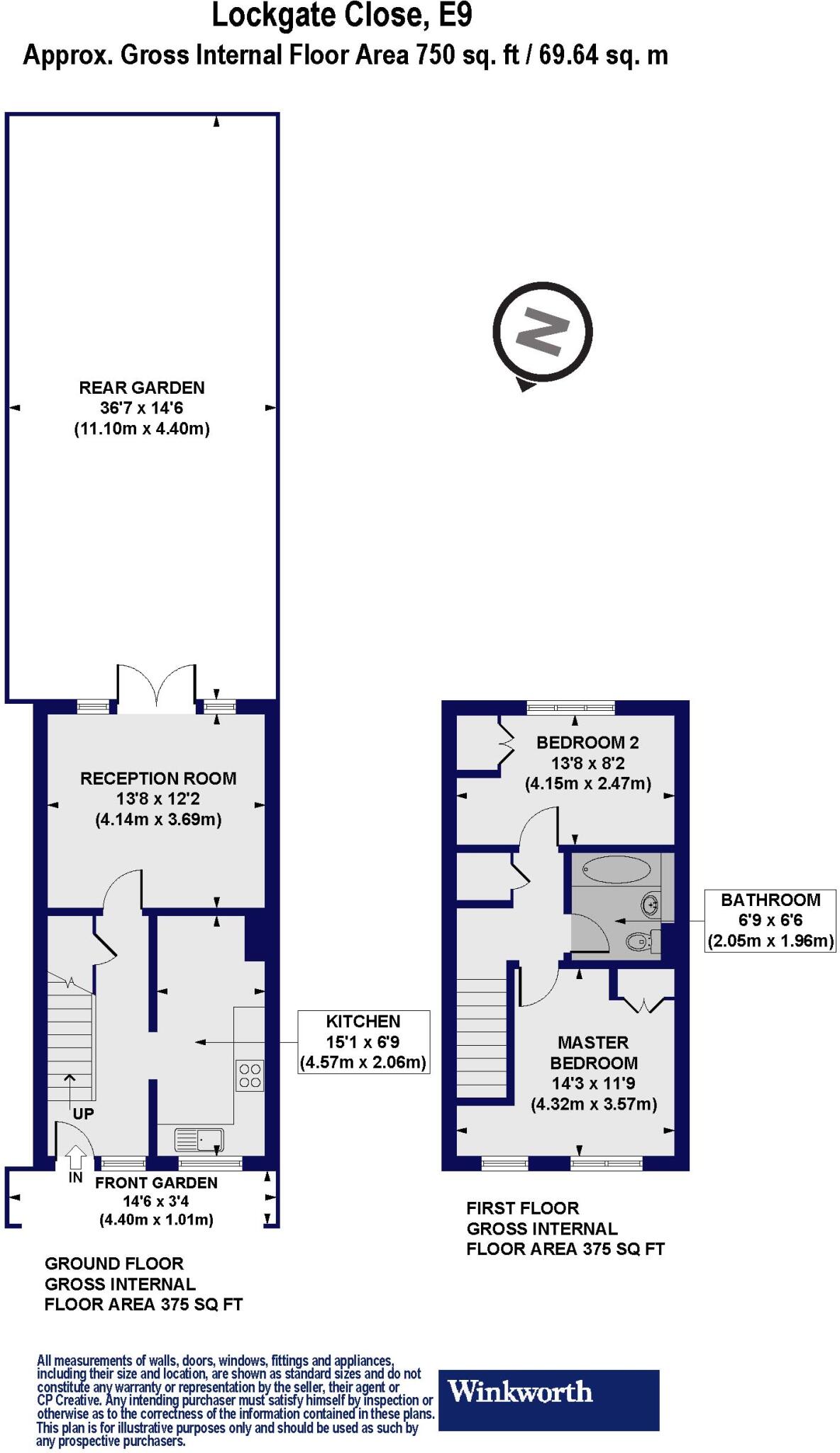
About 750 sq ft over two storeys, practical layout
Built 2007–2011 with double glazing and gas central heating
Excellent mobile signal and fast broadband for home working
Moments from Hackney Wick, Victoria Park and Stratford links
High local crime rate and area rated very deprived
Small plot size and single bathroom may limit families
Council tax moderate; tenure freehold (no leasehold fees)
Set within a quiet canalside pocket of Hackney Wick, this two-bedroom freehold terraced house offers a compact, light-filled home with private outdoor space — rare for first-time buyers in East London. The living room opens directly onto a small private garden, creating an easy indoor-outdoor flow ideal for socialising or quiet downtime. The separate kitchen provides sensible storage and workspace, and built-in cupboards keep the upper-floor bedrooms uncluttered.
Constructed between 2007–2011, the property benefits from modern double glazing and gas central heating with a boiler and radiators. At about 750 sq ft across two floors, the layout suits a couple or young family looking to own rather than rent. Excellent mobile signal and fast broadband support home working, while nearby Hackney Wick Overground and Stratford connections make commuting straightforward. Local green amenities include Victoria Park and the Queen Elizabeth Olympic Park, plus a lively cluster of cafés, galleries and leisure facilities.
Buyers should be aware of material local factors: the neighbourhood has a high crime score and is rated very deprived in area deprivation indices, which may affect long-term resale or lettability. The plot is small and there is a single bathroom, so space is limited compared with larger family homes. Council tax is moderate; tenure is freehold, removing leasehold-related costs.
Overall, this property is a practical entry into Hackney Wick ownership: modern, low-maintenance construction with outdoor space and strong transport links, balanced against local social challenges and compact plot size. It suits first-time purchasers seeking a manageable, well-located base with scope to personalise.
2 bedroom maisonette for sale in Berkshire Road, Hackney, London, E9 — £535,000 • 2 bed • 1 bath • 885 ft²
2 bedroom terraced house for sale in Eastway, E9 — £650,000 • 2 bed • 1 bath • 1000 ft²
2 bedroom terraced house for sale in York Close, Beckton, London, E6 — £425,000 • 2 bed • 1 bath • 598 ft²
2 bedroom terraced house for sale in Michael Close, LONDON, London, E3 — £650,000 • 2 bed • 1 bath • 861 ft²
3 bedroom semi-detached bungalow for sale in Daintry Way, Hackney Wick, London, E9 — £825,000 • 3 bed • 1 bath • 922 ft²
2 bedroom apartment for sale in 81 Eastway, London, E9 — £425,000 • 2 bed • 1 bath • 593 ft²














































