Character filled home with large garden ideal for families or renovators.
Detached Victorian cottage adjacent to St Mary’s Church
Spacious gardens with greenhouse, potting shed and mature planting
Driveway parking and attached storage building with power
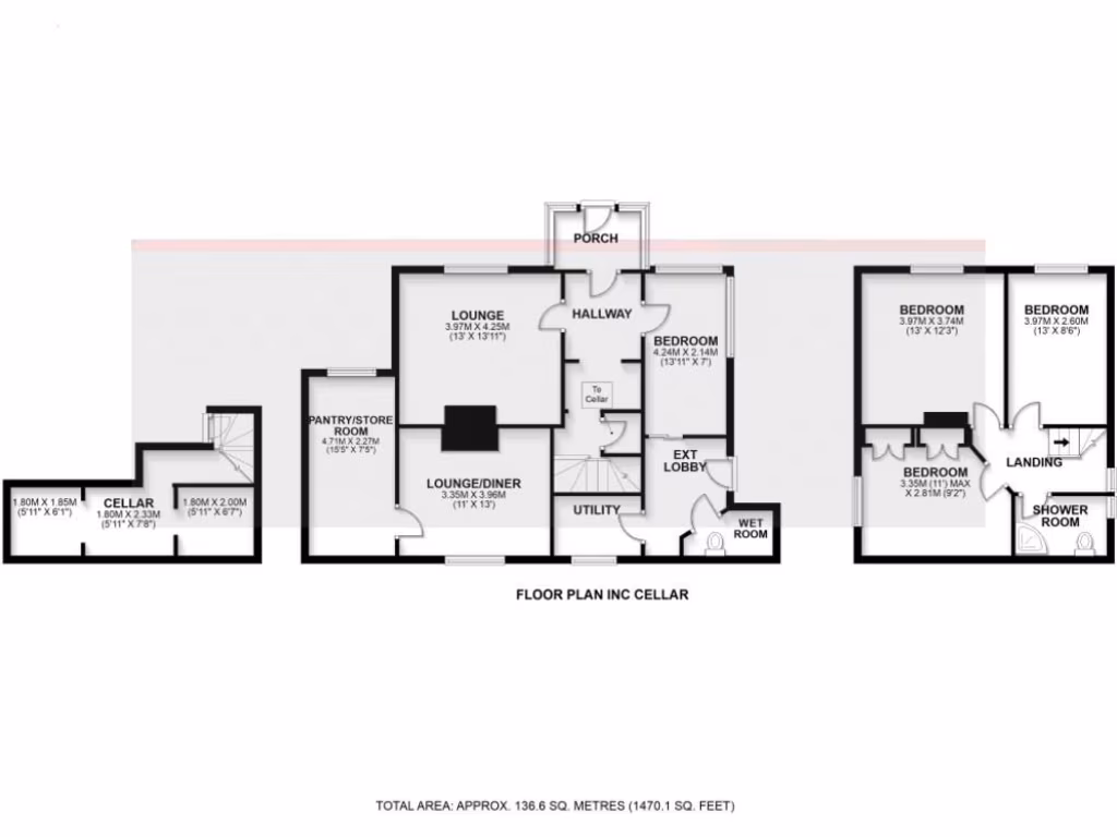
Ground‑floor wet room plus first‑floor family bathroom
Traditional cellar and generous walk‑in pantry/utility space
Oil central heating; EPC rating F — energy improvements likely needed
Conservation Area location; planning constraints possible
Slow broadband speeds despite excellent mobile signal
Set beside the Church of St Mary, this traditional red‑brick detached cottage offers substantial living space, a large mature garden and immediate vacant possession. The house retains period features such as sash windows, chimney breasts and original floorboards, while practical additions include a sun room, walk‑in pantry, utility and a useful cellar. The ground‑floor wet room and first‑floor bathroom make family living straightforward.
Practicalities are clear: heating is by oil‑fired boiler and the Energy Performance Certificate is rated F, so buyers should allow for future energy upgrades and running costs. Broadband speeds are slow in the area, though mobile signal is excellent. The property sits in a Conservation Area and is on a quiet no‑through lane close to amenities in nearby Spilsby.
Outside is a sizeable cottage garden with greenhouse, potting shed and established planting, plus a gated driveway and an attached storage building with power. The house is chain‑free and ready for a buyer wanting a character home in a peaceful rural village, whether seeking immediate occupation, a cosmetic update or sympathetic renovation to improve energy efficiency.
3 bedroom semi-detached house for sale in Main Road, Hundleby, Spilsby, PE23 — £145,000 • 3 bed • 1 bath • 819 ft²
3 bedroom detached house for sale in Church Walk, Skendleby, Spilsby, PE23 — £375,000 • 3 bed • 2 bath • 1559 ft²
3 bedroom detached bungalow for sale in 24 Raithby Road, Hundleby, Spilsby, PE23 — £375,000 • 3 bed • 2 bath • 1510 ft²
2 bedroom semi-detached house for sale in Skendleby, Spilsby, PE23 — £255,000 • 2 bed • 1 bath • 1133 ft²
4 bedroom detached bungalow for sale in North Beck Lane, Hundleby, Spilsby, PE23 5NB, PE23 — £575,000 • 4 bed • 2 bath • 1773 ft²
2 bedroom detached bungalow for sale in Hogsthorpe Road, Mumby, Alford, LN13 — £210,000 • 2 bed • 1 bath • 819 ft²


































































































































