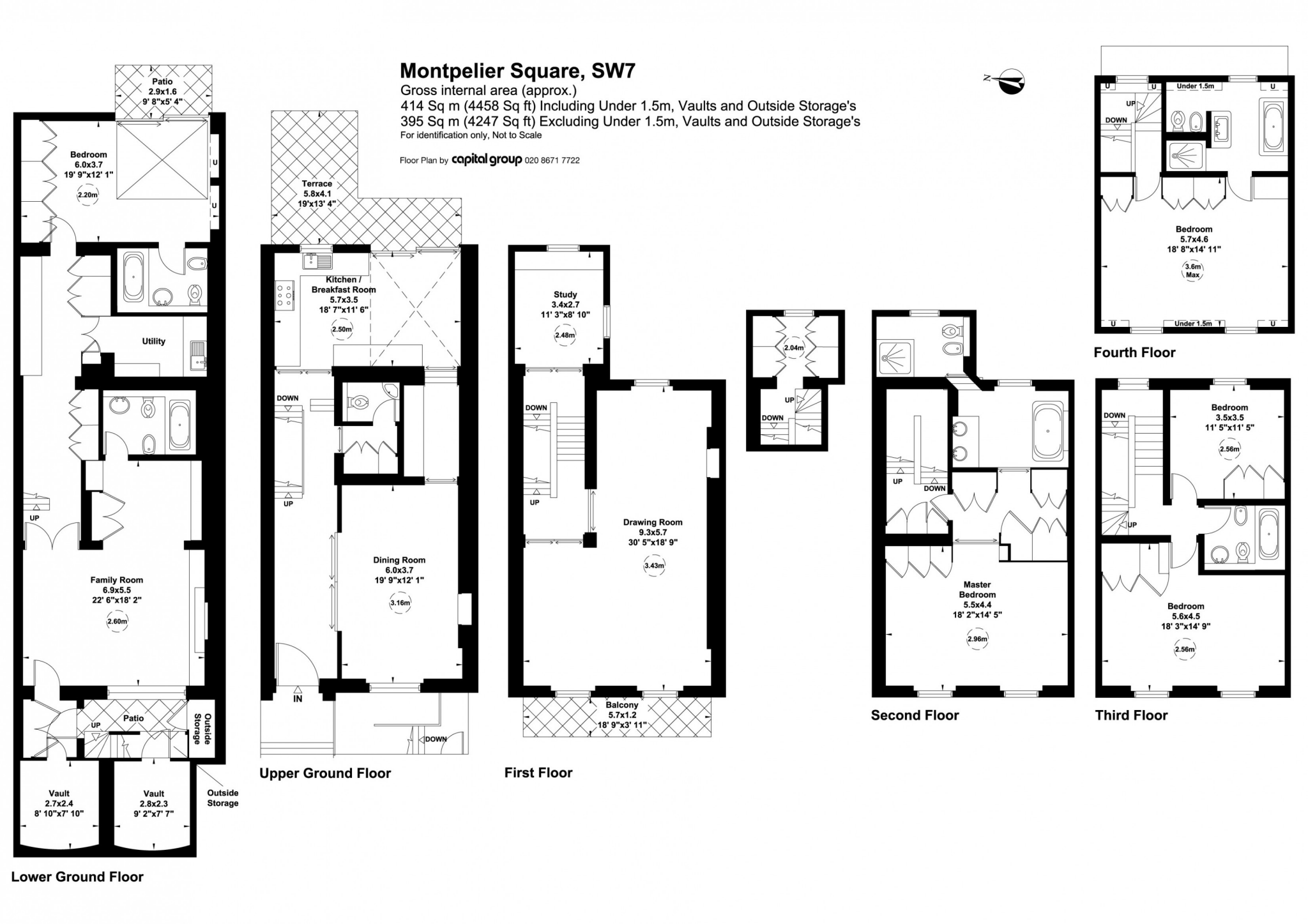
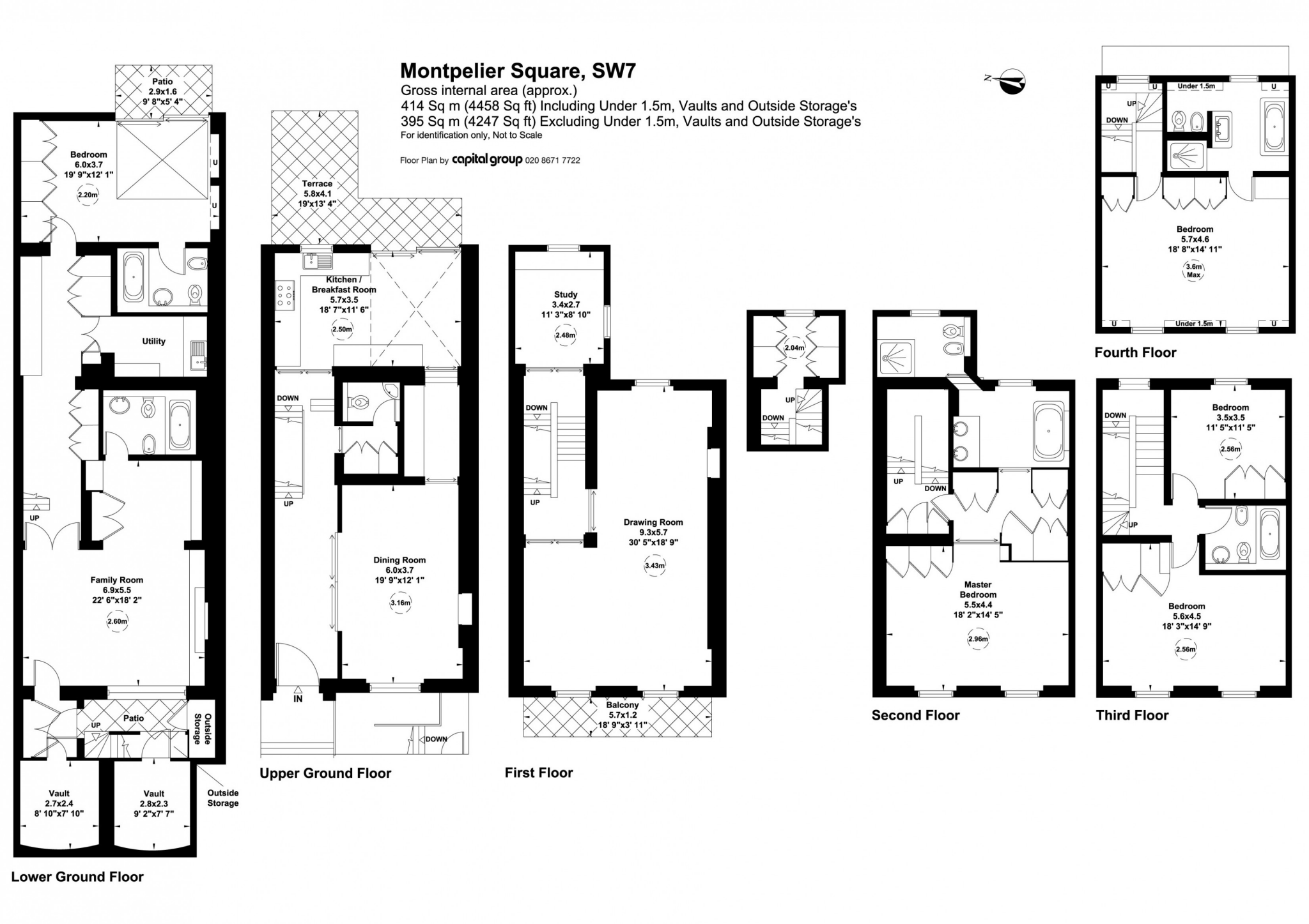
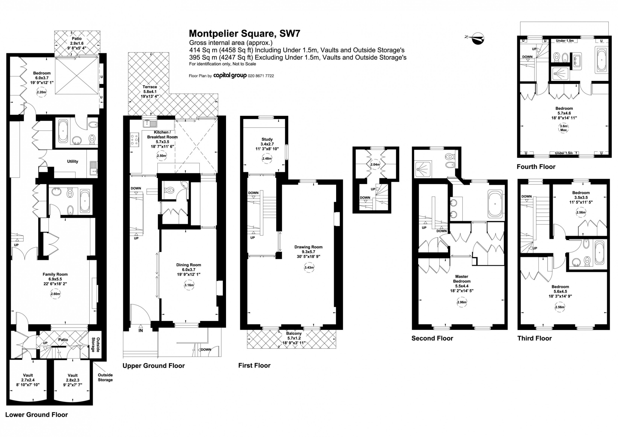
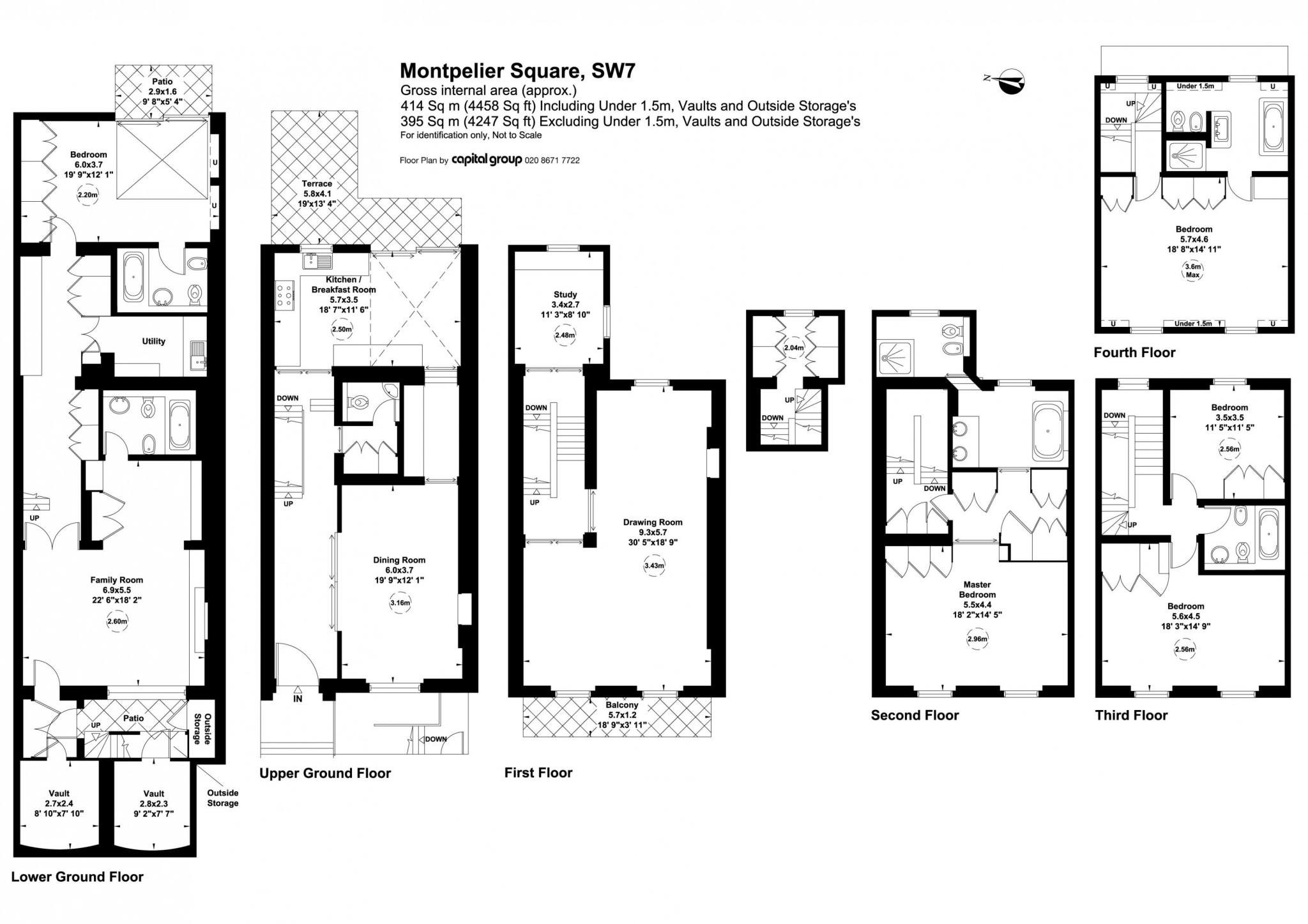
Spacious Grade II listed five‑bed townhouse with garden in the heart of Knightsbridge..
Large Grade II listed Georgian townhouse, approx. 4,458 sq ft
Five bedrooms and five bathrooms; multiple reception rooms
Private patio garden and balcony in central Knightsbridge
Freehold tenure; mid-terrace period property
Listed status — restrictions and consent requirements apply
Solid brick construction with assumed no cavity insulation
Double glazing installed before 2002; refurbishment likely needed
Very expensive council tax; local crime levels higher than average
This Grade II listed Georgian townhouse offers expansive family living across approximately 4,458 sq ft in one of Knightsbridge’s most sought-after garden squares. High ceilings, large windows and generous reception rooms create bright, formal entertaining spaces while a private patio garden and balcony provide outdoor respite in a central location.
The house provides five bedrooms and five bathrooms, multiple reception rooms, a kitchen/breakfast room, dining room, utility and a home office—well suited to a family requiring separate work and living zones. Its SW7 address places it moments from Hyde Park, world-class shopping and excellent independent schools.
Buyers should note the listed status will limit alterations and may complicate refurbishment or extension. The property’s solid brick construction likely lacks cavity insulation and the double glazing pre-dates 2002, so energy and comfort improvements are probable. Council tax is very expensive and the immediate area records higher crime levels than average for central London.
For purchasers seeking a substantial, characterful London family home in a prestigious square, this freehold townhouse offers rare space and location. Those planning modernisation or more intrusive change should budget for listed-building consents and building-work remedial costs.
5 bedroom terraced house for sale in Montpelier Square, Knightsbridge SW7 — £4,950,000 • 5 bed • 4 bath • 2968 ft²
5 bedroom terraced house for sale in Montpelier Square, Knightsbridge, London, SW7 — £7,250,000 • 5 bed • 4 bath • 3186 ft²
5 bedroom house for sale in Montpelier Square, London, SW7 — £9,950,000 • 5 bed • 5 bath • 5427 ft²
5 bedroom house for sale in Montpelier Square, London, SW7 — £5,200,000 • 5 bed • 3 bath • 2768 ft²
5 bedroom terraced house for sale in Montpelier Square, London, SW7 — £7,500,000 • 5 bed • 6 bath • 4686 ft²
6 bedroom terraced house for sale in Montpelier Street, Knightsbridge SW7 — £3,500,000 • 6 bed • 5 bath • 2472 ft²






























































































































































































































































































































