Compact low-maintenance retreat near sea and resort amenities.
Three bedrooms with primary en-suite W/C and separate shower room
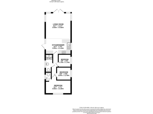
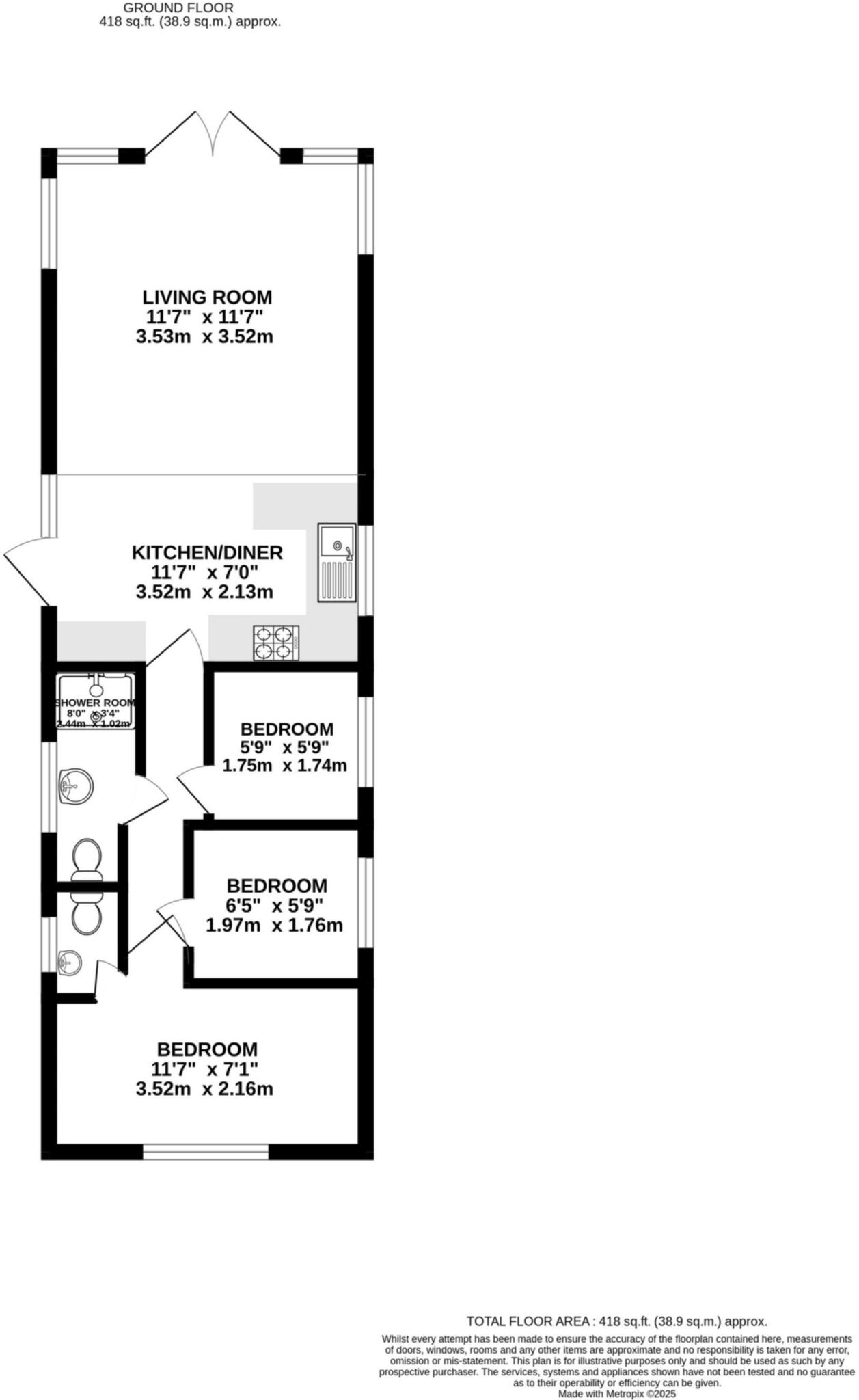
Compact overall size — approximately 418 sq ft, small rooms throughout
Raised decking, small lawn and private off-street parking space
External storage shed includes washing machine; useful utility space
Resort amenities: restaurant, clubhouse, pool, golf course, park leisure facilities
Wi‑Fi and TV licence included; park closes to residents for two-week break
Tenure unspecified — may restrict mortgage eligibility or resale options
Very slow broadband; area records higher deprivation indices
This compact three-bedroom park home is aimed at buyers seeking low-maintenance, seaside-adjacent living. The well-presented single-storey layout includes a fitted kitchen, open lounge, primary en-suite W/C and a shower room, all arranged within a modest 418 sq ft footprint. Outside there’s raised decking, a small lawn, external storage shed with washing machine and a private off-street parking space.
Residents benefit from on-site resort amenities including a restaurant, clubhouse, swimming pool and golf course. Practical extras include included Wi‑Fi and a television licence, and the property is offered chain free for a quicker move. Its location in Birchington provides easy access to local shops, beaches and rail links for wider connections.
Important practical points: the home is small and will suit buyers prioritising ease of upkeep over space. Broadband speeds are very slow and the tenure is listed as unknown, which could affect mortgage options or future saleability — buyers should check these before committing. The park closes to residents for a two-week break and the surrounding area records higher deprivation indices, which some buyers will want to consider alongside local conveniences.
Overall this property represents a budget-friendly, community-focused option for downsizers or those seeking a holiday-base by the north Thanet coast, provided they accept compact living and investigate tenure and connectivity implications beforehand.
2 bedroom park home for sale in Shottendane Road, Birchington, CT7 — £35,000 • 2 bed • 2 bath
2 bedroom mobile home for sale in Shottendane Road,Birchington,CT7 0HD, CT7 — £150,000 • 2 bed • 2 bath
2 bedroom park home for sale in Shottendane Road, Birchington, CT7 0HD, CT7 — £44,500 • 2 bed • 1 bath • 301 ft²
3 bedroom mobile home for sale in Shottendane Road, Birchington, CT7 0HD, CT7 — £100,000 • 3 bed • 2 bath • 684 ft²
2 bedroom park home for sale in Shottendane Road, Birchington, Kent, CT7 — £80,000 • 2 bed • 2 bath • 755 ft²
2 bedroom park home for sale in Shottendane Road, Birchington Vale Holiday Park, CT7 — £20,000 • 2 bed • 1 bath • 344 ft²






































