Characterful starter home a short walk from Biggleswade station and town centre..
- Two-bedroom Victorian terrace with character features
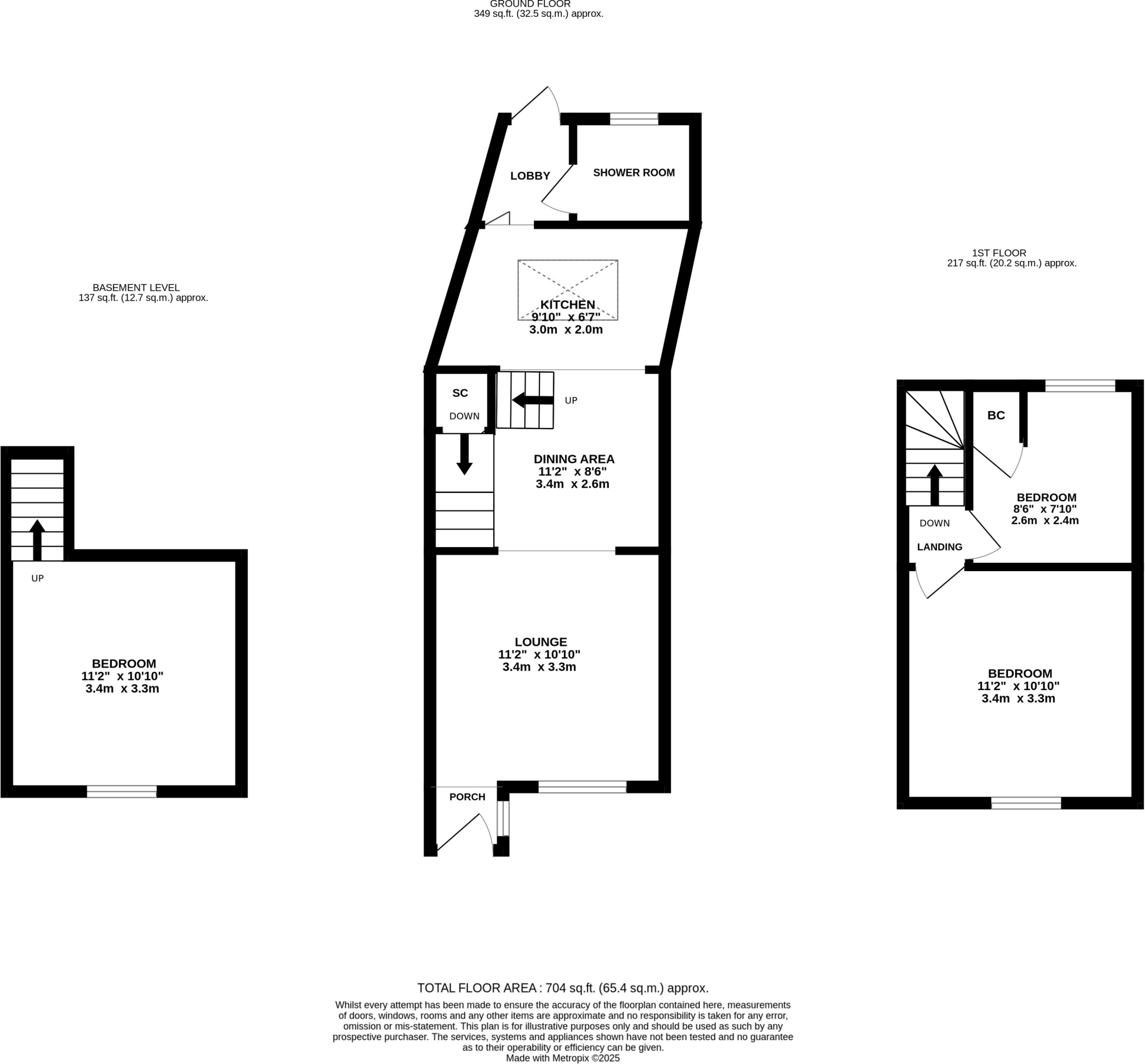
- Cellar with limited headroom (approx 6'4")
- Enclosed, low-maintenance paved rear garden
- Large outbuilding (approx 11'1" x 7'10") for office or storage
- Double glazing and gas radiator central heating installed
- Compact living footprint, typical of period cottages
- Shared gated side access; neighbour has right of way
- One shower room only; single bathroom dwelling
A compact two-bedroom Victorian terrace located a short walk from Biggleswade town centre and mainline station, suited to first-time buyers or buy-to-let purchasers seeking a low-maintenance starter home. The house retains period character externally and benefits from double glazing and gas central heating, reducing immediate running-cost concerns.
Accommodation is modest but functional: an open-plan sitting/dining room with an open fireplace, a cellar for extra storage, a fitted kitchen with skylight, and a ground-floor shower room. The enclosed rear garden is mainly paved and gravelled for easy upkeep and includes a sizable outbuilding that could serve as a home office, workshop, or storage space.
Practical points to note: the footprint is typically modest for a period terrace and room sizes are compact. There is a gated side access with a right of way for the neighbouring property (No. 76). While the presentation is generally good, the property offers straightforward scope for cosmetic updating to personalise living spaces and maximise rental or resale appeal.
Early viewing is advisable for buyers seeking a convenient town location with reasonable running costs and characterful period features in a freehold property.
2 bedroom terraced house for sale in St. Johns Street, Biggleswade, SG18 — £260,000 • 2 bed • 1 bath • 471 ft²
2 bedroom terraced house for sale in St. Johns Street, Biggleswade, Bedfordshire, SG18 — £280,000 • 2 bed • 1 bath • 520 ft²
2 bedroom cottage for sale in Lawrence Road, Biggleswade , SG18 — £270,000 • 2 bed • 1 bath • 552 ft²
2 bedroom terraced house for sale in Havelock Road, Biggleswade, SG18 0DB, SG18 — £325,000 • 2 bed • 1 bath • 731 ft²
3 bedroom terraced house for sale in Prospect Place,Biggleswade,Bedfordshire,SG18 8BX, SG18 — £275,000 • 3 bed • 1 bath • 646 ft²
2 bedroom terraced house for sale in Lawrence Road, Biggleswade, SG18 — £250,000 • 2 bed • 1 bath • 441 ft²


























































