**Standout Features:**
- Victorian semi-detached home with character features
- Off-road parking for two vehicles
- Large south-facing garden with extension potential (subject to planning permission)
- Located within walking distance to Wokingham town centre
- Affordable council tax and very low crime rate
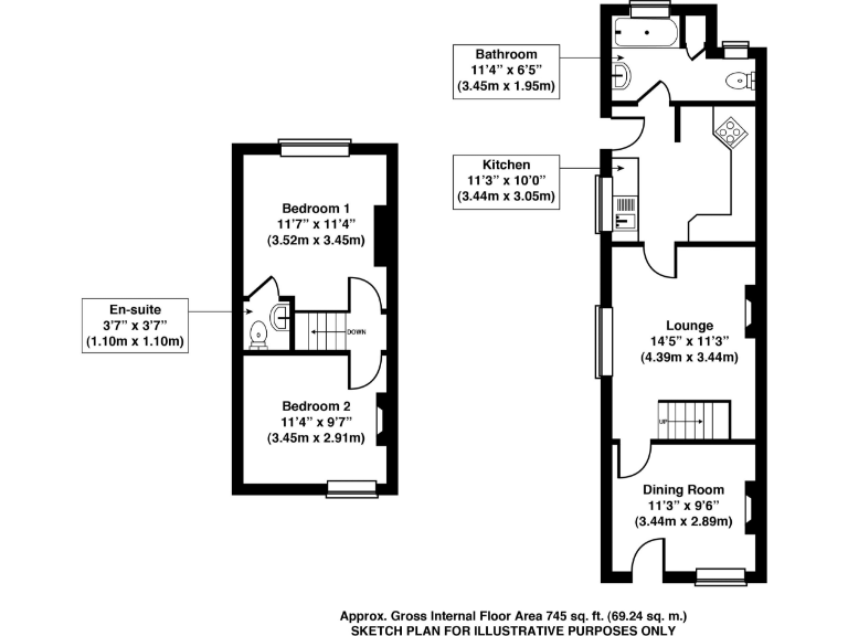
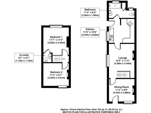
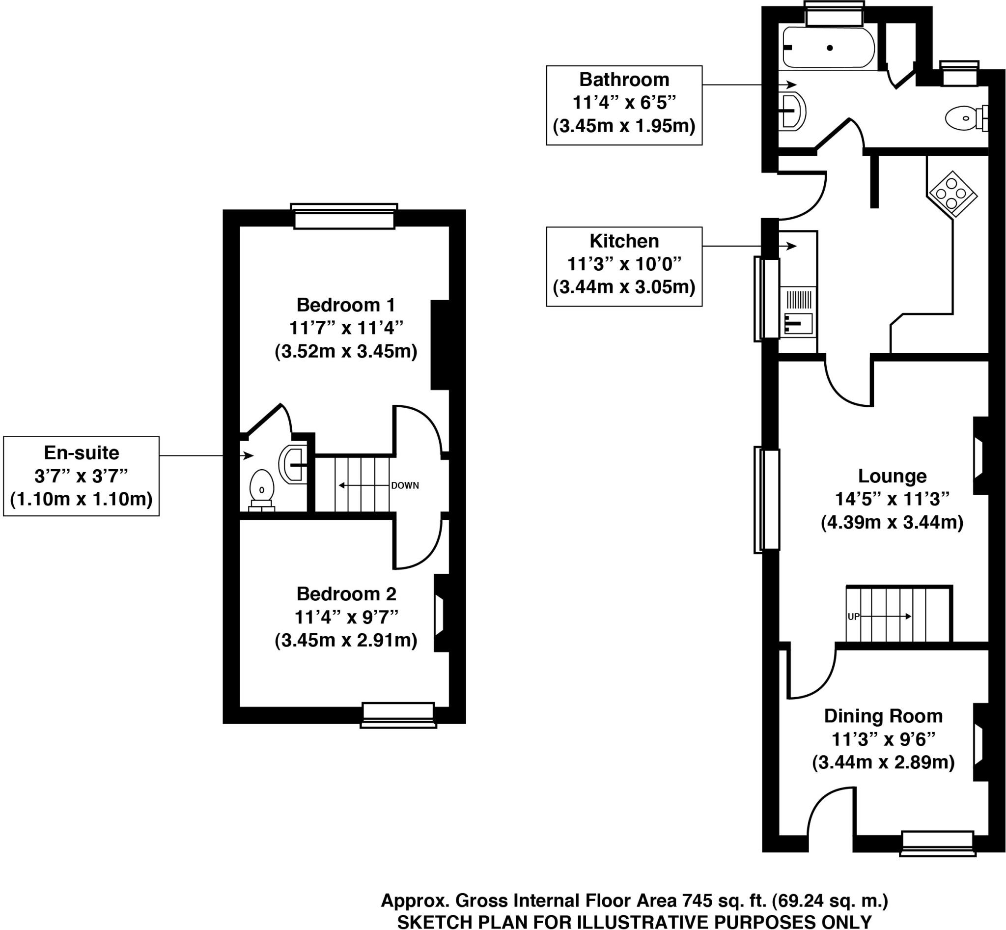
This charming two-bedroom Victorian semi-detached house offers a blend of character and modern living, making it a perfect fit for families or first-time buyers. Featuring a cozy dining room with an exposed brick fireplace, a comfortable living room complete with a log burner, and a spacious kitchen, this home is designed for both relaxation and entertaining. Upstairs, discover two double bedrooms, one conveniently equipped with a WC. The large south-facing rear garden provides ample outdoor space and possibilities for future expansion, subject to planning permission.
Situated in an affluent and comfortable suburb close to amenities, educational institutions, and with excellent mobile and broadband connectivity, this property is ideal for those seeking both community and convenience. While the property is well-maintained, prospective buyers should consider its modest size, which suits smaller families or couples looking for growth potential. Don't miss the opportunity to make this delightful home yours, as properties with such charm and potential in this sought-after area are not available for long!
2 bedroom end of terrace house for sale in London Road, Wokingham, Berkshire, RG40 — £395,000 • 2 bed • 1 bath • 745 ft²
2 bedroom semi-detached house for sale in Easthampstead Road, Wokingham, Berkshire, RG40 — £425,000 • 2 bed • 1 bath • 792 ft²
3 bedroom semi-detached house for sale in Matthewsgreen Road, Wokingham, Berkshire, RG41 — £600,000 • 3 bed • 2 bath • 1048 ft²
2 bedroom end of terrace house for sale in Waterloo Road, Wokingham, Berkshire RG40 2JE, RG40 — £375,000 • 2 bed • 1 bath • 797 ft²
2 bedroom terraced house for sale in Easthampstead Road, Wokingham, Berkshire, RG40 2EB, RG40 — £469,950 • 2 bed • 1 bath • 923 ft²
4 bedroom semi-detached house for sale in Evendons Lane, Wokingham, Berkshire, RG41 — £580,000 • 4 bed • 2 bath • 1298 ft²










































