Spacious character property with large garden and significant refurbishment potential.
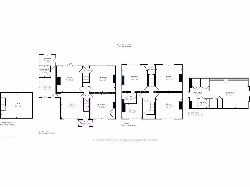
4 Bedrooms and 4 bathrooms across three floors
Large plot with garden and private off-street parking
Multiple reception rooms plus utility, boot room and basement cellar
Built c.1840 with original stonework and Georgian windows
Double glazing fitted before 2002 — may need replacement
Stone walls likely uninsulated (assumed) — consider thermal upgrades
Very large total size (approx. 3,380 sq ft) — higher maintenance likely
Council tax band unknown; buyer to verify local charges
This substantial 1840s detached stone house brings pronounced period character alongside generous, flexible living space. Set over three floors with four bedrooms and four bathrooms, the layout suits families seeking multiple reception rooms, dedicated utility and boot rooms, and a basement cellar for storage or conversion.
Key period features — exposed stonework, large Georgian windows and fireplaces — give the home strong character, while modern mains gas boiler heating and double glazing (installed before 2002) provide everyday comfort. The plot is large with private off-street parking and garden space that invites landscaping, play areas or an outdoor entertaining terrace.
Buyers should note this is a historic property: stone walls are likely uninsulated (assumed) and some thermal upgrades may be needed to improve efficiency and comfort. Double glazing is older and might warrant replacement in time. The house’s size and age also mean ongoing maintenance and potential refurbishment costs are realistic considerations.
For families looking for a distinctive, roomy home in an affluent, low-crime area with good local schools and fast broadband, this property offers substantial long-term potential. Practical improvements — insulation, window upgrades and targeted refurbishment — would both enhance comfort and protect the building’s value.
4 bedroom detached house for sale in Headlands, Liversedge, WF15 — £675,000 • 4 bed • 2 bath • 1917 ft²
4 bedroom detached house for sale in Littlethorpe Hill, Hartshead, Liversedge, West Yorkshire, WF15 — £835,000 • 4 bed • 3 bath • 2400 ft²
5 bedroom detached house for sale in Brighton House, Oakwell Avenue, WF17 — £595,000 • 5 bed • 3 bath • 2689 ft²
4 bedroom detached house for sale in Albion Road, Thornhill Edge, Dewsbury, WF12 — £380,000 • 4 bed • 2 bath • 2067 ft²
7 bedroom detached house for sale in 37A Main Street, Barnsley, South Yorkshire, S72 — £400,000 • 7 bed • 4 bath • 2265 ft²
6 bedroom detached house for sale in Pontefract House, Tithe Barn Street, Horbury, Wakefield, West Yorkshire, WF4 — £1,000,000 • 6 bed • 3 bath • 4865 ft²






























































































































































