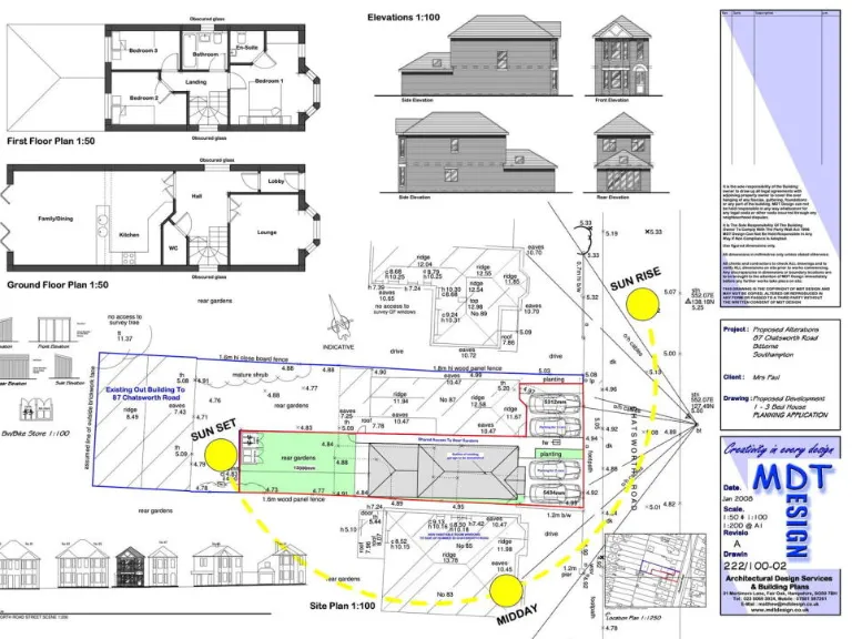
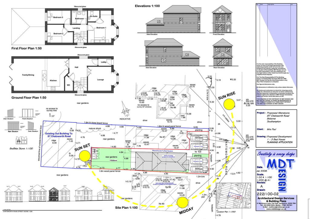
Approved planning and a large annex opportunity for buyer‑developers.
- Planning granted for a new three‑bed detached (ref 14/01335/DIS)
- Existing three‑bed detached mid‑refurbishment; part re‑wire completed
- Large outbuilding >100 sq m with annex conversion potential (STP)
- Prestigious, established Chatsworth Road location with strong demand
- Provisional Right of Light payment £35,000 payable to neighbour
- Outbuilding has no current attributable value; ~£150,000 to make habitable
- Single family bathroom; property needs further renovation and insulation work
A rare triple offering on one of Bitterne’s most sought-after streets: an existing three‑bed detached, a building plot with planning (ref 14/01335/DIS), and a generous outbuilding with conversion potential. The site gives a clear, deliverable route to uplift: refurbish and resell or rent the main house, build the approved three‑bed dwelling on the former garage footprint, and consider annex conversion or separate sale of the outbuilding (subject to permissions).
The existing house is mid‑refurbishment—replastering underway and a partial rewire completed—so immediate income or resale is possible after finishing works. The outbuilding exceeds 100 sq m and could form an annex equivalent to a bungalow footprint, though it carries no attributable value in its current state and would require substantial works (circa £150,000 estimated to reach habitable condition).
Planning is already granted for a new three‑bed detached home including ensuite and two reception rooms, simplifying the development route. Note there is a provisional Right of Light payment of £35,000 to a neighbouring property, and the property requires full renovation in places. Cavity walls are assumed to be uninsulated and the house presently offers one family bathroom, which may limit immediate family occupation without further adaptation.
Positioned close to Bitterne Precinct and Southampton city centre, the plot sits in an area with strong resale evidence—recent refurbished properties nearby achieving around £425,000—supporting confidence in end values for renovated or newly built houses. This package will suit buyers seeking a flexible, value‑add project in an established suburban neighbourhood.
Land for sale in Abbotts Way, Southampton, SO17 — £795,000 • 1 bed • 1 bath • 4994 ft²
Commercial development for sale in Harefield Community Centre, Yeovil Chase, Southampton, SO18 5NZ, SO18 — £300,000 • 1 bed • 1 bath
3 bedroom detached house for sale in Abshot Road, Fareham, PO14 — £595,000 • 3 bed • 2 bath • 1860 ft²
Land for sale in Athelstan Road, Bitterne, SOUTHAMPTON, SO19 — £135,000 • 3 bed • 1 bath
3 bedroom detached house for sale in Bitterne Road West, Southampton, Hampshire, SO18 — £325,000 • 3 bed • 1 bath • 1097 ft²
Plot for sale in Nursling Street, Nursling, Southampton, Hampshire, SO16 — £300,000 • 1 bed • 1 bath


































































































