**Standout Features:**
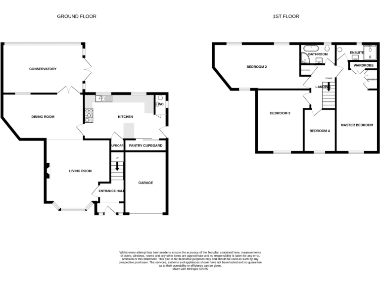
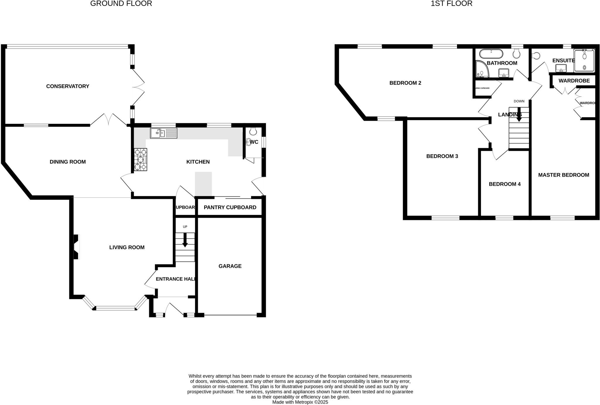
- Extended detached home with four bedrooms and two bathrooms
- Stunning conservatory providing bright, airy living spaces
- Master bedroom with en-suite for added privacy
- Attractive fitted kitchen, perfect for family meals
- Spacious driveway and single garage, offering ample parking
- Private landscaped garden with an outdoor bar, ideal for entertaining
- Freehold property, chain free, and moderate Council Tax Band D
This beautifully extended four-bedroom detached house, located in a desirable area of Horston Grange, is an exceptional opportunity for families seeking space and comfort. The home boasts a spacious living room that flows into a bright conservatory, while the well-equipped kitchen and dining area create an inviting atmosphere for family gatherings. Upstairs, you will find three generous double bedrooms, including a master suite with its own en-suite bathroom, plus a fourth single bedroom—ideal for a home office or guest room.
Outside, enjoy a private, landscaped garden complete with a stylish outdoor bar that's perfect for summer entertaining. With a large driveway and garage, parking is a breeze. The property enjoys a very low crime rate, excellent mobile signal, and fast broadband speeds, making it a safe and convenient choice for family living.
While this home is in good condition, prospective buyers should note that standard testing of services has not been undertaken. The area's strong investment potential, quality local schools, and thriving community ensure that this property won't stay on the market for long. Discover the perfect blend of comfort and opportunity in this charming family home!
3 bedroom detached house for sale in Tiverton Drive, Nuneaton, Warwickshire, CV11 — £330,000 • 3 bed • 2 bath • 1012 ft²
4 bedroom detached house for sale in Haselbury Corner, Nuneaton , CV10 — £400,000 • 4 bed • 3 bath • 1346 ft²
4 bedroom detached house for sale in Tiverton Drive, Nuneaton, CV11 — £395,000 • 4 bed • 1 bath • 1441 ft²
4 bedroom detached house for sale in Axminster Close, Nuneaton, CV11 — £425,000 • 4 bed • 2 bath • 1671 ft²
4 bedroom detached house for sale in Lower Farm Way, Nuneaton, CV10 — £325,000 • 4 bed • 2 bath • 1217 ft²
4 bedroom detached house for sale in Buchan Close, Galley Common, CV10 — £375,000 • 4 bed • 1 bath • 1153 ft²






































































































