Large period family home with huge west garden and second-floor conversion potential.
- Five bedrooms over three floors with adaptable second-floor layout
- Potential second-floor self-contained apartment or rental opportunity
- Large west-facing rear garden approx. 150ft, divided into two sections
- Off-street parking for two cars and convenient town/station access
- Requires modernisation and renovation throughout
- Solid brick walls assumed uninsulated; energy upgrades likely needed
- Council Tax band E and recorded higher local crime levels
- Vacant possession with no upper chain
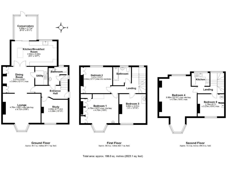
An Early Garden City five-bedroom semi-detached home arranged over three floors, offered with vacant possession and no upper chain. The house retains strong period character—bay windows, high ceilings and original Edwardian proportions—paired with practical upgrades such as post-2002 double glazing and gas central heating. The adaptable layout includes a kitchenette on the second floor, which could form a self-contained apartment for rental income or extended family use.
The property sits on a large, west-facing rear plot of approximately 150ft divided into two sections, ideal for family garden living, landscaping or potential extension (subject to consents). Off-street parking for two cars, proximity to the town centre, station and several good schools add to the location appeal. Existing planning history includes a conservatory consent (1992) and past tree works decisions.
Subjects to note: the house requires modernisation and renovation throughout, and walls are assumed to have no cavity insulation. Council Tax band E and a local higher-than-average recorded crime level should be considered when assessing suitability. Internal inspection is recommended to appreciate the scale, layout flexibility and scope for adding value.
4 bedroom semi-detached house for sale in Fairview Road, Stevenage, Hertfordshire, SG1 — £650,000 • 4 bed • 2 bath • 1393 ft²
4 bedroom semi-detached house for sale in Ridge Avenue, Letchworth Garden City, SG6 — £525,000 • 4 bed • 2 bath • 1020 ft²
4 bedroom semi-detached house for sale in Norton Way South, Letchworth Garden City, SG6 — £745,000 • 4 bed • 2 bath • 1655 ft²
3 bedroom detached house for sale in Hillshott, Letchworth Garden City, SG6 — £750,000 • 3 bed • 1 bath • 1338 ft²
4 bedroom semi-detached house for sale in Norton Road, Letchworth Garden City, SG6 — £730,000 • 4 bed • 2 bath • 1217 ft²
5 bedroom detached house for sale in Icknield Way, Letchworth Garden City, SG6 — £1,000,000 • 5 bed • 2 bath • 2267 ft²


























































































