Well-presented 2-bed end-terrace with private gardens — ideal for first-time buyers or investors..
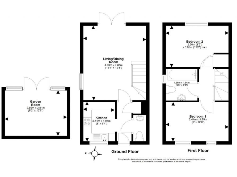
Two double bedrooms with built-in storage potential
Bright living room with patio doors to rear garden
Small private front, side and rear gardens with decking
Modest total area ~490 sq ft; compact living footprint
Gas central heating and double glazing throughout
Downstairs WC plus upstairs bathroom with shower over bath
Freehold tenure; factor fee £14/month (≈£168/year)
Located in a very deprived area; resale/letting caution advised
This compact two-bedroom end-terrace offers practical, move-in-ready accommodation in Gilmerton, south of Edinburgh. Neutral décor, modern fixtures and a fitted kitchen make it suitable for first-time buyers or investors seeking a low-maintenance home with private outdoor space.
The ground floor features a bright living room with patio doors to the rear garden, plus a convenient downstairs WC. Upstairs are two double bedrooms (one with built-in storage) and a family bathroom. The property benefits from gas central heating, double glazing and fast broadband/mobile connectivity.
Externally there are small private gardens to the front, side and rear with a decked area and summer house. The plot and internal floor area are modest (approximately 490 sq ft), so space is limited; off-street parking is constrained. The listing mentions views toward the Pentlands and Arthur’s Seat, though some summaries note no prominent long-distance views from the street.
Practical points to note: the home is freehold with a small annual factor fee (£14/month listed as £168/year). The area is described as very deprived, which may affect resale dynamics and tenant demand. Overall this is a straightforward, well-presented small family home or rental buy with modest scope for value uplift through minor modernisation.
2 bedroom terraced house for sale in 5 Yorkston Court, Gilmerton, Edinburgh, EH17 8XX, EH17 — £250,000 • 2 bed • 1 bath • 575 ft²
2 bedroom terraced house for sale in 18 Ferniehill Square, Edinburgh, EH17 — £195,000 • 2 bed • 1 bath • 753 ft²
2 bedroom terraced house for sale in 11 Darnley Terrace, Edinburgh, EH16 4WS, EH16 — £210,000 • 2 bed • 1 bath • 532 ft²
3 bedroom semi-detached house for sale in 64 Craigour Crescent, Gilmerton, Edinburgh, EH17 7NR, EH17 — £200,000 • 3 bed • 1 bath • 741 ft²
2 bedroom terraced house for sale in 4a Brocken Brigg End, Edinburgh, EH17 8YX, EH17 — £240,000 • 2 bed • 1 bath • 632 ft²
2 bedroom flat for sale in 71/2 Newtoft Street, Gilmerton, EH17 8RB, EH17 — £167,000 • 2 bed • 1 bath • 631 ft²


































































