Quiet Bounds Green location with garden and excellent transport links.
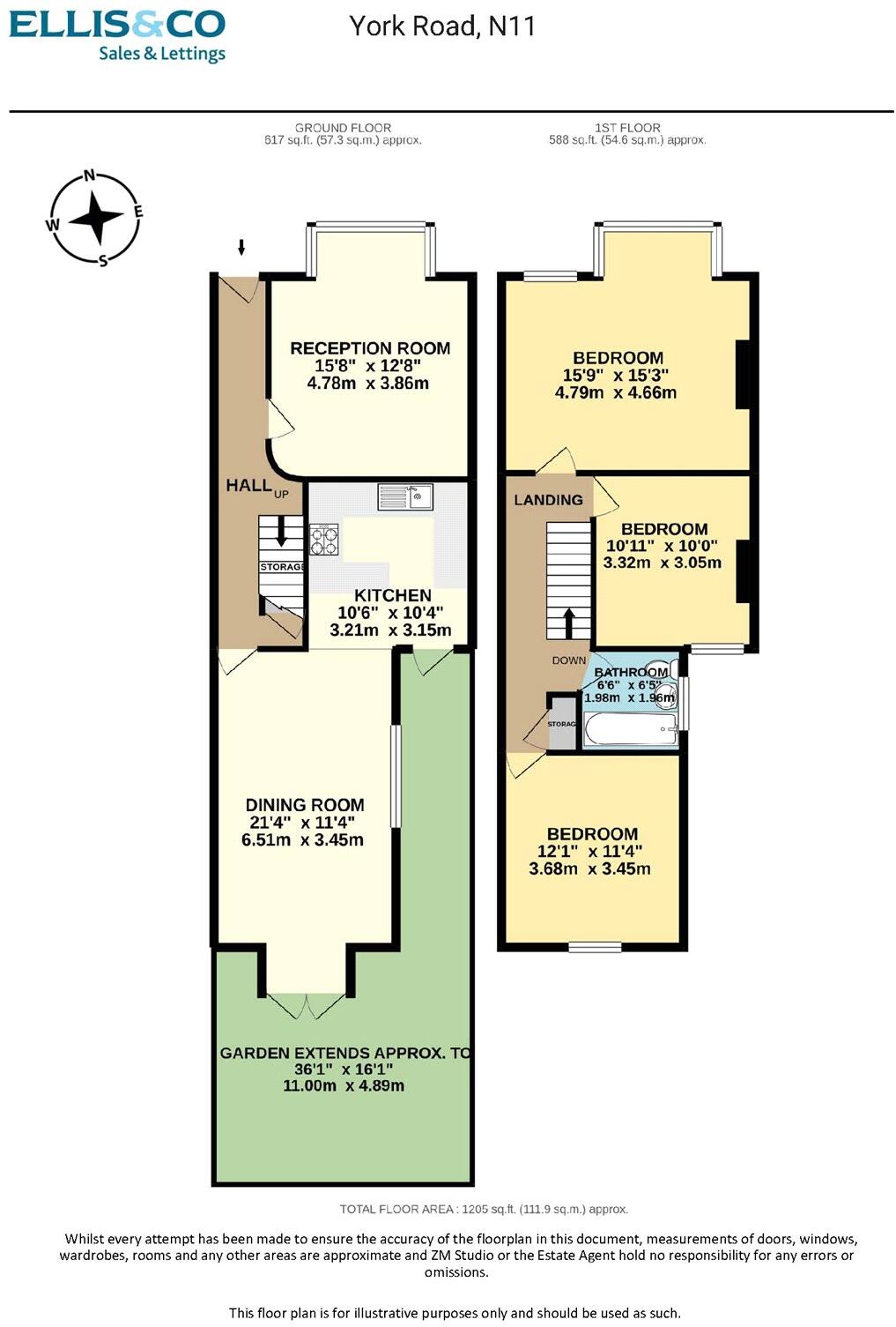
- Three large double bedrooms
- Rear garden mainly laid to lawn
- Large reception plus separate dining room
- Walking distance to Tube and Overground
- Freehold and offered chain free
- Single family bathroom only
- Built circa 1900–1929; solid brick, no insulation
- Double glazing installed before 2002; may need upgrades
This late-Victorian mid-terrace offers three large double bedrooms, generous living space and a rear garden in quiet Bounds Green. The house sits on a small plot yet benefits from high ceilings, period sash windows, decorative gables and a tiled hallway that retain strong character.
The ground floor flows from a large reception through to a modern kitchen and second reception/dining room opening to the garden — practical for family life and entertaining. Excellent transport links are within walking distance (Bounds Green Underground and Bowes Park Overground), and local primary schools include two rated Outstanding, making this well-suited to families.
The property is chain free and freehold, with a single family bathroom serving three bedrooms. Constructed circa 1900–1929 with solid brick walls, the house has double glazing installed before 2002 and no listed internal insulation — sensible buyers should allow budget for thermal improvements and an upgrade to current standards where desired.
Practical positives include mains gas central heating, fast broadband and very good mobile signal. Council Tax Band E and the single bathroom are realistic considerations for growing households. Overall, this is a characterful period family home with immediate move-in potential and clear scope to enhance energy efficiency and modern comfort.
3 bedroom terraced house for sale in Palace Road, London, N11 — £599,000 • 3 bed • 1 bath • 823 ft²
2 bedroom terraced house for sale in Eleanor Road, London, N11 — £650,000 • 2 bed • 1 bath • 778 ft²
3 bedroom terraced house for sale in Shrewsbury Road, London, N11 — £700,000 • 3 bed • 1 bath • 972 ft²
4 bedroom terraced house for sale in Elvendon Road, London, N13 — £795,000 • 4 bed • 2 bath • 1487 ft²
3 bedroom terraced house for sale in Ollerton Road, London, N11 — £735,000 • 3 bed • 1 bath • 1075 ft²
3 bedroom house for sale in Highworth Road, London, N11 — £775,000 • 3 bed • 1 bath • 1034 ft²














































































