Spacious renovated ground-floor apartment with double garage and gated communal gardens.
Chain free and newly renovated throughout
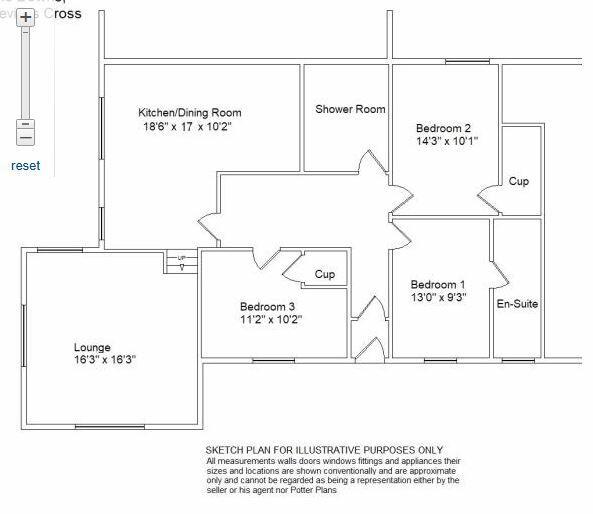
Triple-aspect lounge, bright open-plan kitchen/diner
Principal bedroom with en suite shower room
Double garage plus two external parking spaces
Well-maintained communal gardens and gated entry
Leasehold with c.210 years remaining
Service charge c.£1,250pa; Council Tax Band E (above average)
Ground-floor flat — bungalow-like but within a communal development
Set within one of Durham’s most desirable developments, this newly refurbished three-bedroom ground-floor apartment offers an executive, bungalow-style layout with generous living space and modern finishes. The triple-aspect living room and a large open-plan kitchen/diner create bright, flexible entertaining space, while the principal bedroom benefits from an en suite. The flat is chain free and ready to occupy.
Outside there are well-maintained communal gardens with seating and an ornamental pond, plus practical parking: a double garage and two additional spaces. The development sits close to strong local schools, good road links and city-centre amenities — a convenient base for families and professionals.
Practical considerations are straightforward: the property is leasehold with around 210 years remaining, a service charge of approximately £1,250 per year and council tax at Band E. Although recently renovated throughout, buyers should note this remains a communal development rather than a detached bungalow.
Overall this apartment will suit buyers seeking low-maintenance, spacious ground-floor living in a very affluent, well-connected neighbourhood — particularly families and professionals looking for easy access to schools and the city centre.
3 bedroom bungalow for sale in Lowes Rise, The Downs, Nevilles Cross, DH1 — £450,000 • 3 bed • 2 bath • 768 ft²
2 bedroom apartment for sale in Taylor Court, Carrville, Durham, Durham, DH1 1EL, DH1 — £95,000 • 2 bed • 2 bath • 582 ft²
2 bedroom apartment for sale in Whitfield Court, Pity Me, Durham, DH1 — £109,000 • 2 bed • 1 bath • 625 ft²
2 bedroom apartment for sale in Pickering Place, Durham, DH1 1EG, DH1 — £85,000 • 2 bed • 1 bath • 711 ft²
2 bedroom apartment for sale in Monument Court, Nevilles Cross, Durham, DH1 — £174,950 • 2 bed • 1 bath • 851 ft²
2 bedroom apartment for sale in Taylor Court, Carville, Durham, County Durham, DH1 — £95,000 • 2 bed • 2 bath • 582 ft²


































































































































































