New-build three-bedroom terraced home with parking and large garden, reserve for £1,000..
Three bedrooms with versatile single room for home office or nursery
Rear garden and very large plot—good outdoor space potential
Two allocated parking spaces plus visitor parking
Single family bathroom only—limited bathroom provision
Solar panels and predicted EPC A help reduce energy costs
10-year NHBC warranty on completion for buyer protection
Reserve off-plan for £1,000 with complimentary flooring choice
Cavity walls noted as having no insulation (assumed); may need work
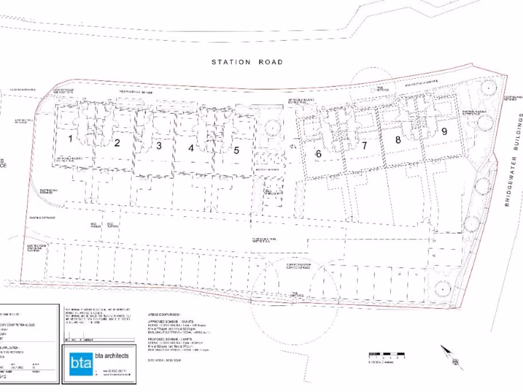
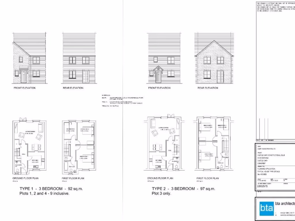
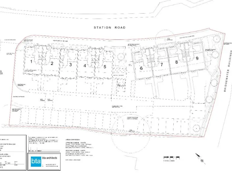
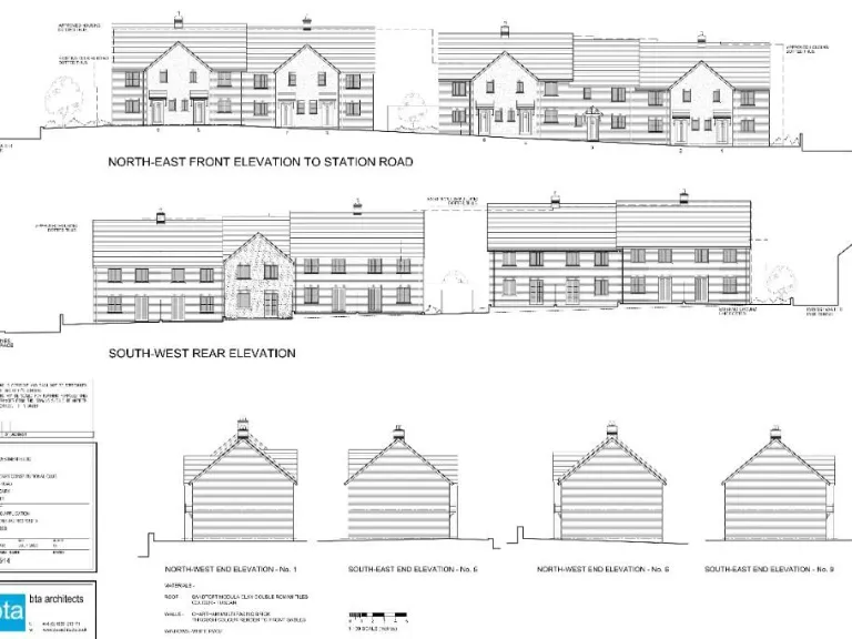
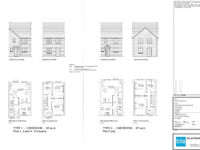
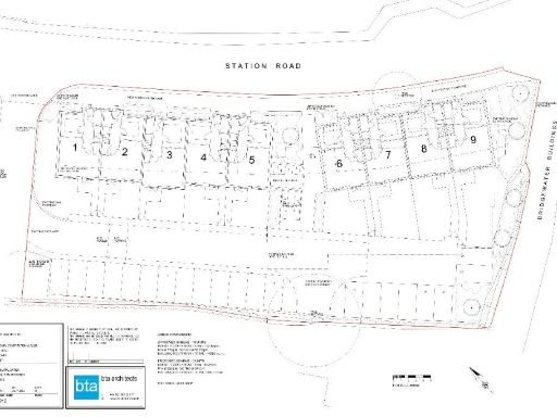
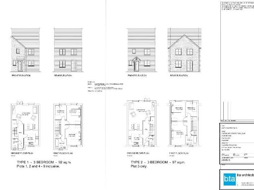
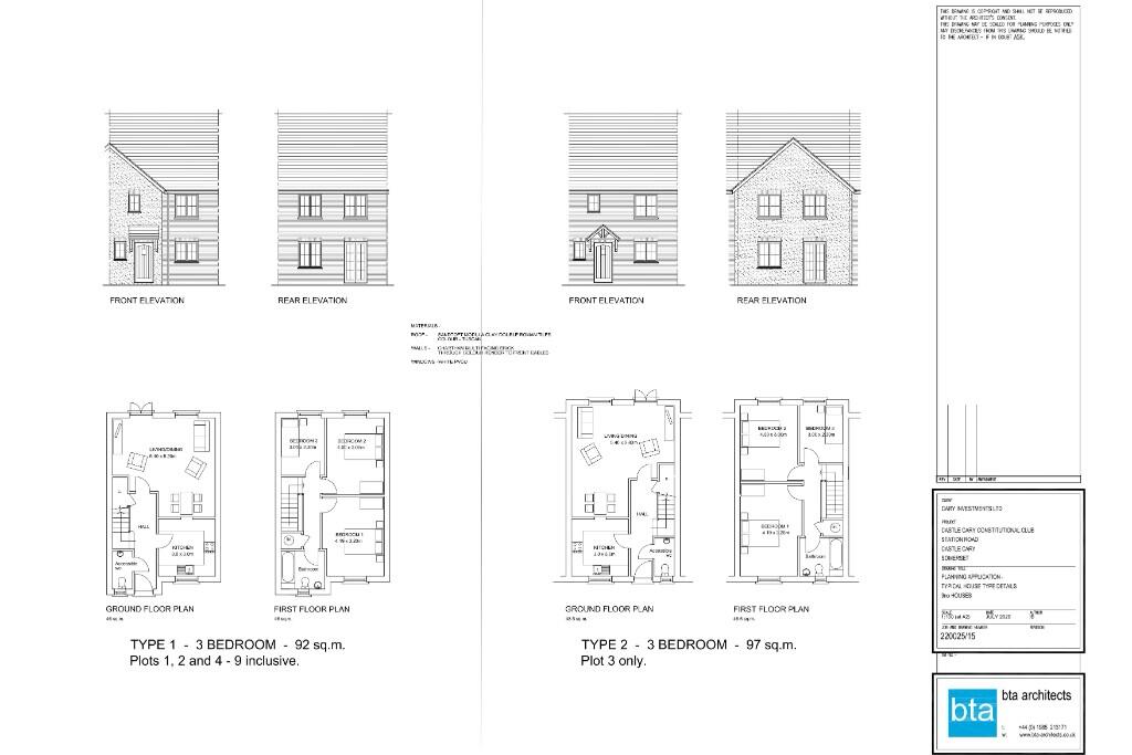
A well-proportioned three-bedroom terraced new build in Castle Cary, offered off-plan with completion expected in early autumn 2025. The home includes a sitting room, kitchen, family bathroom, rear garden, two allocated parking spaces and visitor parking — practical features for first-time buyers and young families. Buyers can reserve the plot for £1,000 and choose complimentary flooring if they reserve early. The property comes with a full 10-year NHBC warranty on completion and predicted EPC A rating; solar panels support lower running costs.
Accommodation is arranged over multiple storeys with a generous double bedroom, a second double, and a versatile single room suitable for a nursery, home office or dressing room. The layout is straightforward and move-in ready in finish, ideal for buyers seeking low-maintenance, modern living close to Castle Cary town centre and rail links to London.
Notable practical points: there is a single family bathroom only, and the specification notes cavity walls with assumed no insulation and double glazing listed as installed before 2002 — these items may affect future running costs or prompt additional insulation works. Local schools’ performance is mixed and the area has average crime and deprivation scores; the plot is very large so external space is a genuine asset but may need upkeep.
Overall this mid-terrace new home suits first-time buyers or young families wanting a chain-free purchase, contemporary energy features and easy access to local amenities. If you prioritise off-street parking, outdoor space and a new-build warranty, this plot presents a strong, practical option with modest retrofit considerations to note.
3 bedroom terraced house for sale in Shorland Row Plot 4, Station Road, Castle Cary, Somerset, BA7 7BY, BA7 — £300,000 • 3 bed • 1 bath • 990 ft²
3 bedroom end of terrace house for sale in Shorland Row Plot 1, Station Road, Castle Cary, Somerset, BA7 7BY, BA7 — £310,000 • 3 bed • 1 bath • 990 ft²
3 bedroom terraced house for sale in Shorland Row Plot 2, Station Road, Castle Cary, Somerset, BA7 7BY, BA7 — £300,000 • 3 bed • 1 bath • 990 ft²
3 bedroom end of terrace house for sale in Station Road, Castle Cary, BA7 — £310,000 • 3 bed • 1 bath • 990 ft²
3 bedroom terraced house for sale in Station Road , Castle Cary, BA7 — £300,000 • 3 bed • 1 bath • 990 ft²
3 bedroom terraced house for sale in Station Road , Castle Cary , BA7 — £300,000 • 3 bed • 1 bath • 1044 ft²














































