Private 550 sq ft patio, two-car garage and elegant contemporary finishes.
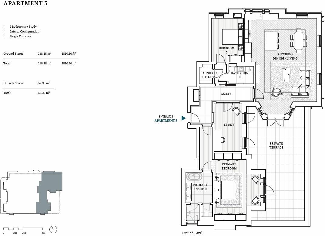
- 1,810 sq ft lateral ground-floor apartment with high ceilings
- Large south-facing private patio approximately 550 sq ft
- 3 bedrooms (third ideal as study) and 2 stylish bathrooms
- Double reception room with luxury open-plan kitchen and utility
- Underground parking for two cars included
- Newly built/interior designed to a high specification (2025)
- Tenure not specified; confirm legal details before offer
- Broadband speeds reported slow locally; crime level average
A generously proportioned ground-floor apartment forming part of a brand-new development on The Bishops Avenue. At approximately 1,810 sq ft the lateral layout includes a double reception room, a luxury kitchen, separate utility, and three flexible bedrooms (third ideal as a study). The large south-facing patio—around 550 sq ft—leads direct to communal gardens and adds rare private outdoor space for this type of building.
High-spec interior design and premium fittings are fitted throughout, with elegant finishes, marble touches and high ceilings that reference the building’s Georgian exterior. The flat comes with underground parking for two cars and easy access to East Finchley tube and local shops (around 0.5 mile). Highgate Village and Hampstead Heath lie about 1.5 miles away.
Buyers should note this is a new-build completion expected in February 2025 and the legal tenure is not specified in the sales information. Broadband speeds in the area are reported slow; crime levels are average. These practical points are balanced by the property’s size, layout and high-quality specification, making it suited to families seeking space and immediate low-maintenance living in a very affluent area.
3 bedroom apartment for sale in The Bishops Avenue, London, N2 — £3,250,000 • 3 bed • 3 bath • 1915 ft²
3 bedroom apartment for sale in The Bishops Avenue, London, N2 — £2,950,000 • 3 bed • 3 bath • 2041 ft²
3 bedroom apartment for sale in The Bishops Avenue, London, N2 — £3,250,000 • 3 bed • 3 bath • 1915 ft²
3 bedroom flat for sale in The Bishops Avenue, Hampstead Garden Suburb , N2 — £2,950,000 • 3 bed • 3 bath • 2041 ft²
3 bedroom apartment for sale in The Bishops Avenue, London, N2 — £2,950,000 • 3 bed • 3 bath • 2041 ft²
2 bedroom flat for sale in The Bishops Avenue, Hampstead Garden Suburb , N2 — £1,495,000 • 2 bed • 3 bath • 985 ft²


















