Spacious family layout near shops, leisure and well-rated schools.
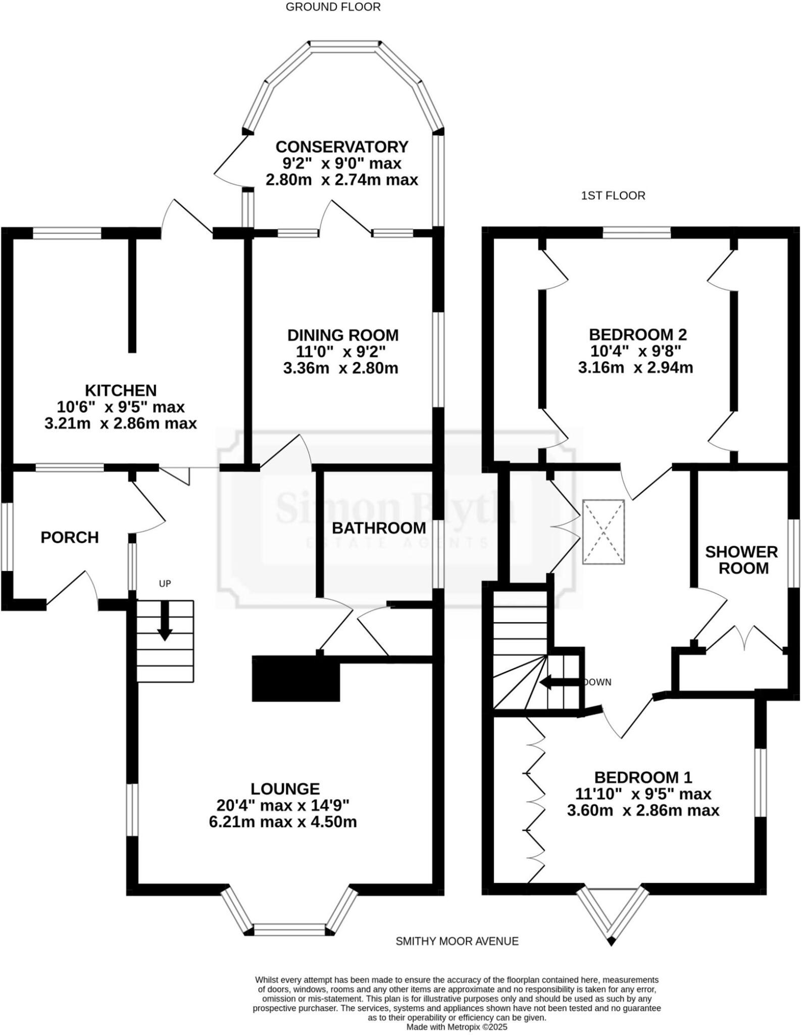
- Detached two-bedroom house with Tudor-style bay window
- Large established rear garden, strong outdoor potential
- Modern kitchen with glossy cabinets and under-cabinet lighting
- L-shaped lounge plus separate dining room and conservatory
- Off-street parking space for one vehicle (driveway)
- EPC D; double glazing installed before 2002
- Cavity walls assumed without insulation — upgrade recommended
- Council Tax Band B; very low local crime
This well-located two-bedroom detached house in Stocksbridge offers comfortable family living across an L-shaped living room, separate dining room and a modern kitchen. The bay-fronted lounge and conservatory provide pleasant natural light and a sense of space, while two double bedrooms and a first-floor shower room suit everyday family needs.
The property sits on a large, established rear garden with off-street parking for one vehicle and easy access to local amenities including Fox Valley retail park, shops and good schools. Built in the late 1960s/early 1970s, the home blends period Tudor-style character with a recently fitted kitchen and usable living spaces.
Buyers should note a few practical issues: the property currently has double glazing installed before 2002 and cavity walls assumed without insulation, contributing to its EPC rating of D. There is clear scope and value in upgrading insulation and possibly windows to reduce running costs and improve comfort. Council Tax Band B and very low local crime make this a cost-effective family choice in an affluent area.
3 bedroom detached house for sale in Mcintyre Road, Stocksbridge, Sheffield, S36 — £270,000 • 3 bed • 1 bath • 995 ft²
4 bedroom detached house for sale in St. Veronica Road, Deepcar, Sheffield, S36 — £270,000 • 4 bed • 2 bath • 1050 ft²
4 bedroom detached house for sale in St. Helen Road, Deepcar, Sheffield, S36 — £275,000 • 4 bed • 2 bath • 1059 ft²
5 bedroom detached house for sale in Broomfield Road, Stocksbridge, Sheffield, S36 — £475,000 • 5 bed • 3 bath • 1473 ft²
3 bedroom semi-detached house for sale in East Crescent, Stocksbridge, Sheffield, S36 — £180,000 • 3 bed • 1 bath • 862 ft²
3 bedroom semi-detached house for sale in Newton Avenue, Sheffield, S36 — £220,000 • 3 bed • 1 bath • 754 ft²


















































































