Large reception, sunny balcony, long lease — ideal for first-time buyers or investors.
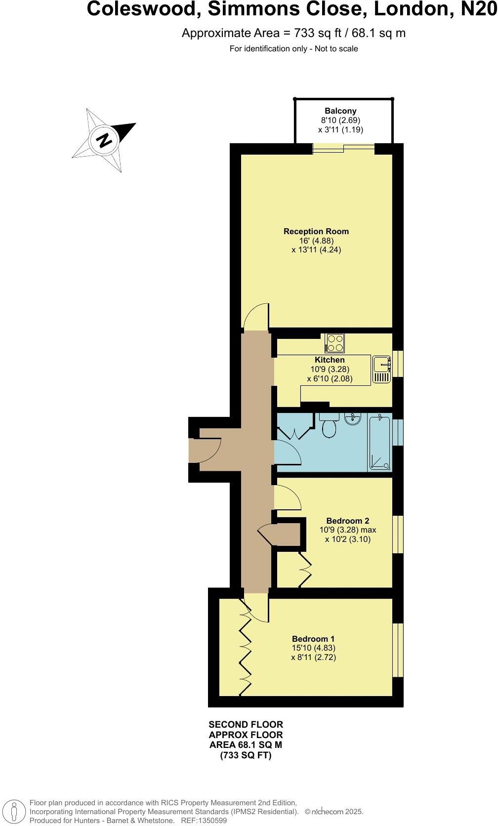
733 sq.ft two double bedrooms and large reception room
A spacious two-double-bedroom flat offering 733 sq.ft of light-filled living in a low-rise 1960s brick block. The large reception opens onto a west/southwest-facing balcony that captures afternoon sun, making it a comfortable spot for relaxing or simple entertaining. The kitchen and bathroom are modern-fitted, and gas central heating plus double glazing are already installed.
This home suits first-time buyers seeking roomy accommodation in an affordable band C council tax location, and buy-to-let investors attracted by a long 129-year lease and modest ground rent (£50). Transport links are good: Totteridge & Whetstone and Oakleigh Park stations are walkable, with local schools highly rated nearby.
Externally the building and communal grounds are modest and show signs of dated 1960s styling; there is potential and scope for modernisation and energy upgrades (current EPC cited as band D). Cavity walls likely lack retrofit insulation, and communal areas and the façade would benefit from refresh work. Parking is available adjacent but appears limited.
2 bedroom flat for sale in High Road, London, N20 — £375,000 • 2 bed • 1 bath • 637 ft²
2 bedroom flat for sale in South Mount, London, N20 — £375,000 • 2 bed • 1 bath • 688 ft²
2 bedroom flat for sale in High Road, London, N20 — £400,000 • 2 bed • 1 bath • 700 ft²
2 bedroom apartment for sale in Totteridge Lane, London, N20 — £735,000 • 2 bed • 2 bath • 851 ft²
2 bedroom flat for sale in High Road, Whetstone, N20 — £455,000 • 2 bed • 2 bath • 728 ft²
3 bedroom flat for sale in Capel Close, London, N20 — £400,000 • 3 bed • 1 bath • 774 ft²






















































































