**Standout Features:**
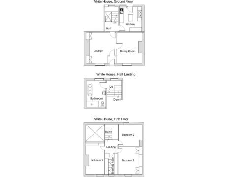
- Beautifully presented 3-bedroom mid-terrace cottage.
- Stunning oak-framed garden room, ideal for relaxation and entertaining.
- Attached coach house with approved planning permission for conversion to a separate dwelling.
- Stylish interior design with bespoke cabinetry and original charm.
- Central location in the historic town of Alston, close to amenities.
**Concerns:**
- Leasehold property with 600 years remaining; ground rent is relatively expensive at £600.
- Parking is on-street.
Nestled in the heart of Alston, this charming double-fronted cottage offers a unique blend of traditional character and modern luxury. Boasting three spacious bedrooms, a stylish lounge with a wood-burning stove, and a contemporary bathroom, the home is perfect for families or first-time buyers looking for comfort and style. The bespoke oak garden room is an outstanding feature, providing a tranquil sunlight-filled retreat that seamlessly invites the outdoors in. The property includes an attached coach house with existing planning permission for conversion, presenting an exciting opportunity for rental income, multi-generational living, or creative space.
While the cottage is in excellent condition, potential buyers should note the leasehold status and its associated costs. With its location offering easy access to local amenities, schools, and scenic countryside, this property is not only a lovely home but also a fantastic investment opportunity. Don’t miss out on making this delightful cottage your own in a highly sought-after market town!
3 bedroom semi-detached house for sale in Church Road, Alston, CA9 — £150,000 • 3 bed • 1 bath
4 bedroom terraced house for sale in 2-3 Overburn, Alston, CA9 — £140,000 • 4 bed • 1 bath • 1077 ft²
2 bedroom detached house for sale in The Butts, Alston, Cumbria, CA9 3JQ, CA9 — £325,000 • 2 bed • 2 bath • 1448 ft²
5 bedroom stone house for sale in Front Street, Alston, Cumbria, CA9 3SQ, CA9 — £270,000 • 5 bed • 3 bath • 2202 ft²
Studio flat for sale in Townhead, Alston, CA9 — £75,000 • 1 bed • 1 bath • 430 ft²
4 bedroom character property for sale in Front Street, Alston, Cumbria, CA9 3SQ, CA9 — £425,000 • 4 bed • 3 bath • 1611 ft²


























































































































































