Chain-free freehold bungalow needing full refurbishment, close to station and riverside walks..
Freehold detached bungalow offered chain free
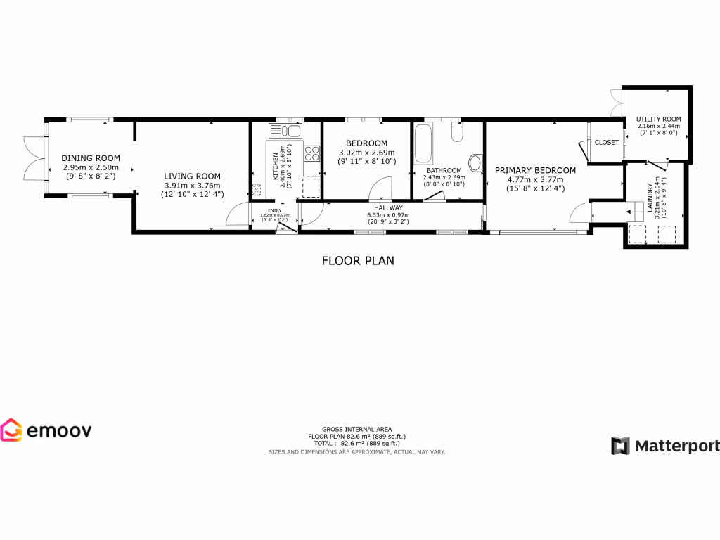
Two double bedrooms, one family bathroom, approx. 889 sq ft
Sold as seen; requires complete refurbishment or rebuilding
Visible water damage and dated interior throughout
12-month occupancy in place — affects immediate possession
Small plot with front garden, patio and off-street parking
Walking distance to Althorne station and riverside walks
Low flood risk, very low crime, fast broadband
A detached, freehold bungalow offered chain free in Althorne, ideal for a retiree or downsizer looking to create a comfortable riverside home. The single-storey layout includes two double bedrooms, a living room opening to a dining area, kitchen, family bathroom and rear storage — all within an average-sized footprint (approx. 889 sq ft). The plot is small but includes a front garden, patio area and off-street parking.
The property is being sold as seen and requires complete refurbishment or redevelopment; there is visible water damage and dated internal finishes throughout. This is a straightforward renovation project or a blank canvas for a new dwelling subject to planning. Buyers should note the dwelling is occupied for 12 months, which will affect immediate vacant possession.
Location is a principal strength: peaceful village setting with riverside walks on the doorstep and Althorne railway station within walking distance, providing direct links to London Liverpool Street. Local crime levels are very low, broadband speeds are fast, and flood risk is low, supporting practical, everyday living.
This will suit someone seeking a quiet retirement base or a renovation-minded buyer wanting a single-storey property with good transport links. Be realistic about the work required: structural checks, full internal refurbishment and modernisation will be needed before full comfort and value are realised.
2 bedroom bungalow for sale in Bridgemarsh Lane, Althorne, CM3 — £250,000 • 2 bed • 2 bath • 13202 ft²
2 bedroom semi-detached house for sale in Althorne, CM3 — £195,000 • 2 bed • 1 bath • 980 ft²
3 bedroom detached bungalow for sale in Summerhill, Althorne, Chelmsford, CM3 — £400,000 • 3 bed • 2 bath • 872 ft²
2 bedroom detached house for sale in Tower Side, Tower Park, Hullbridge, Hockley, SS5 — £190,000 • 2 bed • 1 bath
2 bedroom cottage for sale in 2 Winterdale Cottages, Burnham Road, Althorne, Chelmsford, Essex, CM3 6BX, CM3 — £195,000 • 2 bed • 1 bath • 560 ft²
2 bedroom semi-detached bungalow for sale in Hullbridge Road, Rayleigh, SS6 — £329,950 • 2 bed • 1 bath






















































