**Standout Features:**
- Period home with six spacious double bedrooms
- Chain-free sale for a smooth transition
- Open-plan kitchen and dining area leading to the garden
- Three well-appointed bathrooms
- Elegant Edwardian living room with high ceilings and original fireplace
- Located in an affluent, culturally rich area close to excellent schools and amenities
- Current EPC Rating: E; Council Tax Band: F
- Garage and off-street parking available
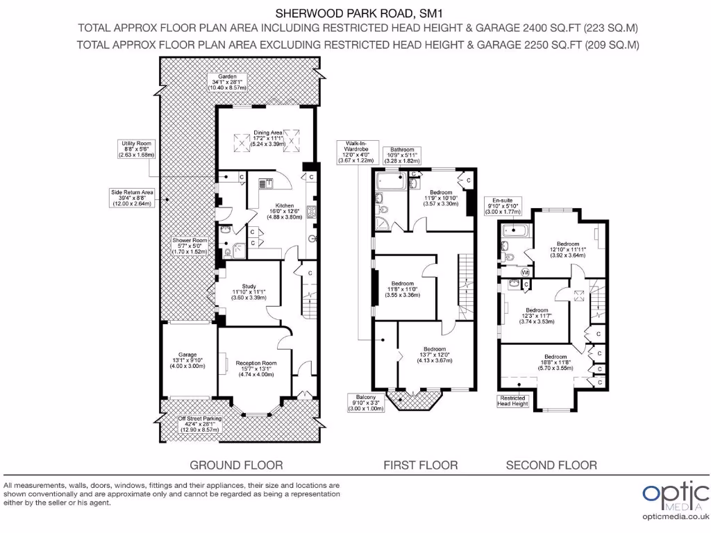
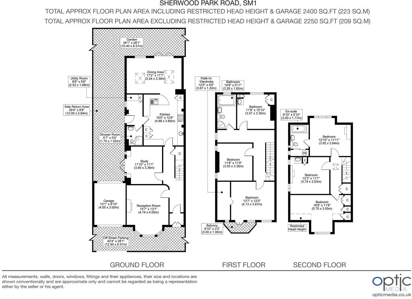
This beautifully presented six-bedroom period home on the desirable Sherwood Park Road in Sutton perfectly blends timeless charm and modern comforts. With its generous living spaces, including three light-filled reception rooms and a stunning open-plan kitchen that seamlessly transitions to a well-maintained garden, it's ideal for family gatherings and entertaining. Each of the six double bedrooms offers a private retreat, while three bathrooms ensure ample convenience for everyone.
This property stands out not just for its impressive space—at 2,250 sq ft—but also for its location in an affluent urban neighborhood with top-rated schools and vibrant community amenities just a stone's throw away. Although it features double glazing and a robust structure characteristic of the early 20th century, potential buyers should note the lack of insulation and the age of the property which may require some maintenance. Don’t miss out on this rare opportunity to own a stunning period property that offers both style and room for future renovations—a true gem in the heart of Sutton. Act quickly, as homes in this tranquil and culturally rich area are highly sought after!
5 bedroom semi-detached house for sale in St. James Road, Sutton, SM1 — £850,000 • 5 bed • 2 bath • 2554 ft²
5 bedroom semi-detached house for sale in Sherwood Park Road, Sutton, SM1 — £800,000 • 5 bed • 2 bath • 2380 ft²
6 bedroom semi-detached house for sale in Egmont Road, Sutton, SM2 — £1,150,000 • 6 bed • 2 bath • 2446 ft²
5 bedroom semi-detached house for sale in Egmont Road, South Sutton, SM2 — £1,000,000 • 5 bed • 2 bath • 2158 ft²
3 bedroom terraced house for sale in Fairlands Avenue, Sutton, SM1 — £600,000 • 3 bed • 1 bath • 1105 ft²
2 bedroom terraced house for sale in Beauchamp Road, Sutton, SM1 — £475,000 • 2 bed • 1 bath • 951 ft²






































































































































