**Standout Features:**
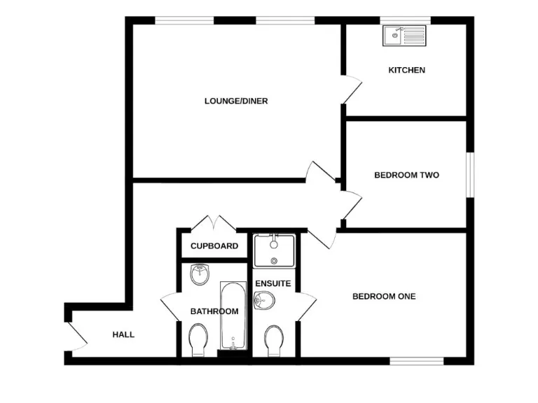
- Two bedrooms, including an ensuite master
- Modern family bathroom
- Secure entry system
- Off-street allocated parking
- Close proximity to local amenities and transport links
- Chain-free sale
**Potential Concerns:**
- Slightly high crime rate in the area
- Maintenance of communal areas may require attention
Discover a charming second-floor apartment that blends modern style with practicality in the self-sufficient community of Park Gate, just on the outskirts of Southampton. This lovely two-bedroom flat boasts a spacious lounge/diner filled with natural light, perfect for relaxation or entertaining family and friends. The smartly designed kitchen is conveniently adjacent to the living space, enhancing its open-plan feel.
Enjoy the comfort of an ensuite in the master bedroom, coupled with a stylish family bathroom that caters to the needs of a modern lifestyle. With no forward chain and secure entry, this residence offers peace of mind and immediate occupancy. Benefit from the added convenience of both stairs and lift access to all floors, alongside an allocated parking space.
Located close to local amenities and transport links, this apartment is ideal for first-time buyers or small families looking to settle in a vibrant area. Take advantage of excellent broadband speeds and a nurturing environment for your future. With its appealing features and chain-free status, this gem won’t last long. Schedule your viewing today!



































