**Standout Features:**
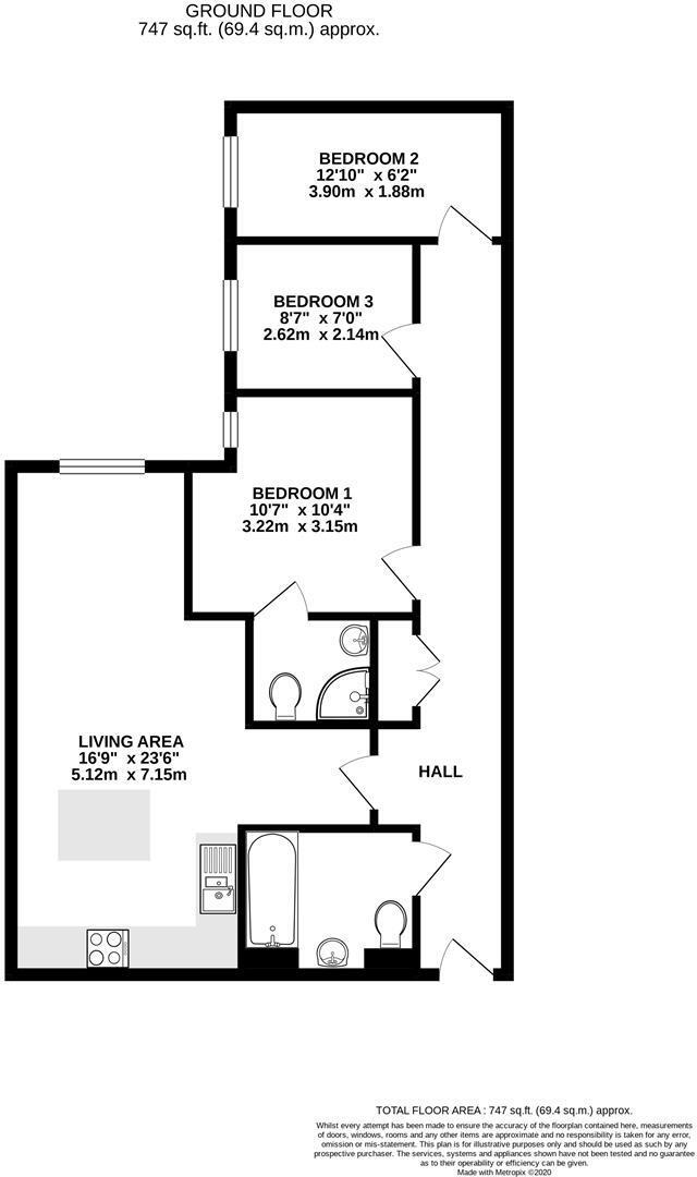
- Modern three-bedroom apartment with an open-plan layout
- Two bathrooms, including an en-suite in the main bedroom
- Secure underground parking and access to communal gardens and roof terrace
- 747 sq ft of well-proportioned living space
- Chain-free sale for quick purchasing
**Concerns:**
- High service charge of £4,100 per annum
- Moderate council tax; potential for higher living costs in an urban setting
- Area classified with high crime rates, which buyers should consider
This contemporary three-bedroom apartment is a fantastic opportunity for first-time buyers or investors seeking growth potential. Located just a short walk from West Drayton Station, this bright and airy space spans 747 sq ft and features a generous open-plan living area, perfect for entertaining or family life. Notable amenities include two bathrooms, secure underground parking, and access to tranquil communal gardens and a roof terrace, making it an ideal home base in an urban setting.
The apartment is well-equipped with a modern kitchen and high-quality finishes, providing a comfortable living environment with ample storage solutions. While the local area offers excellent transport links to central London—making daily commutes a breeze—potential buyers should weigh the higher service charge and crime rates. However, with 115 years remaining on the lease and a chain-free sale, this property presents a promising investment or a wonderful family residence in a vibrant community. Don’t miss out on the chance to make this urban retreat your new home!
2 bedroom apartment for sale in 191 Station Road, West Drayton, UB7 — £289,000 • 2 bed • 2 bath • 685 ft²
2 bedroom apartment for sale in Garnet Place, West Drayton, UB7 — £385,000 • 2 bed • 2 bath • 756 ft²
3 bedroom apartment for sale in Constabulary Close, West Drayton, UB7 — £425,000 • 3 bed • 2 bath • 800 ft²
2 bedroom apartment for sale in Pennyroyal Drive, West Drayton, UB7 — £355,000 • 2 bed • 2 bath • 735 ft²
2 bedroom apartment for sale in Fitzroy Court, West Drayton, UB7 — £365,000 • 2 bed • 2 bath • 701 ft²
2 bedroom apartment for sale in Wintergreen Boulevard, West Drayton, UB7 — £350,000 • 2 bed • 2 bath • 714 ft²


















































