New three-bedroom detached home with large plot
West-facing garden with paved patio and French doors
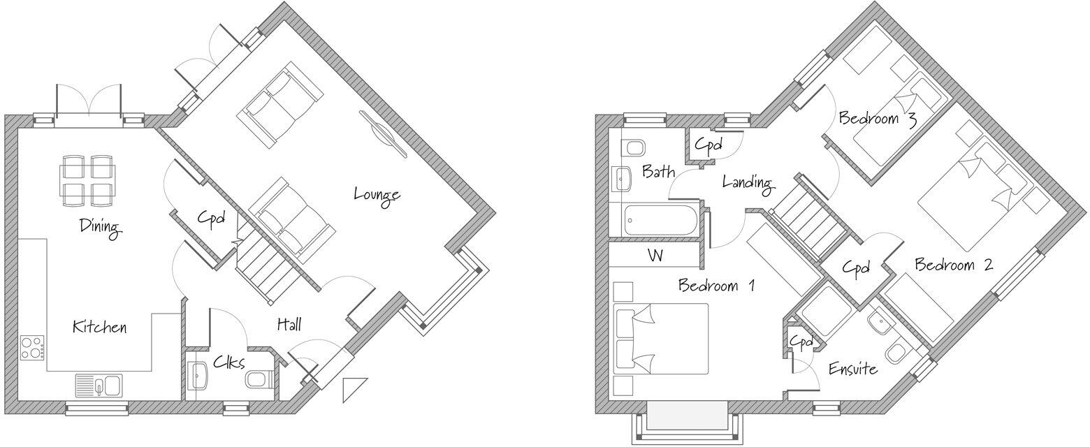
Generous master bedroom with built-in wardrobe and en-suite
Open-plan kitchen/diner with built-in stainless-steel appliances
Single garage and sizeable driveway for multiple vehicles
10-year NHBC warranty plus 2-year builder warranty included
Service charge payable to Management Company (amount available on request)
Average broadband and mobile signal; council tax band not specified
A newly built, three-bedroom detached home on a very large plot in the village of Sibsey, suited to modern family life. The ground floor offers a bay-fronted lounge and a bright open-plan kitchen/diner with French doors that open onto a west-facing garden — excellent for afternoon sun and outdoor family time. The fitted kitchen includes built-in stainless-steel appliances and a practical utility/cloakroom arrangement.
Upstairs provides a generous master bedroom with built-in wardrobe and a large en-suite, plus two further bedrooms and a family bathroom. The third bedroom is the smallest of the three and will suit a single occupant, home office or nursery. The property includes a single garage and a large driveway for multiple cars.
Practical advantages include a 10-year NHBC warranty, a 2-year developer warranty, insulated construction and energy-efficient fittings. The home sits in an established village setting near local primary schools rated Good, low crime levels and easy countryside access, making it a relaxed location for families wanting village life.
Buyers should note there is a Management Company that maintains communal areas and a service charge applies; specific costs are available on request. Broadband and mobile signal are average and council tax band is not specified. Some finish choices and specifications may vary by plot, so confirm fitted items before exchange.
3 bedroom detached house for sale in Main Road,
Sibsey,
PE22 0TW, PE22 — £299,950 • 3 bed • 2 bath • 1159 ft²
3 bedroom detached house for sale in Main Road,
Sibsey,
PE22 0TW, PE22 — £299,950 • 3 bed • 2 bath • 968 ft²
3 bedroom detached house for sale in Main Road,
Sibsey,
PE22 0TW, PE22 — £289,950 • 3 bed • 1 bath • 985 ft²
2 bedroom end of terrace house for sale in Main Road,
Sibsey,
PE22 0TW, PE22 — £169,950 • 2 bed • 1 bath • 628 ft²
3 bedroom detached house for sale in Main Road,
Sibsey,
PE22 0TW, PE22 — £304,950 • 3 bed • 2 bath • 986 ft²
2 bedroom terraced house for sale in Main Road,
Sibsey,
PE22 0TW, PE22 — £167,950 • 2 bed • 1 bath • 628 ft²


































































































































