**Standout Features:**
- **Location**: Exclusive private gated development in the idyllic hamlet of Conyer
- **Views**: Stunning vistas of Kentish countryside and Conyer Creek
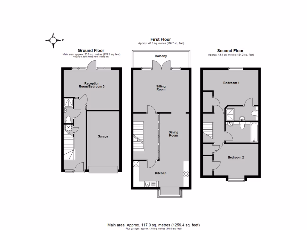
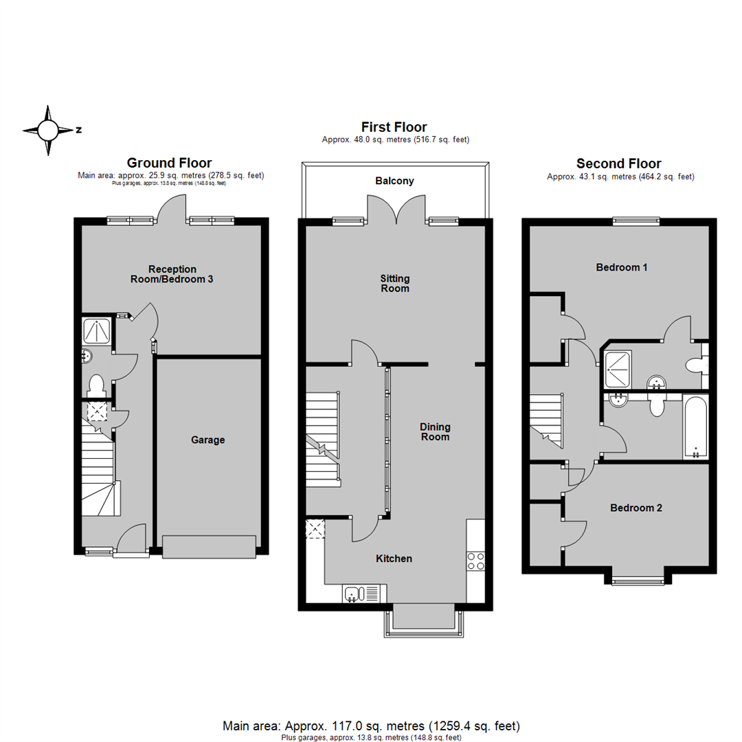
- **Spacious Living**: Generously sized townhouse with open-plan design
- **Bedrooms**: 3 double bedrooms, 3 bathrooms, ideal for families or guests
- **Utility**: Garage and off-street parking, with secure electronic entry
- **No Chain**: Ready for immediate move-in
**Potential Concerns:**
- **Maintenance Fees**: Annual service charge of £3,000
- **Heating**: Electric room heaters; may require updates for efficiency
- **Average Crime Rate**: Standard safety considerations in the area
**Summary:**
Discover a waterside gem in this modern townhouse, nestled within a secure gated community in picturesque Conyer. Offering breathtaking views of the countryside and Conyer Creek, this property is perfect for families or those seeking a tranquil retreat. Spanning three floors, it features an expansive open-plan kitchen and sitting room with a wood-burning stove, flowing onto a large decked balcony—ideal for summertime gatherings. The home boasts three generously sized double bedrooms, including a principal suite with en-suite bathroom, plus an additional shower room on the ground floor.
This property provides not only comfort but modern living conveniences, including a garage and off-street parking, all while being chain-free for effortless transitioning. With access to the nearby Swale Marina for water-based activities and close proximity to amenities in Teynham, this townhouse is a perfect blend of serene rural life and modern convenience. Don't miss out on this exclusive opportunity to own a piece of Kentish charm; properties like this are rare to find and won't last long on the market!
2 bedroom apartment for sale in North Quay, Conyer, ME9 — £399,950 • 2 bed • 2 bath • 1292 ft²
4 bedroom town house for sale in Conyer Quay, Conyer, Sittingbourne, Kent, ME9 — £465,000 • 4 bed • 2 bath • 1006 ft²
3 bedroom semi-detached house for sale in Conyer Quay, Sittingbourne, ME9 — £375,000 • 3 bed • 2 bath • 1233 ft²
4 bedroom end of terrace house for sale in Upper Brents, Faversham, ME13 — £825,000 • 4 bed • 3 bath • 2316 ft²
3 bedroom terraced house for sale in Belvedere Road, Faversham, ME13 — £475,000 • 3 bed • 3 bath • 1083 ft²
2 bedroom house for sale in Goldings Wharf, Faversham, Kent, ME13 — £485,000 • 2 bed • 2 bath • 1047 ft²






































































































