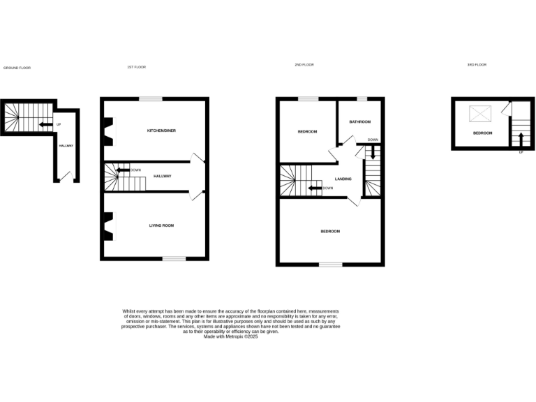
Three-storey character home with strong location and refurbishment potential.
Three bedrooms across four storeys, about 1,034 sq ft
Close to Dovercourt station, town centre and beach
Leasehold tenure; lease details not provided
Heating via electric room heaters — no central heating
Solid brick walls; insulation likely absent, upgrade recommended
Double glazing present; install date unknown
On-street parking only, unallocated
Local area: high crime rate and very deprived — consider security
Set across four floors, this three-bedroom maisonette offers a compact coastal home close to Harwich town centre, Dovercourt station and the beach. High ceilings and period windows give character, while a generous kitchen/diner and living room provide practical everyday space. The property measures about 1,034 sq ft and suits buyers wanting location and potential rather than a turnkey finish.
Important practical points: the tenure is leasehold (details unavailable), heating is by electric room heaters, and the building dates from c.1930–49 with assumed solid brick walls and no known insulation. Double glazing is present but installation date is unknown. These factors mean running costs may be higher than modern equivalents and improvements such as insulation, central heating and modernisation will likely be needed.
This maisonette will suit a first-time buyer or investor looking for a well-located project with rental potential near transport links and the seafront. Note the area records higher-than-average crime and very high local deprivation; buyers should consider security and ongoing maintenance budgets. On-street parking is available but unallocated.
Viewings are recommended to assess layout across multiple floors and scope for refurbishment. Lease information and service/ground rent details should be obtained before offer.
2 bedroom maisonette for sale in Mill Lane, Harwich, CO12 — £125,000 • 2 bed • 1 bath • 503 ft²
2 bedroom maisonette for sale in Albemarle House, Albemarle Street, Harwich, CO12 — £152,500 • 2 bed • 1 bath
2 bedroom maisonette for sale in High Street, Harwich, CO12 — £80,000 • 2 bed • 1 bath • 679 ft²
2 bedroom flat for sale in Main Road, Harwich, CO12 — £155,000 • 2 bed • 1 bath • 422 ft²
3 bedroom maisonette for sale in High Street, Harwich, CO12 — £160,000 • 3 bed • 1 bath • 958 ft²
2 bedroom flat for sale in Main Road, Harwich, CO12 — £160,000 • 2 bed • 1 bath • 496 ft²














































