Chain-free two-bed bungalow with garage, gardens and renovation potential near Horsforth station.
- Chain free two-bedroom semi-detached bungalow
- Wrap-around private garden and Indian stone patio
- Detached single garage plus rear off-street parking
- Spacious lounge with sliding doors to conservatory
- Needs full modernisation and cosmetic renovation throughout
- Double glazing present; install date unknown
- Higher local crime and area deprivation noted
- Convenient for Horsforth station and Good-rated schools
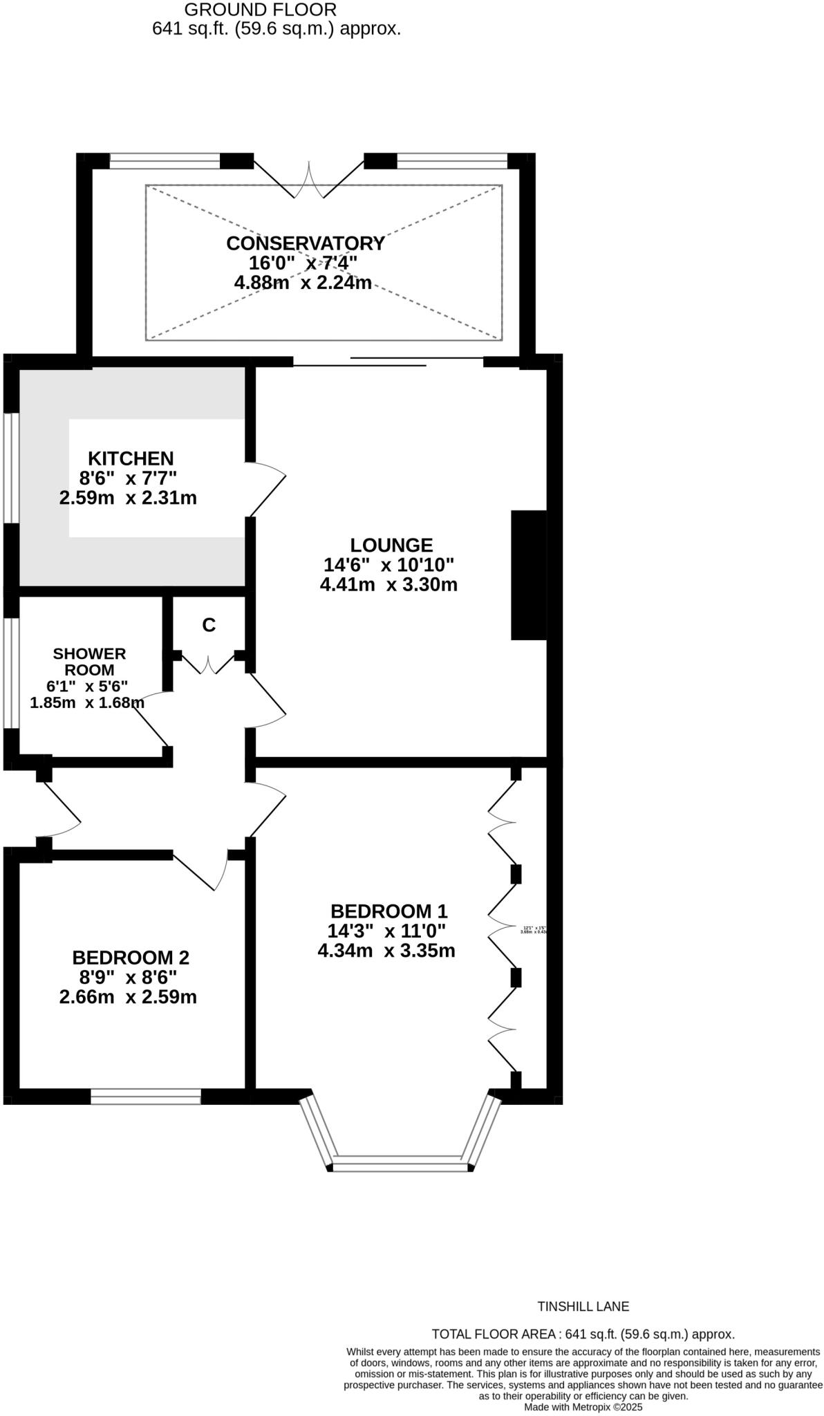
A semi‑detached two-bedroom bungalow on Tinshill Lane offering an accessible, single‑storey home with good outdoor space. Offered chain free, it sits on a decent plot with private gardens wrapping around three sides, a detached rear garage and off‑street parking — practical for downsizers or first‑time buyers wanting ground‑floor living.
The interior includes a spacious lounge with sliding doors into a versatile second reception/conservatory, a fitted kitchen and a contemporary shower room. The property dates from the late 1960s/1970s, has double glazing (install date unknown) and gas central heating via a boiler and radiators.
There is clear potential to create a bespoke, modern home but the bungalow needs renovation throughout. Buyers should factor in updating works and cosmetic refurbishment to bring fixtures, finishes and services fully up to current tastes and standards.
Location is convenient for local amenities, schools rated Good, Horsforth train station and main road links, though the immediate area records higher crime and relative deprivation; buyers should consider security and local services when assessing suitability. Council tax is described as affordable.
2 bedroom detached bungalow for sale in Cookridge Lane, Cookridge, Leeds, LS16 — £415,000 • 2 bed • 1 bath • 941 ft²
2 bedroom bungalow for sale in Tinshill Lane, Leeds, West Yorkshire, LS16 — £230,000 • 2 bed • 1 bath • 637 ft²
2 bedroom bungalow for sale in Wrenbury Avenue, Cookridge, Leeds, LS16 — £260,000 • 2 bed • 1 bath • 833 ft²
2 bedroom bungalow for sale in Tinshill Road, Cookridge, Leeds, LS16 — £350,000 • 2 bed • 1 bath • 872 ft²
2 bedroom bungalow for sale in Newlay Wood Crescent, Horsforth, Leeds, LS18 — £265,000 • 2 bed • 1 bath • 676 ft²
2 bedroom semi-detached bungalow for sale in Kirkwood View, Leeds, LS16 — £260,000 • 2 bed • 1 bath • 614 ft²










































































