Central Brighton language school let with landmark views and redevelopment potential.
City-centre freehold overlooking Royal Pavilion and Old Steine Gardens
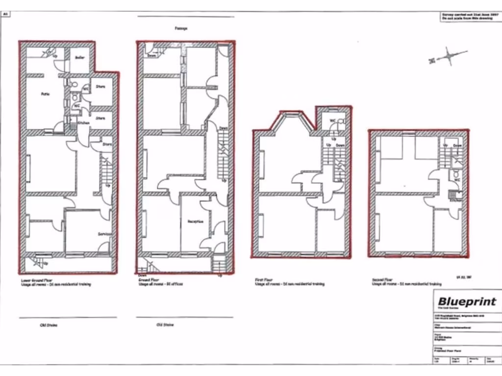
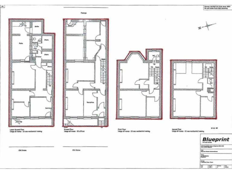
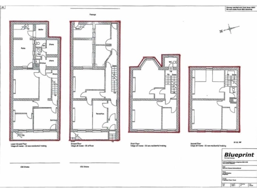
A rare city-centre freehold in Brighton’s historic Old Steine, offered with an existing educational tenant. The building is Grade II listed and enjoys direct views over the Royal Pavilion and Old Steine Gardens, with the seafront, Palace Pier and The Lanes all within 250 metres. The property extends to approximately 2,671 sq ft across four floors, with a lower-ground courtyard and separate external access.
The premises are let in their entirety to Brighton Language College Ltd on a full repairing and insuring lease dated 2 July 2018, expiring 1 July 2028, with a passing rent of £36,500 per annum. A rent review from July 2023 has not been implemented. The tenant and educational use currently sit within Use Class F1 under the UCO 2020, offering clarity for continued institutional occupation.
Key positives include the central landmark location, strong footfall and clear future potential for alternative uses subject to consent. Important investor cautions: only three years remain on the lease which may prevent mortgage financing and reduce the buyer pool; the building’s Grade II listing restricts alterations and may increase repair costs. The immediate area records higher crime rates and notable deprivation, which may affect some occupier profiles.
This lot suits a buyer seeking a compact city-centre income in a landmark location, an owner-occupier prepared to reconfigure permitted uses long-term, or a cash buyer comfortable with listed-building responsibilities and a short lease term.
4 bedroom house for sale in New Road, Brighton, BN1 — £900,000 • 4 bed • 2 bath • 1712 ft²
Commercial property for sale in 64 Brunswick Street West, Brighton, BN3 1EL, BN3 — £1,400,000 • 1 bed • 1 bath • 5640 ft²
Mixed use property for sale in 26 Old Steine, Brighton, East Sussex, BN1 1EL, BN1 — £1,750,000 • 1 bed • 1 bath • 3217 ft²
Commercial property for sale in Duke Street, Brighton, BN1 — £1,195,000 • 7 bed • 6 bath • 2000 ft²
Office for sale in 5 Marlborough Place, Brighton, BN1 1UB, BN1 — £795,000 • 1 bed • 1 bath • 4059 ft²
Commercial property for sale in 15a Madeira Place, Brighton, East Sussex, BN2 1TN, BN2 — £125,000 • 1 bed • 1 bath • 13778 ft²


































