Spacious three-bedroom period home with large gardens and parking.
Cotswold stone detached home with panoramic elevated views
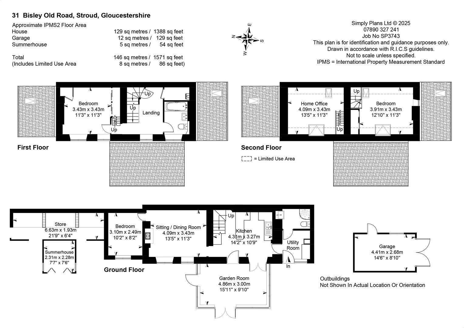
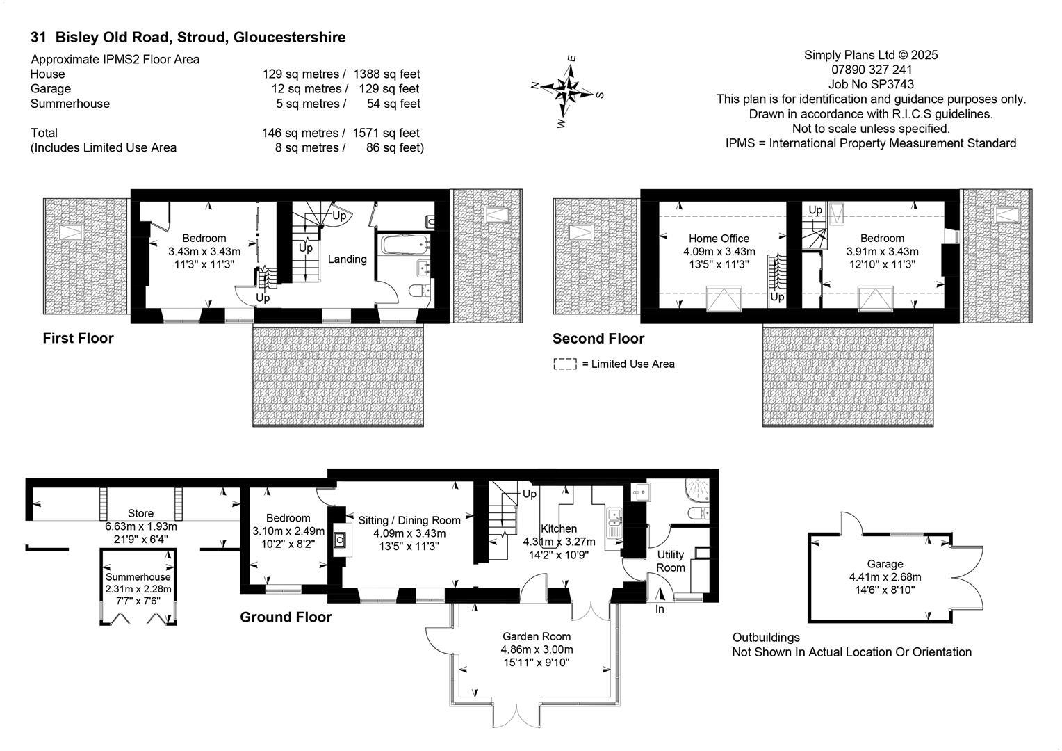
Tucked away above Stroud, this Cotswold stone detached house offers flexible family living across multiple levels with generous gardens and extensive off-street parking. The large conservatory/garden room with underfloor heating becomes a year-round living space, while a cosy sitting room with a wood-burning stove provides character and warmth.
The accommodation includes three bedrooms plus a useful attic room (accessed by a paddle staircase) and two bathrooms, giving scope for home office or guest space. Solar panels reduce running costs, and both the garage and summer house have electricity connected — practical extras for modern family life.
The mature, level gardens feature paved seating areas and a Mediterranean-style terrace beneath mature wisteria, ideal for outdoor entertaining and children’s play. The property is chain free and freehold, set on a large plot yet within easy reach of Stroud town centre and highly regarded secondary schools.
Notable negatives are factual: the house dates from before 1900 and the stone walls are assumed uninsulated, which may require upgrading. The attic room is reached by a paddle ladder and some internal layouts are unconventional, so buyers should consider accessibility and potential refurbishment costs. The local area records higher crime levels, which some buyers will want to investigate further.
4 bedroom end of terrace house for sale in Bisley Old Road, Stroud, GL5 — £565,000 • 4 bed • 2 bath • 1655 ft²
4 bedroom detached house for sale in Summer Street, Stroud, GL5 — £495,000 • 4 bed • 2 bath • 1755 ft²
3 bedroom detached house for sale in Folly Lane, Stroud, GL5 — £400,000 • 3 bed • 2 bath • 1198 ft²
3 bedroom semi-detached house for sale in Belle Vue Road, Stroud, Gloucestershire, GL5 — £316,000 • 3 bed • 1 bath • 854 ft²
3 bedroom link detached house for sale in Halfway Pitch, Pitchcombe, Stroud, Gloucestershire, GL6 — £475,000 • 3 bed • 1 bath • 1401 ft²
3 bedroom detached house for sale in Langtoft Road, Stroud, Gloucestershire, GL5 — £440,000 • 3 bed • 2 bath • 1499 ft²










































































































