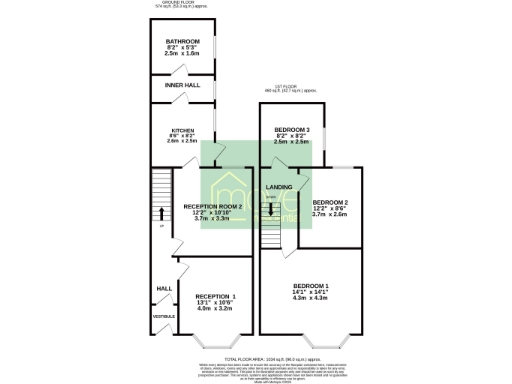
**Standout Features:**
- Three spacious bedrooms with plenty of natural light
- Bay-fronted lounge and second reception room
- Fitted kitchen and convenient downstairs bathroom
- Low-maintenance enclosed rear yard
- Freehold tenure with low council tax
- Prime location in Kensington, Liverpool
**Notable Concerns:**
- Property needs renovation
- Crime rate above average
This charming three-bedroom Edwardian terrace home presents an exciting opportunity for first-time buyers and investors alike in the desirable Kensington area of Liverpool. Offering an inviting entrance hall, two bright and generous reception rooms, and a sizable fitted kitchen, this property invites you to create your ideal living space. The three substantial bedrooms guarantee comfort, making it a fantastic choice for families. An enclosed rear yard ensures a low-maintenance outdoor space for relaxation or play.
While the property requires renovation, it’s a versatile canvas for those looking to make their mark, combining potential with affordability at an attractive price of £170,000. Positioned in a vibrant neighborhood with excellent amenities and reputable schools nearby, this property is poised for appreciation, making it an ideal investment. With its unique character and promise, don’t miss the chance to transform this home into your dream living space. Act swiftly—opportunities like this won't last long!
3 bedroom terraced house for sale in Romer Road, Liverpool, Merseyside, L6 — £140,000 • 3 bed • 1 bath • 999 ft²
2 bedroom terraced house for sale in Odsey Street, Merseyside, LIVERPOOL, L7 — £120,000 • 2 bed • 1 bath • 847 ft²
2 bedroom terraced house for sale in Mansell Road, Kensington, Liverpool, L6 — £120,000 • 2 bed • 1 bath • 870 ft²
3 bedroom terraced house for sale in Mansell Road, Liverpool, Merseyside, L6 — £140,000 • 3 bed • 1 bath • 924 ft²
3 bedroom terraced house for sale in Ridley Road, Kensington, Liverpool, L6 — £125,000 • 3 bed • 1 bath • 857 ft²
4 bedroom semi-detached house for sale in Sheil Road, Liverpool, Merseyside, L6 — £175,000 • 4 bed • 1 bath • 1106 ft²














































