Prominent corner premises with flexible E‑class use and immediate cashflow potential.
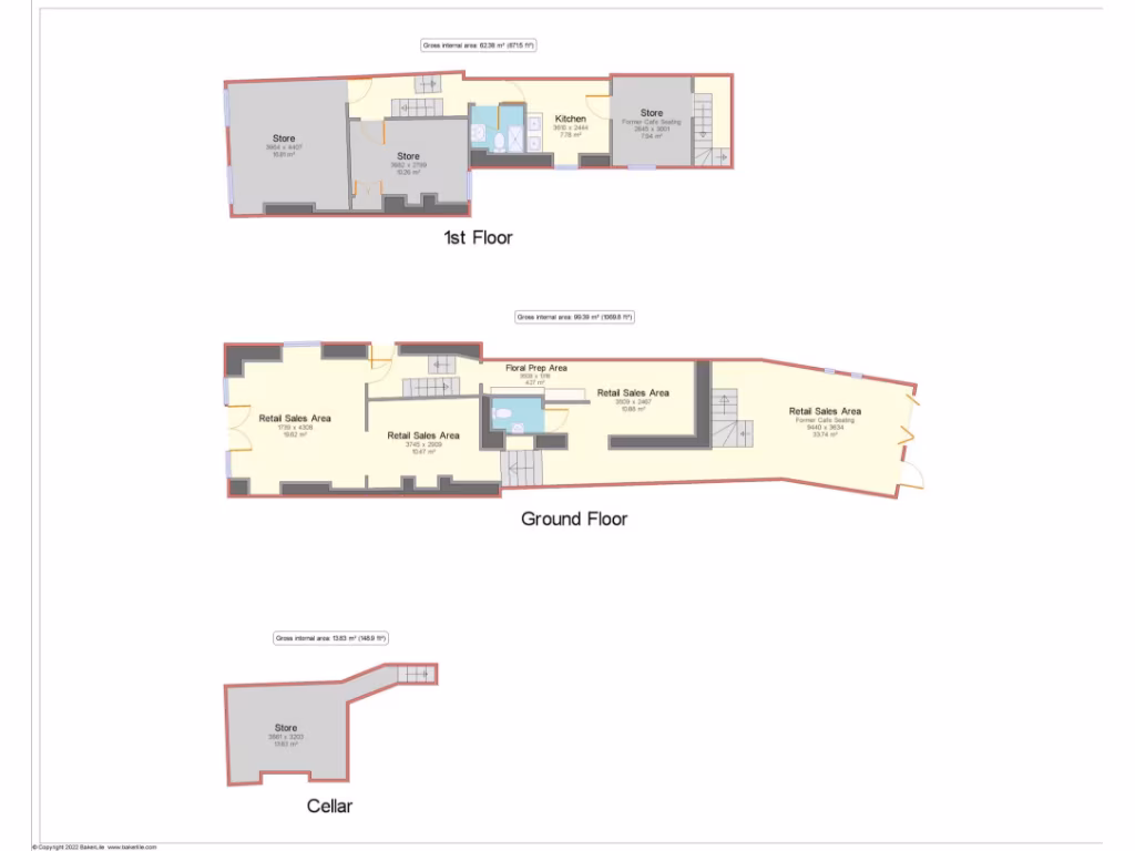
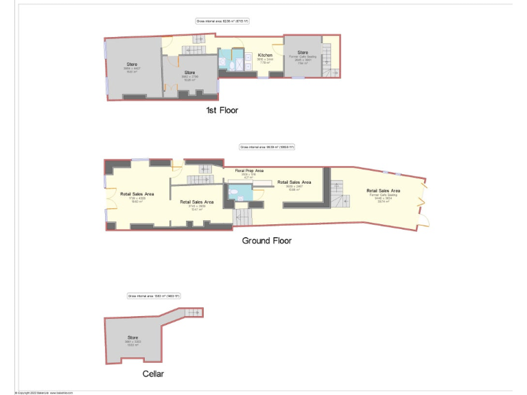
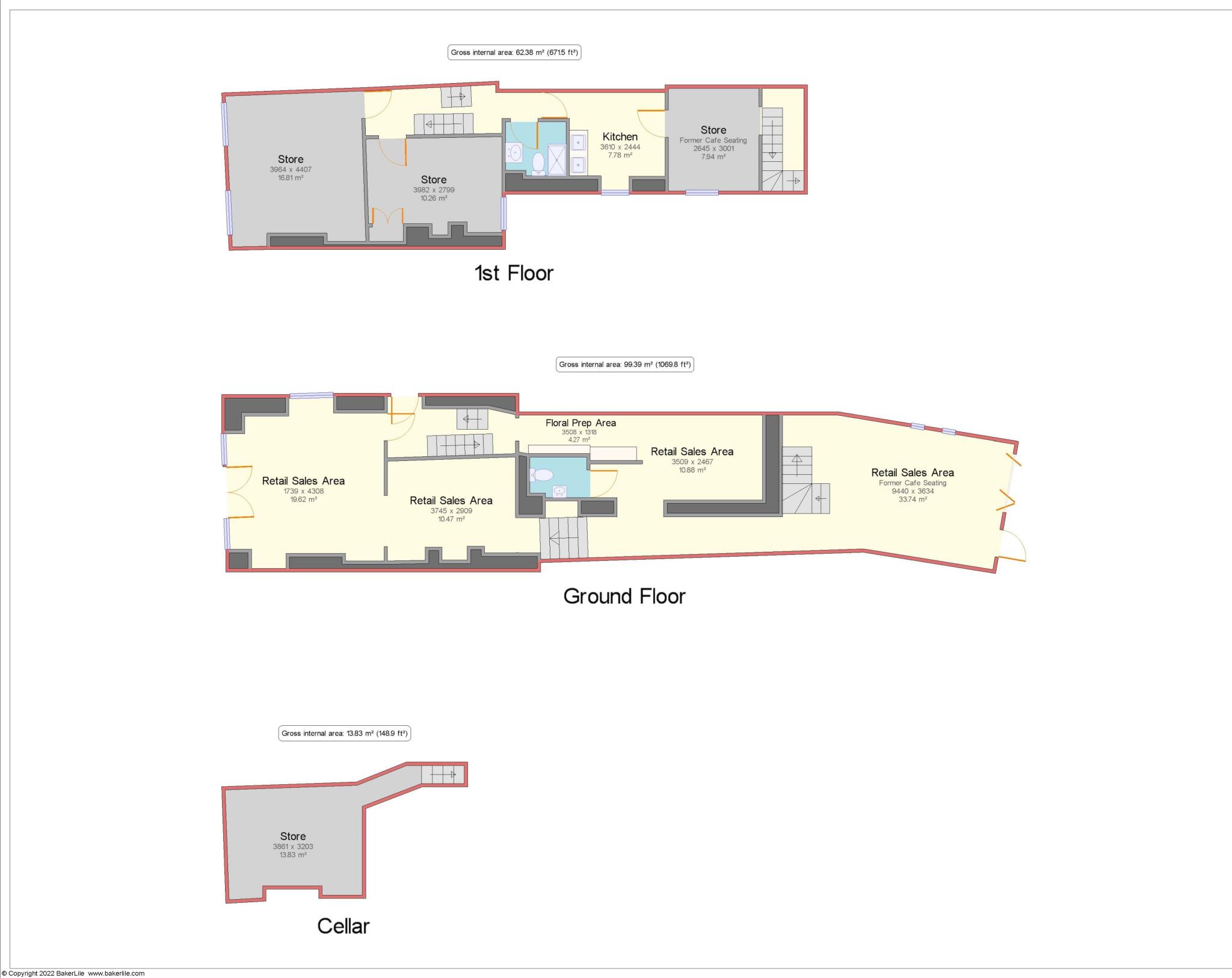
Freehold corner unit on Llandaff High Street with wide glazed frontage|Circa 1,890 sq ft (176 sqm) across three floors|E use class — retail, professional services or café/restaurant permitted|Established business: turnover ~£340k, adjusted net profit ~£47k|Council car park next door; good pedestrian footfall|First floor previously a one‑bed flat; requires work to return residential|No main heating system present; electric heaters assumed|Located in an area with high local affluence but wider area deprivation
This freehold high‑street property occupies a prominent corner position in Llandaff, Cardiff, with an established trading history of over 35 years. The building offers flexible E‑class use across three levels — a spacious ground‑floor retail area with wide glazed frontage, ancillary basement storage and a first‑floor former one‑bed apartment currently used for storage and staff facilities. A council car park sits next door, providing useful customer parking. Trading accounts (year end 3 July 2024) show turnover circa £340,000, 58% gross profit and adjusted net profit of about £47,000, presenting immediate trading visibility for an owner‑operator or investor.
The property is largely traditional Victorian/Georgian masonry with character features to the façade and internal display windows that suit boutique retail, specialist services or a café (subject to fit‑out and consents). Fixtures and fittings are included in the sale subject to confirmation. The E classification gives flexibility to operate retail, professional services or a restaurant/café, and the site benefits from strong pedestrian footfall close to Llandaff Cathedral and Cardiff Met.
Buyers should note a number of material considerations: the building is historic (pre‑1900) and the main heating system is not present (electric heaters assumed), so investment in mechanical services is likely. The first floor has been converted to storage from a residential layout and would require work to return to a residential unit. The property sits in an area described as very deprived despite a generally affluent immediate catchment; onsite external space is limited to a small rear courtyard/side access rather than a full private garden. Internal condition, exact measured areas and service details should be verified by inspection and survey prior to purchase.
This opportunity suits buyers seeking a central freehold retail holding with trading history and redevelopment potential — whether an investor seeking rental or a hands‑on operator wanting an established business and flexible premises in a sought‑after town centre location.
2 bedroom mixed use property for sale in 52 & 52A Crwys Road, Cardiff, CF24 4NN, CF24 — £375,000 • 2 bed • 1 bath • 2155 ft²
Restaurant for sale in Whitchurch Road, Cardiff, CF14 — £385,000 • 1 bed • 1 bath
High street retail property for sale in Lloyds Bank, 1-4 Wellfield Road, Cardiff CF24 3PJ, CF24 — £775,000 • 1 bed • 1 bath • 3322 ft²
4 bedroom end of terrace house for sale in Brynteg House, High Street, Llandaff, Cardiff, CF5 — £855,000 • 4 bed • 2 bath • 3244 ft²
Office for sale in Station Road, Llanishen, CF14 — £450,000 • 1 bed • 1 bath • 1230 ft²
High street retail property for sale in 28 High Street, Cardiff CF10 1PU, CF10 — £875,000 • 1 bed • 1 bath • 3727 ft²






























































































































































