**Standout Features:**
- Newly renovated three-bedroom ground floor flat
- Private entrance and access to communal gardens
- Immaculate condition with modern kitchen and bathroom
- Bright and spacious living areas
- Chain-free with immediate availability
- Located in a sought-after West End community
**Potential Concerns:**
- Average size for urban settings
- Solid brick walls may lack insulation
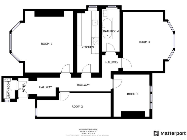
Discover your perfect home in this beautifully refurbished three-bedroom flat located in the heart of Folkestone's charming West End. Boasting a private entrance and direct access to communal gardens, this immaculate ground floor residence is designed for comfort and style, featuring a modern kitchen complete with integrated hob and oven, as well as a high-quality bathroom. The spacious living area offers versatility for family life or remote work, catering well to modern needs.
Situated in a vibrant community near Trinity Gardens, you'll enjoy easy access to local amenities, schools, and public transport. While the property is in great condition and chain-free, it does present an average size for urban settings, with solid brick walls potentially lacking insulation. Priced at £240,000, this home is an outstanding opportunity for families or first-time buyers looking for a turn-key property with immediate availability. Don’t miss out on this rare find—schedule a viewing today and envision your new beginning in this inviting space!
3 bedroom flat for sale in Trinity Gardens, Folkestone, Kent, CT20 — £240,000 • 3 bed • 1 bath • 948 ft²
3 bedroom flat for sale in Bouverie Road West, Folkestone, Kent, CT20 — £220,000 • 3 bed • 1 bath • 963 ft²
2 bedroom flat for sale in Earls Avenue, Folkestone, Kent, CT20 — £250,000 • 2 bed • 2 bath • 947 ft²
2 bedroom flat for sale in Bouverie Road West, Folkestone, Kent, CT20 — £275,000 • 2 bed • 1 bath • 945 ft²
3 bedroom flat for sale in Sandgate Road, Folkestone, Kent, CT20 — £350,000 • 3 bed • 2 bath • 1177 ft²
2 bedroom flat for sale in Augusta Gardens, Folkestone, CT20 — £225,000 • 2 bed • 1 bath • 1100 ft²


















































