**Standout Features:**
- Modern, detached wooden lodge located in Devon Hills Holiday Park
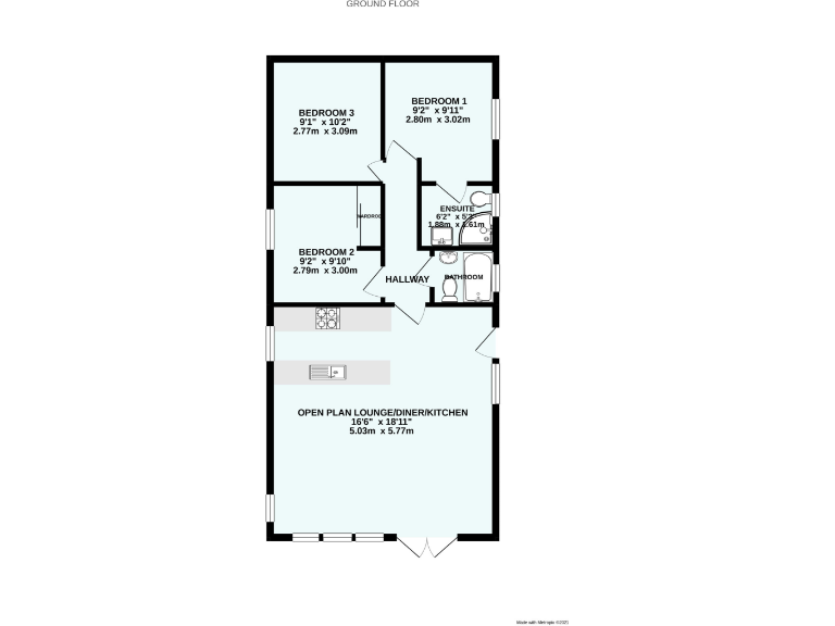
- Spacious open-plan living area with high ceilings and large windows
- Three comfortable bedrooms and two bathrooms
- Contemporary kitchen with a central island
- Outdoor space includes a sizable wrap-around deck
- Close proximity to park amenities: gym, swimming pool, sauna, and tennis courts
- Scenic views over surrounding fields
**Potential Concerns:**
- Leasehold tenure may impact long-term ownership
- Property lacks defined glazing type; check for energy efficiency
- Broadband speeds noted as slow, which may be a consideration for remote workers
- Current area classification indicates socio-economic challenges (deprived region)
---
Discover this delightful three-bedroom wooden lodge nestled in the scenic Devon Hills Holiday Park. Perfect for investors or families seeking a unique holiday retreat, the property boasts an open-plan living room filled with natural light, high ceilings, and elegant finishes, enhancing its already cozy atmosphere. The contemporary kitchen is designed for gatherings, featuring an inviting island. Step outside to enjoy the large deck that overlooks lush fields, providing a tranquil outdoor space.
Conveniently located close to park amenities, including a gym, swimming pool, and tennis courts, your active lifestyle is at your fingertips. While the property may have limitations such as leasehold status and slower broadband, its charm and setting offer an inviting escape in a peaceful hamlet. This lodge not only presents an appealing holiday option but also holds potential for personalized renovations to make it your ideal getaway. Don’t miss this opportunity to invest in a lifestyle of relaxation and outdoor enjoyment—properties like this won’t last long!
4 bedroom lodge for sale in Devon Hills Holiday Village , Totnes Road, Paignton, Devon, TQ4 7PY, TQ4 — £190,000 • 4 bed • 2 bath • 1100 ft²
2 bedroom lodge for sale in Totnes Road, TQ4 7PW, TQ4 — £110,000 • 2 bed • 2 bath
2 bedroom lodge for sale in South Hams 10, Totnes Road, TQ4 7PW, TQ4 — £119,995 • 2 bed • 2 bath
4 bedroom bungalow for sale in Devon Hills Holiday Village, Totnes Road, Paignton, Devon, TQ4 — £190,000 • 4 bed • 2 bath • 1022 ft²
Lodge for sale in Four Bedroom Wessex Classic (20ftx 50ft) 2022, Devon Hills Holiday Park, Totnes Road, Paignton, Devon, TQ4 7PW, TQ4 — £220,000 • 1 bed • 1 bath
2 bedroom park home for sale in Waterside Holiday Park, Dartmouth Road, Paignton, TQ4 — £35,000 • 2 bed • 1 bath • 323 ft²


























































