Driveway parking, garden and great transport links for growing families.
- Three bedrooms with family bathroom
- Conservatory adds flexible extra living space
- Driveway parking for one vehicle
- Small plot with pleasant rear garden
- Requires full modernisation throughout
- Dated kitchen and mid-20th-century fixtures
- Area shows deprivation; crime above average
- Close to schools, shops, town centre, station
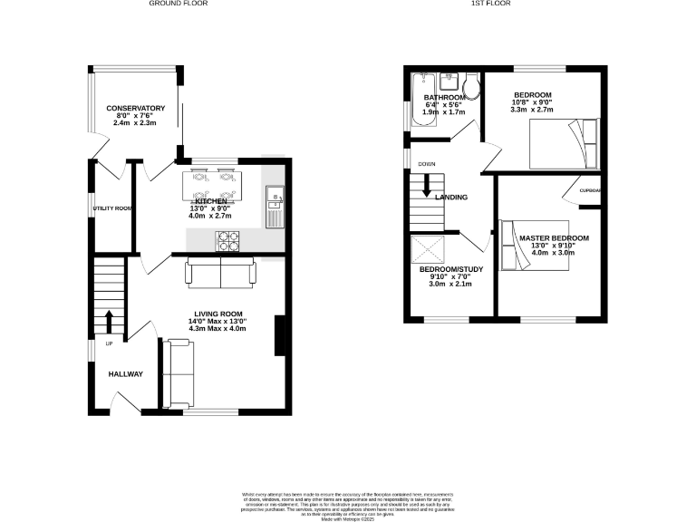
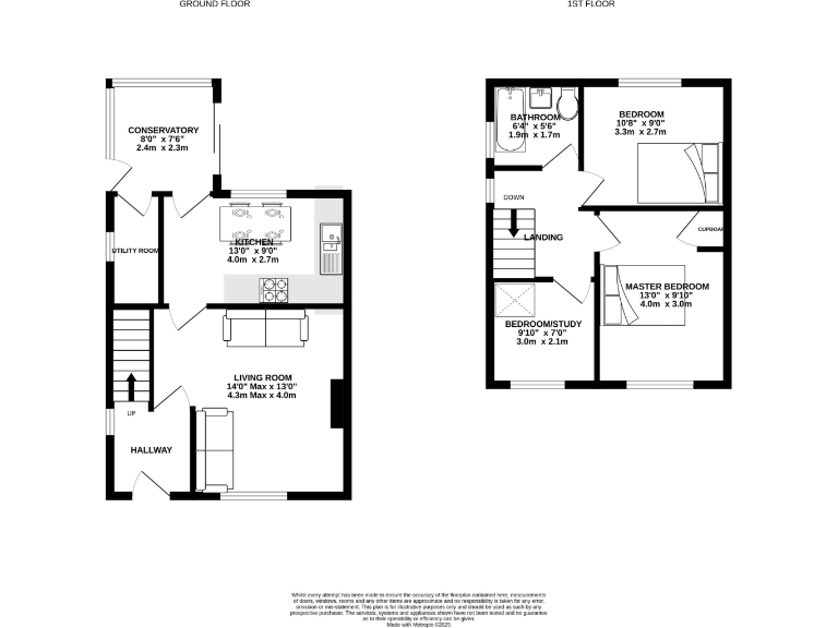
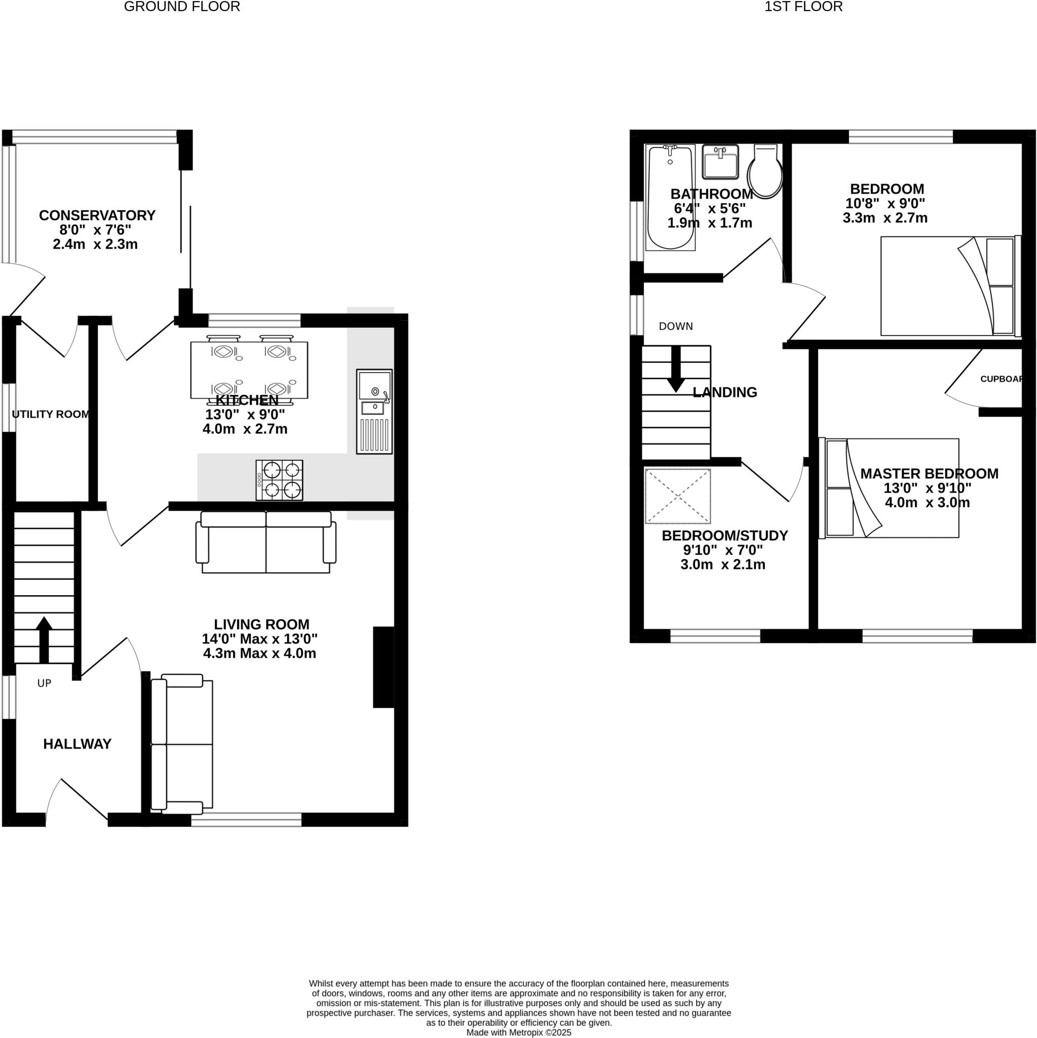
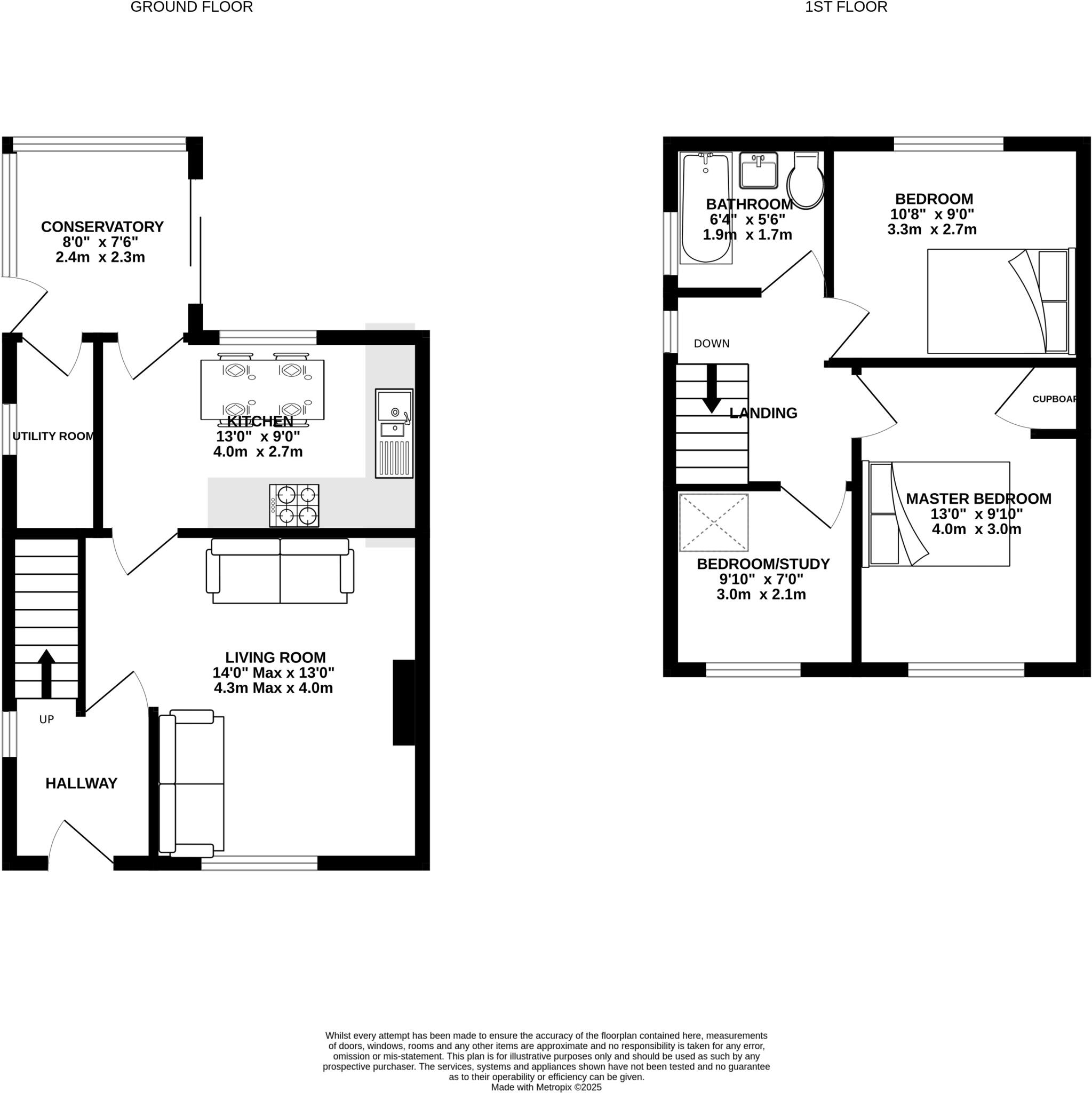
A practical three-bedroom semi-detached home offering clear potential to modernise and add value. The ground floor features a bright front living room, a kitchen/breakfast room with garden outlook and a conservatory that provides useful extra living space. A handy utility/storage area increases everyday practicality while the driveway offers off-street parking for one car.
Upstairs there are three well-proportioned bedrooms and a family bathroom. The property sits on a small plot with a pleasant rear garden suitable for outdoor living and entertaining. It benefits from double glazing, mains gas central heating and good digital connectivity.
The house requires renovation throughout — the kitchen is dated and interior finishes are mid-20th century; updating will be needed to bring the home to modern standards. The wider area shows signs of deprivation and recorded crime is above average, which buyers should factor into their decision. Proximity to good primary and secondary schools, shops, the town centre and Haywards Heath mainline station is a strong local advantage for families and investors alike.
This property is offered with a guide price of £350,000 to £380,000 and freehold tenure. It suits buyers seeking a renovation project with potential to increase value, or a family wanting a conveniently located home to remodel to their taste.
3 bedroom house for sale in Western Road, Haywards Heath, RH16 — £375,000 • 3 bed • 1 bath • 1174 ft²
3 bedroom semi-detached house for sale in Southdown Close, Haywards Heath, RH16 — £375,000 • 3 bed • 1 bath • 946 ft²
3 bedroom semi-detached house for sale in Bentswood Crescent, Haywards Heath, RH16 — £380,000 • 3 bed • 1 bath • 851 ft²
3 bedroom house for sale in Holly Road, Haywards Heath, RH16 — £540,000 • 3 bed • 1 bath • 947 ft²
3 bedroom house for sale in French Gardens, Lindfield, RH16 — £460,000 • 3 bed • 2 bath • 469 ft²
4 bedroom detached house for sale in Oakwood Road, Haywards Heath, RH16 — £900,000 • 4 bed • 2 bath • 1796 ft²










































