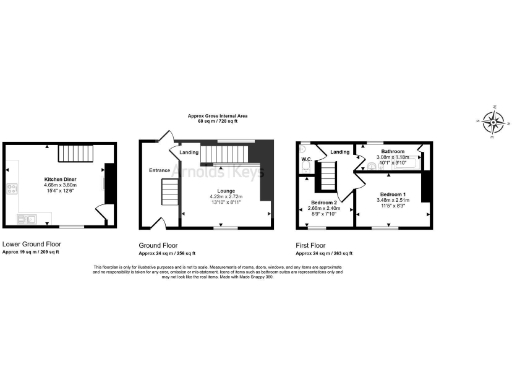
**Standout Features:**
- End terrace cottage with brick and flint exterior
- Three floors of accommodation with two cozy bedrooms
- Wood burning stove and gas central heating for added comfort
- Enclosed courtyard perfect for outdoor relaxation
- Short walk to town centre and beach
- Chain-free and freehold
This charming end terrace cottage presents a unique opportunity for both permanent residence and seaside holiday living. Boasting a delightful brick and flint construction, the property offers three floors of comfortable accommodation, including two inviting bedrooms that feature solid wood flooring and cozy lighting. A standout aspect is the inviting lounge with a wood-burning stove, perfect for tranquil evenings, while the modern fitted kitchen/dining area showcases contemporary conveniences alongside the character of a feature fireplace.
The enclosed courtyard invites outdoor enjoyment and privacy, making it an ideal spot to unwind. Located mere steps from the vibrant town center and the stunning beach, this property is perfectly situated for those who appreciate coastal charm and community amenities. With gas central heating and a recently updated double glazing, the home offers efficiency and comfort.
Given the affordable price of £265,000 and its potential for both comfortable living and future renovations, this property won’t be available for long. Don't miss out on the chance to secure your own slice of seaside serenity!
2 bedroom cottage for sale in Barchams Yard, Sheringham, NR26 — £265,000 • 2 bed • 1 bath • 560 ft²
2 bedroom terraced house for sale in Barchams Yard, Sheringham, NR26 — £190,000 • 2 bed • 1 bath • 535 ft²
2 bedroom cottage for sale in Church Street, Sheringham, NR26 — £220,000 • 2 bed • 1 bath • 863 ft²
3 bedroom cottage for sale in Angel Yard, Sheringham, NR26 — £276,000 • 3 bed • 2 bath • 986 ft²
2 bedroom semi-detached house for sale in High Street new, Sheringham, NR26 — £275,000 • 2 bed • 1 bath • 816 ft²
3 bedroom semi-detached house for sale in Cromer Road, Sheringham, NR26 — £275,000 • 3 bed • 2 bath • 836 ft²






























































































