Large renovated 4-bed detached home with big garden, parking and excellent schools nearby.
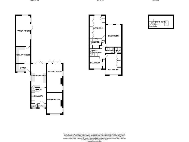
Large Victorian detached house with 4 bedrooms and 3 bathrooms
Newly renovated interior retaining period features and high ceilings
Large private rear garden with patio, greenhouse and mature planting
Driveway and glazed carport parking for 3–4 cars comfortably
Loft study with long views towards Salisbury Cathedral
Cavity walls assumed uninsulated — consider insulation upgrade
Council tax rated above average for the area
Chain free sale, scope to personalise or extend
This substantial Victorian detached house on Moberly Road offers roomy, adaptable accommodation across three floors — ideal for growing families seeking space, character and contemporary comfort. Recent renovations have refreshed the interior while retaining period features such as high ceilings, picture rails and bay-style windows. The layout includes multiple reception rooms, a large kitchen/breakfast area, home office/utility and a loft study with long views toward Salisbury Cathedral.
Outside, the wide brick-paved driveway and glazed carport provide convenient off-street parking for 3–4 cars. The private, well‑planted rear garden is a genuine feature: large, flat lawn areas, mature shrubs, a substantial patio, greenhouse and shed create a relaxed outdoor living year-round. The property is offered chain free and sits in one of Salisbury’s sought-after residential streets, with highly rated schools and Victoria Park within walking distance.
Practical points to note: the house was constructed in the 1930s and, while newly renovated, the external cavity walls are assumed to have no added insulation — upgrading wall insulation could improve energy performance. Council tax is above average for the area. The substantial accommodation and plot present further scope to personalise or extend if desired, subject to consents.
Overall this is a rare, well-presented family home that combines period character with modernised living spaces, generous parking and a large private garden — suited to families who value space, good local schools and easy access to the city centre and station.
4 bedroom detached house for sale in Moberly Road, Salisbury, Wiltshire, SP1 — £895,000 • 4 bed • 2 bath • 2679 ft²
4 bedroom detached house for sale in Moberly Road, Salisbury, SP1 — £935,000 • 4 bed • 3 bath • 2203 ft²
5 bedroom semi-detached house for sale in Castle Road, Salisbury, Wiltshire, SP1 — £595,000 • 5 bed • 3 bath • 2800 ft²
3 bedroom house for sale in Victoria Road, Salisbury, SP1 — £520,000 • 3 bed • 1 bath • 1615 ft²
4 bedroom end of terrace house for sale in Wyndham Road, Salisbury, SP1 — £550,000 • 4 bed • 2 bath • 1474 ft²
6 bedroom terraced house for sale in Manor Road, Salisbury, Wiltshire, SP1 — £995,000 • 6 bed • 5 bath • 4080 ft²


















































































