Spacious family home with vast private gardens and versatile outbuilding.
5 bedrooms and three reception rooms, flexible family accommodation
Exceptional gardens ~1/3 acre with ponds, mature trees and vegetable plot
Large workshop with three-phase electricity — ideal for hobby or small business
Bright open-plan living with rooflights, wood flooring and wood burner
Oil-fired central heating; main fuel is oil, not a community supply
Likely solid brick walls with no insulation — consider energy upgrades
Two bathrooms only for five bedrooms; possible reconfiguration needed
Off-street parking for 4–5 cars; secluded by hedges and mature planting
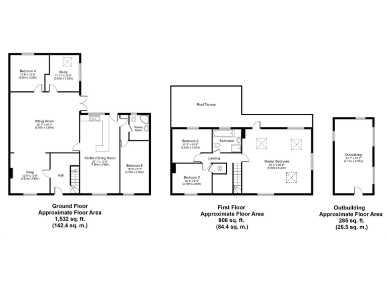
Set within a sought-after village, this sympathetically extended 5-bedroom semi-detached cottage blends period character with bright, contemporary living spaces. The ground floor offers an open-plan living room with rooflights and wood flooring, a cosy snug with an open fireplace, a double-aspect kitchen/dining room and a useful ground-floor study — good for home-working or a playroom.
The first-floor principal bedroom is a standout: double-aspect, high vaulted ceiling, wood burner and door to a roof terrace overlooking exceptionally generous gardens of about one third of an acre. Outside, mature trees, ornamental ponds, a large workshop with three-phase power and a managed vegetable plot create a private, productive garden that will suit keen gardeners and families who want space to grow.
Practical considerations are straightforward: the house is freehold, has oil-fired central heating plus a wood burner, fast broadband and off-street parking for several cars. There are two bathrooms for five bedrooms, and parts of the fabric are traditional solid brick construction — likely requiring further insulation if you plan energy upgrades. The property is presented well but will need ongoing garden maintenance given the very large plot.
This home will appeal to buyers seeking village life, room for a family, and flexible accommodation with strong scope for modernisation (insulation, heating upgrades, bathroom reconfiguration). It is an attractive, characterful home in an affluent, low-crime area with good local schools and countryside access.
4 bedroom detached house for sale in High Street, West Wratting, Cambridge, CB21 — £1,000,000 • 4 bed • 3 bath • 2663 ft²
3 bedroom semi-detached house for sale in Church End, Ashdon, Saffron Walden, CB10 — £490,000 • 3 bed • 1 bath • 1374 ft²
5 bedroom detached house for sale in Linton Road, Hadstock, Cambridge, CB21 — £925,000 • 5 bed • 1 bath • 2476 ft²
5 bedroom detached house for sale in Chippenham, Ely, Cambridgeshire, CB7 — £695,000 • 5 bed • 1 bath • 2821 ft²
4 bedroom semi-detached house for sale in Emsons Close, Linton, CB21 — £425,000 • 4 bed • 2 bath • 1302 ft²
5 bedroom detached house for sale in Pott Hall Road, West Row, IP28 — £650,000 • 5 bed • 3 bath • 2250 ft²






















































































































































