**Standout Features:**
- Stunning sea views of Cardigan Bay
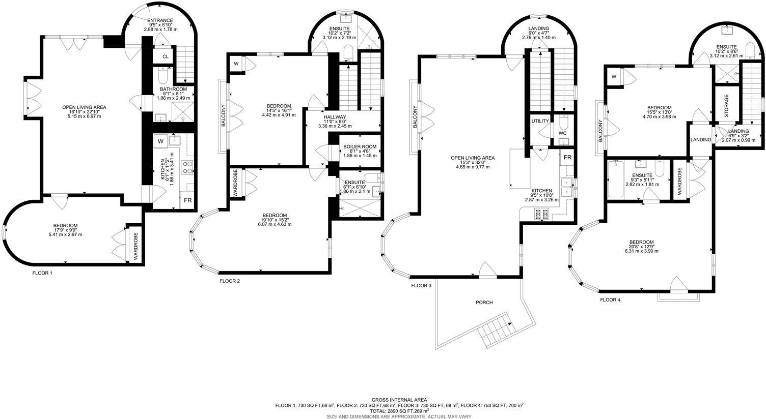
- 5 spacious bedrooms, 4 with en-suite bathrooms
- Self-contained ground floor annexe ideal for guests or rental income
- Modern, architect-designed layout with open-plan living space
- Off-road parking for multiple vehicles
- Solar panels and oil central heating
- Close proximity to local amenities and scenic beach
**Property Summary:**
Discover the perfect coastal escape with this extraordinary 5-bedroom detached house in New Quay, Cardigan Bay. Set in an elevated position, this architecturally designed home impresses with breathtaking views of the coastline and features a spacious and light-filled open-plan kitchen and dining area. The property includes four generously sized double bedrooms boasting en-suite bathrooms, ensuring privacy and comfort for family members or guests.
The self-contained ground floor annexe expands the possibilities, offering an ideal space for guests or even an income-generating holiday let. Modern conveniences such as solar panels enhance energy efficiency, backed by oil central heating. With ample off-road parking and a decent outdoor area, this home combines comfort with functionality—perfect for families or as a lucrative rental opportunity.
Despite its luxurious amenities, please note that the council tax band is high, and the surroundings reflect a rural environment with varying service levels, including slower broadband speeds. Don’t miss your chance to make this one-of-a-kind property yours—schedule a viewing today to experience the unmatched lifestyle it offers!
5 bedroom detached house for sale in Dolphin Court, New Quay, SA45 — £585,000 • 5 bed • 3 bath
5 bedroom terraced house for sale in Rock Street, New Quay , SA45 — £425,000 • 5 bed • 2 bath • 1669 ft²
3 bedroom detached house for sale in Cwmtydu, Nr New Quay, SA44 — £435,000 • 3 bed • 3 bath • 1809 ft²
3 bedroom bungalow for sale in Llandysul Road, New Quay, SA45 — £399,950 • 3 bed • 2 bath • 1583 ft²
5 bedroom detached house for sale in Pell Orwel, Towyn Road, New Quay, SA45 — £495,000 • 5 bed • 3 bath • 2239 ft²
4 bedroom detached house for sale in New Quay, Ceredigion, SA45 — £500,000 • 4 bed • 3 bath






















































































































































































