Characterful home with large garden and single parking space.
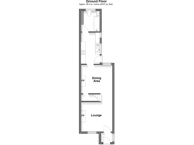
Two double bedrooms in a compact 592 sq ft layout
A compact Victorian terraced home on Church Hill that suits first-time buyers or small families seeking village life with practical outdoor space. The lounge centres on a stylish fireplace and connects to a bright dining area, while a contemporary kitchen opens directly to a generous rear garden with paved patio and lawn — ideal for children, pets or summer entertaining.
The house is freehold and straightforward in layout across about 592 sq ft, with two double bedrooms and a ground-floor bathroom offering immediate liveability. Off-street parking for one car adds convenience in this small-town setting, and local amenities — including a good primary school, shops and a nearby railway — are within easy reach.
Buyers should note the property’s modest overall size and period construction: solid brick walls are assumed uninsulated and the glazing install date is unknown. While heating is mains gas via a boiler and radiators, there may be opportunity (and cost) to improve thermal performance or update older elements such as the roof and services. Interested parties must verify measurements, service condition and tenure details with their solicitor.
For those prioritising location, garden space and a characterful home to personalise, this Shepherdswell terrace offers an affordable entry into a pleasant, well-connected village community with strong local schools and transport links to Dover and Canterbury.
2 bedroom terraced house for sale in Church Hill, Shepherdswell, Dover, Kent, CT15 — £280,000 • 2 bed • 1 bath • 3111 ft²
2 bedroom terraced house for sale in Church Hill, Shepherdswell, Dover, Kent, CT15 — £230,000 • 2 bed • 1 bath • 958 ft²
2 bedroom terraced house for sale in Church Hill, Shepherdswell, Dover, Kent, CT15 — £152,000 • 2 bed • 1 bath • 958 ft²
5 bedroom detached house for sale in The Glen, Shepherdswell, Dover, Kent, CT15 — £500,000 • 5 bed • 2 bath • 1281 ft²
2 bedroom end of terrace house for sale in Terrace Road, Elvington, Dover, Kent, CT15 — £240,000 • 2 bed • 1 bath • 524 ft²
4 bedroom detached house for sale in Mill Lane, Shepherdswell, Kent, CT15 — £347,000 • 4 bed • 2 bath • 1615 ft²






























































































