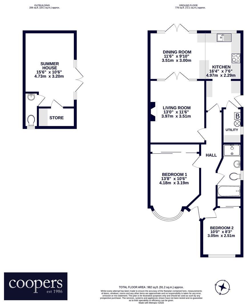
Quiet single-level home with large garden and useful summer house.
Two-bedroom single-storey bungalow, suitable for downsizers or small families
Tucked away on a quiet Eastcote street, this two-bedroom semi-detached bungalow suits downsizers or small families seeking single-level living near village amenities. The living room, separate dining area and adjoining kitchen flow sensibly, while a utility room adds useful everyday storage. A bay-fronted principal bedroom and a modern family bathroom complete the internal accommodation.
Outside, the long rear garden is a standout for the size of the house and includes a substantial summer house with cloakroom and store — ideal as a home office, studio or guest space. A paved driveway offers private off-street parking and a neat front forecourt keeps external maintenance low.
Practical details: the house is freehold, mains gas‑heated with a boiler and radiators, double glazing installed before 2002, and solid brick walls typical of 1930s–1940s construction. The internal footprint is compact (approx. 611 sq ft) so living space is modest; buyers who need larger rooms should note the size. There is no flood risk and local broadband and mobile signal are good.
This property is well positioned for Eastcote Village and nearby schools, and the generous garden with outbuilding gives scope to extend living or create a dedicated work/guest area (subject to consents). Be aware of the period construction: walls are likely uninsulated and windows predate modern glazing standards, so buyers should factor potential insulation or upgrade works into plans and budgets.
3 bedroom semi-detached bungalow for sale in Pavilion Way, Ruislip, HA4 — £700,000 • 3 bed • 2 bath • 1125 ft²
2 bedroom bungalow for sale in Lime Grove, Eastcote, Middlesex, HA4 — £750,000 • 2 bed • 1 bath • 1195 ft²
4 bedroom house for sale in Cheney Street, Eastcote, HA5 — £950,000 • 4 bed • 2 bath • 2114 ft²
3 bedroom detached bungalow for sale in Eastfields, Eastcote, Pinner HA5 — £899,950 • 3 bed • 2 bath • 1442 ft²
3 bedroom detached bungalow for sale in Curzon Place, Pinner, HA5 — £720,000 • 3 bed • 1 bath • 1006 ft²
2 bedroom detached bungalow for sale in Eastfields, Pinner, HA5 — £779,950 • 2 bed • 1 bath • 957 ft²










































































