**Standout Features:**
- Brand new, high-specification executive home
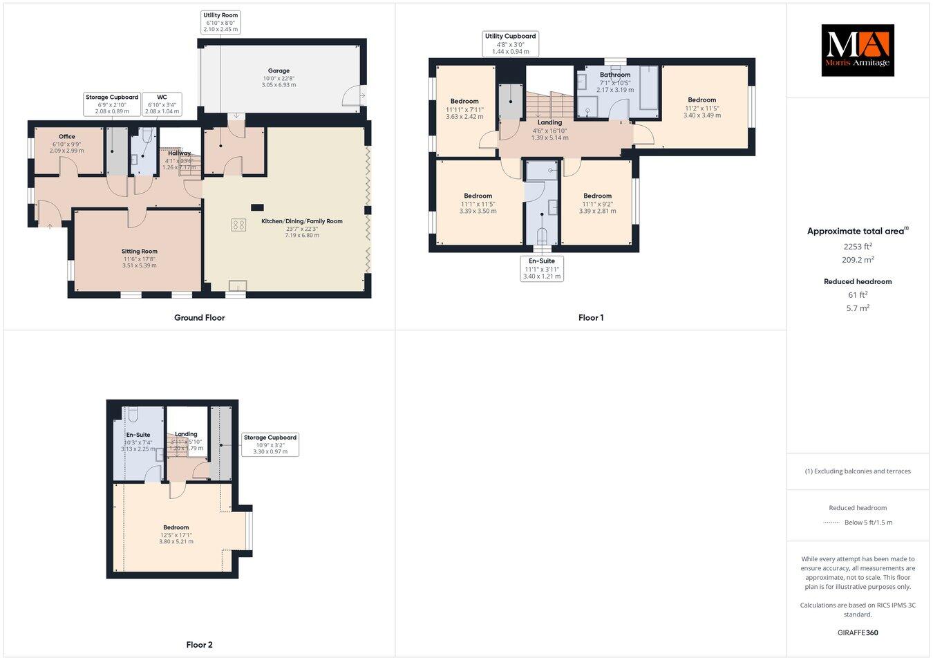
- 5 spacious bedrooms, 3 bathrooms (2 en-suites)
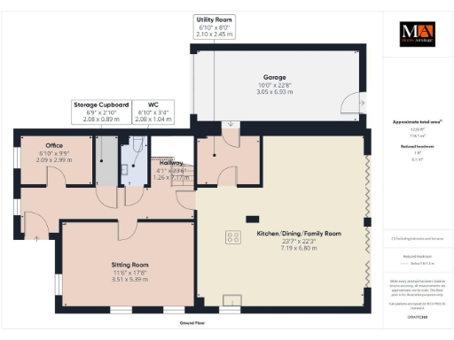
- Expansive open-plan kitchen/dining/family area (over 23ft)
- Bright, airy design with tri-folding doors to the garden
- Energy-efficient with solar panels, air source heating, and EV charger
- Modern separate sitting room and office space
- Garage and a decent-sized garden
**Summary:**
Discover this stunning brand-new executive home, meticulously built in 2023 with contemporary design and energy-efficient features. Spanning over 2000 square feet, this detached property offers five generous bedrooms, including two with en-suite bathrooms, ideal for families seeking space and comfort. The heart of the home is the spectacular open-plan kitchen and family area that flows seamlessly to the rear garden, perfect for entertaining or enjoying quiet family moments.
Nestled in a peaceful village setting with access to excellent amenities and top-rated schools, this property is ideal for families and professionals alike. With modern conveniences like air source heating, a heat recovery system, and an EV charger, it caters to those seeking sustainability without compromising style. The property is finished to a high standard and is chain-free, making it ready for you to move in and enjoy immediately.
However, potential buyers should consider the average broadband speeds available in the area and the average local socio-economic environment. Secure your exclusive viewing and take advantage of this exceptional opportunity to own a high-end home in a quiet village setting—properties like these don’t stay on the market for long!
4 bedroom detached house for sale in Roxbury Drive, East Harling, Norwich, NR16 — £575,000 • 4 bed • 3 bath • 2059 ft²
4 bedroom detached house for sale in Alia Way, North Lopham, Diss, IP22 — £775,000 • 4 bed • 3 bath • 2334 ft²
5 bedroom detached house for sale in The Old Coal Yards, Thetford Road, Northwold, IP26 — £600,000 • 5 bed • 3 bath • 1787 ft²
4 bedroom detached house for sale in Plot 5, Mere Farm, Stow Bedon, Norfolk, NR17 — £975,000 • 4 bed • 3 bath • 3013 ft²
4 bedroom detached house for sale in Hazel Close, Soham, CB7 — £595,000 • 4 bed • 2 bath • 2054 ft²
4 bedroom detached house for sale in Alia Way, North Lopham, Diss, IP22 — £735,000 • 4 bed • 4 bath • 1925 ft²


























































































